Vue avant - MODÈLE DE BASE - Plan de maison contemporaine split level, 2 chambres, garage, laveuse/sécheuse au rez-de-chaussée - Lotus 3

Vue avant - MODÈLE DE BASE

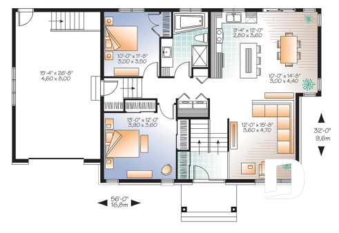
Rez-de-chaussée - Plan de maison contemporaine split level, 2 chambres, garage, laveuse/sécheuse au rez-de-chaussée - Lotus 3

Rez-de-chaussée

Élévation arrière - Lotus 3

Élévation arrière

Vue intérieure - Lotus 3

Vue intérieure

Lotus 3 Plan de maison 3128-V2

Plan de maison contemporaine split level, 2 chambres, garage, laveuse/sécheuse au rez-de-chaussée

À partir de

1440$

Fiche technique sommaire Plan #3128-V2
Estimation ($) 384,670$
Surface habitable 1223 pi² Chambre 2
Salle de Bain 1 Salle d'eau -
Fondation incluse Sous-sol aménageable Garage 1 voiture
Largeur 56'0" Profondeur 32'0"

Besoin d’aide ?

Nos experts vous guident dans votre projet grâce à plus de 30 bureaux au Québec.

Joignez-nous

Consultez notre guide utilisateur

Un outil conçu pour vous simplifier la vie.

Ouvrir le guide

Besoin d’une assurance habitation ?

Pour obtenir votre prix, c’est juste ici

Obtenir une soumission

Photos du plan Lotus 3

Les photos de cette maison peuvent différer du plan d'origine, duquel elles proviennent. Pour toute modification, veuillez contacter l’un de nos 30 bureaux.

Détails supplémentaires

Estimation

Spécifications générales

Surface aménagée totale
1223 pi²
Rez-de-chaussée
1223 pi²
Largeur
56'0"
Profondeur
32'0"
Hauteur dessus fondations au faite
21'10"
Murs extérieurs
2 X 6
Murs extérieurs
2 X 6
Sous-sol aménageable
Code Entrepreneur
C

Spécifications sur les pièces

Chambre(s)
2
Salle(s) de bain complète(s)
1
Demi Salle(s) de Bain
-
Type de garage
1 voiture (450 pi²)
Superficie balcon et/ou perron abrité
-

Rez-de-chaussée

Pièces
Dimensions
Plafond
Entrée ou vestibule
6'8" x 5'0"
~ 11'0"
Garde-robe
2'0" x 5'0"
~ 11'0"
Salle de séjour
12'0" x 15'8"
~ 8'0"
Salle à manger
10'0" x 14'8"
~ 8'0"
Cuisine/dinette
9'4" x 12'0"
~ 8'0"
Garde-manger
1'10" x 2'0"
N/D
Chambre à coucher
13'0" x 12'0"
~ 8'0"
Garde-robe
5'6" x 2'0"
~ 8'0"
Garde-robe
2'0" x 5'6"
~ 8'0"
Chambre à coucher
10'0" x 11'8"
~ 8'0"
Garde-robe
1'10" x 4'6"
~ 8'0"
Salle de bain complète
8'6" x 11'8"
~ 8'0"
Lingerie
1'6" x 1'8"
N/D
Coin laveuse/sécheuse
5'6" x 3'0"
~ 8'0"
Lingerie
5'6" x 1'6"
N/D
Entrée ou vestibule
3'6" x 3'8"
~ 11'0"
Garde-robe
3'6" x 2'4"
~ 11'0"
Rangement
2'8" x 1'4"
~ 8'0"

Plan de plain-pied moderne avec 2 chambres et garage

Réalisé à partir du modèle 3128, déjà fort apprécié des nouveaux acheteurs, ce plan version propose l’ajout d’un garage de 16pi de largeur par 28pi de profondeur avec descente au sous-sol tout en se faisant plus imposant que le modèle original en raison de cette sortie du sol significative due à l’addition du garage. Avec ses 2pi de plus en profondeur, ce plan version suggère d’ailleurs l’agrandissement de la quasi totalité des pièces intérieures. Entrons donc sans plus tarder !

Tout comme sur le plan d’origine 3128, on apprécie une garde-robe et un palier d’entrée de bonnes dimensions ainsi qu’un secteur activités entièrement ouvert. On remarque sans trop tarder une salle de séjour à la fois souple d’aménagement et de très beau format, une salle à manger dans laquelle la lumière naturelle abonde et une cuisine toute aussi lumineuse avec îlot-lunch central de 36po x 76po. Côté repos, ce plan suggère à nouveau une chambre des maîtres avec deux garde-robes et une chambre secondaire permettant aisément l’aménagement d’un lit double. Sans oublier une salle de bain fort bien organisée avec douche indépendante de 3pi x 4pi, un coin laveuse/sécheuse relocalisé mais toujours au rez-de-chaussée et un accès au garage avec garde-robe attenante.

Voilà donc de quoi parier que ce plan version fera sensation !

Éléments distinctifs

Construction d'approche contemporaine, avec garage.
Entrée avant split, avec garde-robe de bon format.
Secteur activités ouvert et abondamment fenêtré.
Cuisine avec grande îlot et salle à dîner pouvant recevoir une table pour 6 personnes.
Deux chambres de bonnes dimensions avec garde-robes fort adéquates dont 2 à la chambre des maîtres.
Salle de bain avec douche indépendante de 5' x 3' et coin buanderie au rez-de-chaussée.

Particularité(s) du plan

Ilôt, Salle de lavage au rez-de-chaussée, Accès au sous-sol du garage, Bain et douche séparés, Aire ouverte

Style(s) architectural du plan

Moderne, Contemporain / Zen, Ranch, Mid-century

Plans similaires
Logo Dessins Drummond image Dessins Drummond
Le modèle Lotus 3 est protégé par la loi sur les droits d'auteur.

Les illustrations présentées peuvent différer du plan détaillé que vous recevrez, car ces derniers sont régulièrement ajustés afin de respecter les normes de construction en vigueur.

En savoir plus

Une question ou un commentaire sur ce plan ?

Information de contact

Votre demande

Ajouter vos images ou photos

Pour ajouter une ou des photos, veuillez cliquer ou glisser vos fichiers dans la zone ci-bas. Vous pouvez ajouter jusqu'à huit photos JPG ou JPEG. Cette opération n'est pas obligatoire.

Désolé, votre navigateur ne supporte pas l'envoi de fichier.