Vue avant - MODÈLE DE BASE - Maison moderne à étage, plancher spacieux, superbe cuisine avec garde-manger et îlot, 3 chambres bon format - Bellechasse

Vue avant - MODÈLE DE BASE

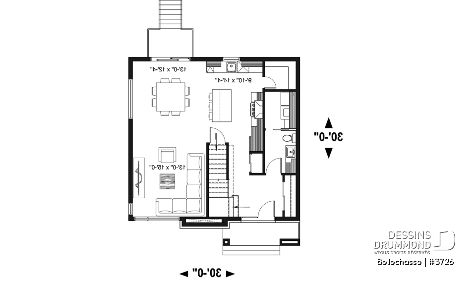
Rez-de-chaussée - Maison moderne à étage, plancher spacieux, superbe cuisine avec garde-manger et îlot, 3 chambres bon format - Bellechasse

Rez-de-chaussée

Étage - Maison moderne à étage, plancher spacieux, superbe cuisine avec garde-manger et îlot, 3 chambres bon format - Bellechasse

Étage

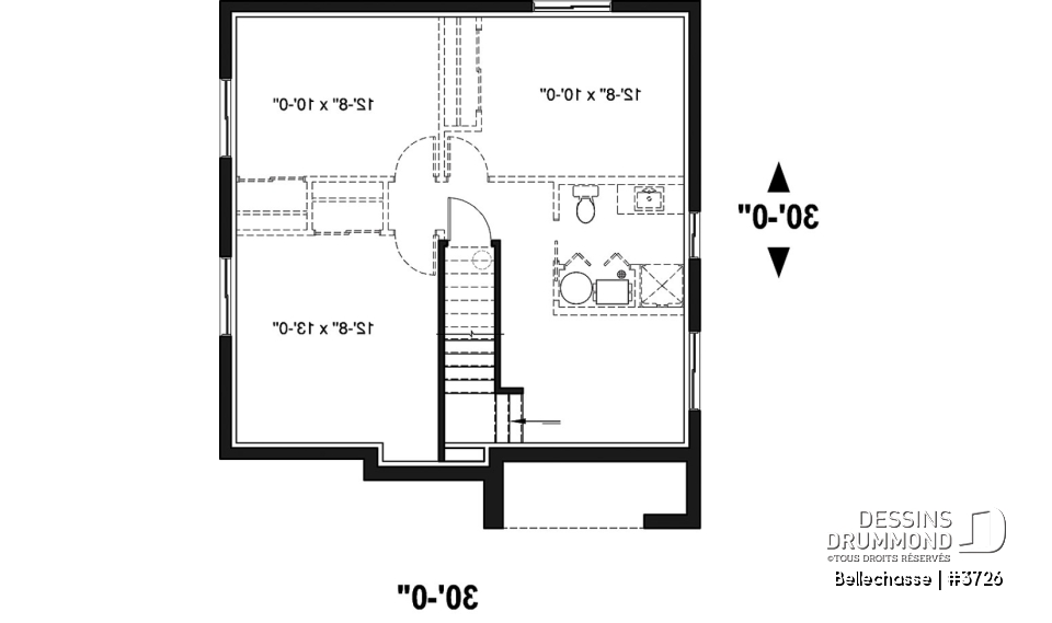
Sous-sol - Maison moderne à étage, plancher spacieux, superbe cuisine avec garde-manger et îlot, 3 chambres bon format - Bellechasse

Sous-sol

Élévation arrière - Bellechasse

Élévation arrière

Bellechasse Plan de maison 3726

Maison moderne à étage, plancher spacieux, superbe cuisine avec garde-manger et îlot, 3 chambres bon format

À partir de

1600$

Fiche technique sommaire Plan #3726
Estimation ($) 425,966$
Surface habitable 1739 pi² Chambre 3
Salle de Bain 1 Salle d'eau 1
Fondation incluse Sous-sol aménageable Garage -
Largeur 30'0" Profondeur 30'0"

Besoin d’aide ?

Nos experts vous guident dans votre projet grâce à plus de 30 bureaux au Québec.

Joignez-nous

Consultez notre guide utilisateur

Un outil conçu pour vous simplifier la vie.

Ouvrir le guide

Un accompagnement sur mesure

De la modification de plans au design d’intérieur, nous vous guidons à chaque étape.

Découvrir nos services

Détails supplémentaires

Estimation

Spécifications générales

Surface aménagée totale
1739 pi²
Rez-de-chaussée
875 pi²
Étage
864 pi²
Sous-sol
875 pi²
Largeur
30'0"
Profondeur
30'0"
Hauteur dessus fondations au faite
25'11"
Murs extérieurs
2 X 6
Murs extérieurs
2 X 6
Sous-sol aménageable
Autres fondations disponibles (des frais peuvent s'appliquer)
Sous-sol aménagé, Sous-sol aménageable + sortie extérieure (Rez-de-jardin), Dalle flottante, Vide sanitaire, Dalle monolithique
Code Entrepreneur
D

Spécifications sur les pièces

Chambre(s)
3
Salle(s) de bain complète(s)
1
Demi Salle(s) de Bain
1
Type de garage
-
Superficie balcon et/ou perron abrité
-

Sous-sol

Rez-de-chaussée

Pièces
Dimensions
Plafond
Entrée ou vestibule
9'6" x 7'4"
~ 8'0"
Garde-robe
7'4" x 2'0"
~ 8'0"
Salle de séjour
13'0" x 15'0"
~ 8'0"
Salle à manger
13'0" x 12'4"
~ 8'0"
Cuisine
9'10" x 14'4"
~ 8'0"
Garde-manger
5'0" x 5'6"
~ 8'0"
Salle de lavage
5'6" x 6'6"
~ 8'0"
Salle de bain
5'6" x 7'6"
~ 8'0"

Étage

Pièces
Dimensions
Plafond
Chambre à coucher
13'0" x 16'0"
~ 8'0"
Walk-in
5'0" x 6'8"
~ 8'0"
Chambre à coucher
12'0" x 11'0"
~ 8'0"
Walk-in
4'0" x 5'0"
~ 8'0"
Chambre à coucher
10'8" x 11'0"
~ 8'0"
Walk-in
5'0" x 4'8"
~ 8'0"
Salle de bain complète
11'0" x 11'0"
~ 8'0"
Lingerie
2'2" x 2'0"
~ 8'0"
Lingerie
2'2" x 2'0"
~ 8'0"

Plan de maison moderne mid-century 3 chambres, superbe aménagement des planchers

.

Éléments distinctifs

Maison tendance proposant une façade chaleureuse en bois et en pierre.
Hall d'entrée très spacieux avec garde-robe de type walk-in, et accès latéral à l'extérieur.
Accès à la buanderie via la salle d'eau.
Grande cuisine avec îlot central et garde-manger de bon format.
Grande salle à manger ouverte sur le vivoir.
Chambre des maîtres avec walk-in.
Deux chambres secondaires avec walk-in.
Grande salle de bain familiale avec douche de 54'' x 36'', bain podium, deux lavabos et attenante à un lingerie.
Sous-sol à aménager.
Une version avec garage de ce modèle est disponible, svp consultez le plan no. 3726-V1.

Particularité(s) du plan

Garde-manger, Salle de lavage au rez-de-chaussée, Aire ouverte, Vue paronamique, Ilôt, Walk-in ch. maîtres, Bain et douche séparés, Lavabo double, Lavabo double

Style(s) architectural du plan

Mid-century, Moderne, Moderne rustique, Transitionnel, Contemporain / Zen

Plans similaires
Logo Dessins Drummond image Dessins Drummond
Le modèle Bellechasse est protégé par la loi sur les droits d'auteur.

Les illustrations présentées peuvent différer du plan détaillé que vous recevrez, car ces derniers sont régulièrement ajustés afin de respecter les normes de construction en vigueur.

En savoir plus

Une question ou un commentaire sur ce plan ?

Information de contact

Votre demande

Ajouter vos images ou photos

Pour ajouter une ou des photos, veuillez cliquer ou glisser vos fichiers dans la zone ci-bas. Vous pouvez ajouter jusqu'à huit photos JPG ou JPEG. Cette opération n'est pas obligatoire.

Désolé, votre navigateur ne supporte pas l'envoi de fichier.