Version couleur no. 2 - Vue avant - Grande maison style moderne rustique, 3 chambres, cuisine avec îlot  - Molten

Version couleur no. 2 - Vue avant

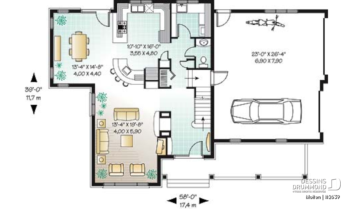
Rez-de-chaussée - Grande maison style moderne rustique, 3 chambres, cuisine avec îlot  - Molten

Rez-de-chaussée

Étage - Grande maison style moderne rustique, 3 chambres, cuisine avec îlot  - Molten

Étage

Vue avant – Modèle ORIGINAL - Molten

Vue avant – Modèle ORIGINAL

Vue avant - MODÈLE DE BASE - Molten

Vue avant - MODÈLE DE BASE

Élévation arrière - Molten

Élévation arrière

Version couleur no. 1 - Vue avant - Molten

Version couleur no. 1 - Vue avant

Molten Plan de maison 2639

Grande maison style moderne rustique, 3 chambres, cuisine avec îlot

À partir de

1765$

Fiche technique sommaire Plan #2639
Estimation ($) 696,657$
Surface habitable 2339 pi² Chambre 3
Salle de Bain 2 Salle d'eau 1
Fondation incluse Sous-sol aménageable Garage 2 voitures
Largeur 58'0" Profondeur 39'0"

Besoin d’aide ?

Nos experts vous guident dans votre projet grâce à plus de 30 bureaux au Québec.

Joignez-nous

Consultez notre guide utilisateur

Un outil conçu pour vous simplifier la vie.

Ouvrir le guide

Un accompagnement sur mesure

De la modification de plans au design d’intérieur, nous vous guidons à chaque étape.

Découvrir nos services

Photos du plan Molten

Les photos de cette maison peuvent différer du plan d'origine, duquel elles proviennent. Pour toute modification, veuillez contacter l’un de nos 30 bureaux.

Détails supplémentaires

Estimation

Spécifications générales

Surface aménagée totale
2339 pi²
Rez-de-chaussée
1078 pi²
Étage
1261 pi²
Largeur
58'0"
Profondeur
39'0"
Hauteur dessus fondations au faite
32'2"
Murs extérieurs
2 X 6
Murs extérieurs
2 X 6
Sous-sol aménageable
Autres fondations disponibles (des frais peuvent s'appliquer)
Dalle flottante, Vide sanitaire, Dalle monolithique
Code Entrepreneur
F

Spécifications sur les pièces

Chambre(s)
3
Salle(s) de bain complète(s)
2
Demi Salle(s) de Bain
1
Type de garage
2 voitures (650 pi²)
Superficie balcon et/ou perron abrité
210 pi²

Rez-de-chaussée

Pièces
Dimensions
Plafond
Demie salle de bain ou coin toilette
3'0" x 6'0"
~ 8'0"
Cuisine
10'10" x 16'0"
~ 8'0"
Salle à manger
13'4" x 14'8"
~ 8'0"
Salle de séjour
13'4" x 19'8"
~ 8'0"
Lingerie
1'8" x 1'4"
~ 8'0"
Entrée ou vestibule
9'0" x 5'10"
~ 17'4"
Salle de lavage
8'2" x 7'0"
~ 8'0"
Garage
23'0" x 26'4"
~ 9'8"
Galerie
30'0" x 7'4"
N/D
Terrasse
8'0" x 5'0"
N/D

Étage

Pièces
Dimensions
Plafond
Salle de bain complète
10'8" x 6'0"
~ 8'0"
Suite des maîtres
19'0" x 14'6"
~ 8'0"
Chambre à coucher
13'0" x 13'0"
~ 8'0"
Chambre à coucher
13'0" x 12'0"
~ 8'0"
Lingerie
2'0" x 1'6"
~ 8'0"

Cottage d’esprit européen revisité à l’américaine

Conçu à partir de notre populaire modèle 3828, ce cottage d’esprit européen est revisité façon américaine d’abord avec l’aménagement d’un garage double à la fois discret et fort logeable et ensuite, par la présence d’une superbe suite chambre des maîtres à l’étage; étage plutôt exceptionnel grâce à ce fameux garage double.

Ainsi, au rez-de-chaussée, on apprécie d’abord une entrée ouverte sur deux étages et partageant un foyer mitoyen avec la salle de séjour. Une salle de séjour que l’on peut qualifier de confortable et qui donne sur une cuisine originale, attenante à une salle à manger fenêtrée sur trois côtés et proposant, à son tour, un comptoir/lunch en quart de rond. Ici, on ne peut passer sous silence une buanderie indépendante des plus enviables et quelques rangements bien accommodants.

Quant à l’étage, celui-ci propose deux chambres secondaires partageant une salle de bain et surtout, une grande suite chambre des maîtres avec foyer, très grande garde-robe et salle de bain impressionnante assurant une pleine satisfaction à ses propriétaires.

Éléments distinctifs

Belle galerie extérieure couverte en façade. Grande salle de séjour avec télé encastrée et foyer ouvert à la fois sur l'entrée principale. Cuisine originale avec comptoir dînette jouant aussi le rôle de bar. Garage plus que double avec seconde porte de 12pi. Superbe suite chambre des maîtres avec grande garde-robe et foyer.

Particularité(s) du plan

Foyer, Mezzanine, Entrée ouverte sur 2 étages, Salle de lavage au rez-de-chaussée, Walk-in double ch. maîtres, Suite des maîtres à l'étage, Bain et douche séparés, Lavabo double, Comptoir-lunch, Bar à café

Style(s) architectural du plan

Champêtre, Américain, Nordique, Européen, Colonial, Nordique Moderne, Anglais, Tudor

Plans similaires
Logo Dessins Drummond image Dessins Drummond
Le modèle Molten est protégé par la loi sur les droits d'auteur.

Les illustrations présentées peuvent différer du plan détaillé que vous recevrez, car ces derniers sont régulièrement ajustés afin de respecter les normes de construction en vigueur.

En savoir plus

Une question ou un commentaire sur ce plan ?

Information de contact

Votre demande

Ajouter vos images ou photos

Pour ajouter une ou des photos, veuillez cliquer ou glisser vos fichiers dans la zone ci-bas. Vous pouvez ajouter jusqu'à huit photos JPG ou JPEG. Cette opération n'est pas obligatoire.

Désolé, votre navigateur ne supporte pas l'envoi de fichier.