Version couleur no. 2 - Vue avant - Plan de maison de campagne avec garage double, 3+ chambres, bureau à domicile et grand espace boni - La Prairie

Version couleur no. 2 - Vue avant

Rez-de-chaussée - Plan de maison de campagne avec garage double, 3+ chambres, bureau à domicile et grand espace boni - La Prairie

Rez-de-chaussée

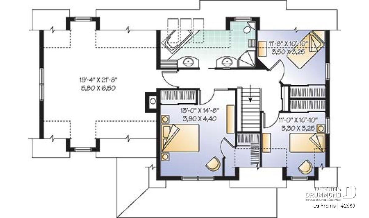
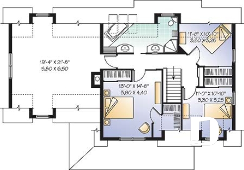
Étage - Plan de maison de campagne avec garage double, 3+ chambres, bureau à domicile et grand espace boni - La Prairie

Étage

Vue avant - MODÈLE DE BASE - La Prairie

Vue avant - MODÈLE DE BASE

Élévation arrière - La Prairie

Élévation arrière

Version couleur no. 1 - Vue avant - La Prairie

Version couleur no. 1 - Vue avant

Version couleur no. 3 - Vue avant - La Prairie

Version couleur no. 3 - Vue avant

La Prairie Plan de maison 2689

Plan de maison de campagne avec garage double, 3+ chambres, bureau à domicile et grand espace boni

À partir de

1600$

Fiche technique sommaire Plan #2689
Estimation ($) 548,387$
Surface habitable 1683 pi² Chambre 3, 4
Salle de Bain 1 Salle d'eau 1
Fondation incluse Sous-sol aménageable Garage 2 voitures
Largeur 50'0" Profondeur 29'8"

Besoin d’aide ?

Nos experts vous guident dans votre projet grâce à plus de 30 bureaux au Québec.

Joignez-nous

Consultez notre guide utilisateur

Un outil conçu pour vous simplifier la vie.

Ouvrir le guide

Un accompagnement sur mesure

De la modification de plans au design d’intérieur, nous vous guidons à chaque étape.

Découvrir nos services

Photos du plan La Prairie

Les photos de cette maison peuvent différer du plan d'origine, duquel elles proviennent. Pour toute modification, veuillez contacter l’un de nos 30 bureaux.

Détails supplémentaires

Estimation

Spécifications générales

Surface aménagée totale
1683 pi²
Rez-de-chaussée
860 pi²
Étage
823 pi²
Largeur
50'0"
Profondeur
29'8"
Hauteur dessus fondations au faite
29'2"
Murs extérieurs
2 X 6
Murs extérieurs
2 X 6
Sous-sol aménageable
Autres fondations disponibles (des frais peuvent s'appliquer)
Dalle flottante, Vide sanitaire, Dalle monolithique
Code Entrepreneur
D

Spécifications sur les pièces

Chambre(s)
3, 4
Salle(s) de bain complète(s)
1
Demi Salle(s) de Bain
1
Type de garage
2 voitures (460 pi²)
Superficie balcon et/ou perron abrité
128 pi²

Étage

Pièces
Dimensions
Plafond
Salle de bain complète
16'8" x 8'0"
~ 8'0"
Chambre à coucher
11'8" x 11'0"
~ 8'0"
Garde-robe
6'2" x 2'0"
~ 8'0"
Chambre à coucher
11'0" x 10'10"
~ 8'0"
Garde-robe
6'2" x 2'0"
~ 8'0"
Chambre à coucher
13'0" x 14'8"
~ 8'0"
Garde-robe
6'2" x 2'0"
~ 8'0"
Walk-in
4'0" x 5'10"
~ 8'0"
Espace boni aménageable
19'4" x 21'8"
~ 8'0"
Rangement
1'2" x 4'4"
~ 8'0"

Rez-de-chaussée

Pièces
Dimensions
Plafond
Demie salle de bain ou coin toilette
5'0" x 5'8"
~ 8'0"
Cuisine
9'0" x 14'4"
~ 8'0"
Garde-manger
1'10" x 2'0"
N/D
Salle à manger
10'8" x 10'0"
~ 8'0"
Salle de séjour
14'0" x 14'0"
~ 8'0"
Bureau à domicile
11'0" x 12'0"
~ 8'0"
Entrée ou vestibule
5'0" x 3'4"
~ 8'0"
Garde-robe
4'0" x 2'4"
~ 8'0"
Garage
19'4" x 21'8"
~ 10'4"
Galerie
25'6" x 5'8"
N/D
Salle de lavage
5'0" x 5'8"
~ 8'0"

Plan de maison champêtre 3+ chambres avec espace boni remarquable

Conçu à partir du très populaire modèle 2590 que vous êtes en mesure de voir sur le site dessinsdrummond.com, ce modèle-ci se veut encore plus logeable avec cet ajout de garage double au-dessus du quel un espace boni remarquable viendra assurément combler les besoins en espace que ce soit pour une vaste salle familiale, pour l’aménagement d’une table de billard ou encore pour un cinéma-maison, ce n’est certes pas cet espace qui causera problèmes.

Cet espace boni n’est pas le seul attribut de ce modèle quand on considère le foyer en coin à la salle de séjour, une salle à manger donnant sur l’arrière et pouvant fort bien être inversée avec l’espace bureau déjà prévu au rez-de-chaussée pour un aménagement tout à fait différent. Sans oublier, sur ce même plancher, une cuisine avec îlot-lunch central et la présence d’un espace buanderie.

À l’étage, ça se traduit par une salle de bain confortable et abondamment éclairée de trois fenêtres de toit ainsi qu’une chambre des maîtres avec deux garde-robes distinctes que le propriétaires seront pleinement en mesure d’apprécier.

Éléments distinctifs

Belle galerie couverte à l'avant.
Garage double avec superbe espace boni au-dessus.
Entrée du garage avec banquette bien intégrée.
Salle à manger tout en lumière.
Bel espace bureau prévu au rez-de-chaussée.
Foyer en coin à la salle de séjour.
Salle de bain confortable et tout en lumière à l'étage.
*Le coût de finition de l'espace boni est inclus dans le coûts approx. de construction.

Particularité(s) du plan

Foyer, Bureau / Salle étude, Espace boni aménageable, Garage latéral, Salle de lavage au rez-de-chaussée, Ilôt, Walk-in ch. maîtres, Plafond en pente, Banquette, Bain et douche séparés, Lavabo double

Style(s) architectural du plan

Champêtre, Américain, Traditionnelle, Farmhouse, Cape Cod

Plans similaires
Logo Dessins Drummond image Dessins Drummond
Le modèle La Prairie est protégé par la loi sur les droits d'auteur.

Les illustrations présentées peuvent différer du plan détaillé que vous recevrez, car ces derniers sont régulièrement ajustés afin de respecter les normes de construction en vigueur.

En savoir plus

Une question ou un commentaire sur ce plan ?

Information de contact

Votre demande

Ajouter vos images ou photos

Pour ajouter une ou des photos, veuillez cliquer ou glisser vos fichiers dans la zone ci-bas. Vous pouvez ajouter jusqu'à huit photos JPG ou JPEG. Cette opération n'est pas obligatoire.

Désolé, votre navigateur ne supporte pas l'envoi de fichier.