Vue avant - MODÈLE DE BASE - Plan de maison 4 à 7 chambres possible, cuisine avec îlot et garde-manger x-large, terrain basket intérieur - Denver

Vue avant - MODÈLE DE BASE

Rez-de-chaussée - Plan de maison 4 à 7 chambres possible, cuisine avec îlot et garde-manger x-large, terrain basket intérieur - Denver

Rez-de-chaussée

Étage - Plan de maison 4 à 7 chambres possible, cuisine avec îlot et garde-manger x-large, terrain basket intérieur - Denver

Étage

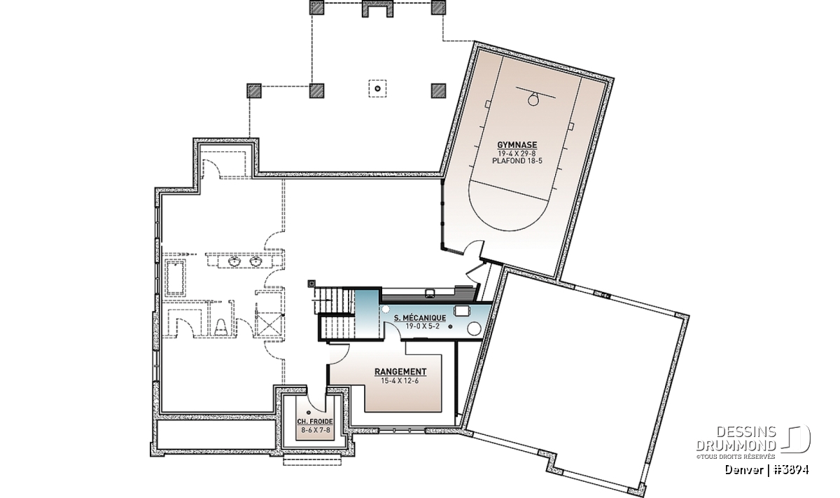
Sous-sol aménagé - Plan de maison 4 à 7 chambres possible, cuisine avec îlot et garde-manger x-large, terrain basket intérieur - Denver

Sous-sol aménagé

Vue avant - MODÈLE DE BASE - Denver

Vue avant - MODÈLE DE BASE

Élévation arrière - Denver

Élévation arrière

Denver Plan de maison 3894

Plan de maison 4 à 7 chambres possible, cuisine avec îlot et garde-manger x-large, terrain basket intérieur

À partir de

2360$

Fiche technique sommaire Plan #3894
Estimation ($) 1,160,162$
Surface habitable 3506 pi² Chambre 4, 5, 6, 7
Salle de Bain 2 Salle d'eau 1
Fondation incluse Sous-sol aménageable Garage 2 voitures
Largeur 79'4" Profondeur 67'5"

Besoin d’aide ?

Nos experts vous guident dans votre projet grâce à plus de 30 bureaux au Québec.

Joignez-nous

Consultez notre guide utilisateur

Un outil conçu pour vous simplifier la vie.

Ouvrir le guide

Un accompagnement sur mesure

De la modification de plans au design d’intérieur, nous vous guidons à chaque étape.

Découvrir nos services

Les photos de cette maison peuvent différer du plan d'origine, duquel elles proviennent. Pour toute modification, veuillez contacter l’un de nos 30 bureaux.

Détails supplémentaires

Estimation

Spécifications générales

Surface aménagée totale
3506 pi²
Rez-de-chaussée
1769 pi²
Étage
1737 pi²
Sous-sol aménagé
1769 pi²
Largeur
79'4"
Profondeur
67'5"
Hauteur dessus fondations au faite
33'11"
Murs extérieurs
2 X 6
Murs extérieurs
2 X 6
Sous-sol aménageable
Autres fondations disponibles (des frais peuvent s'appliquer)
Sous-sol aménagé
Conception pour l'entrepreneur
Code Entrepreneur
J

Spécifications sur les pièces

Chambre(s)
4, 5, 6, 7
Salle(s) de bain complète(s)
2
Demi Salle(s) de Bain
1
Type de garage
2 voitures (732 pi²)
213 pi²
Superficie balcon et/ou perron abrité
95 pi²

Sous-sol aménagé

Pièces
Dimensions
Plafond
Salle d'entraînement
19'4" x 29'8"
~ 18'5"
Pièce de mécanique
19'0" x 5'2"
~ 8'0"
Rangement boni
15'4" x 12'6"
~ 8'0"
Chambre froide
8'6" x 7'8"
~ 8'0"

Rez-de-chaussée

Pièces
Dimensions
Plafond
Entrée ou vestibule
9'10" x 7'0"
~ 9'0"
Salle de bain
7'6" x 5'8"
~ 9'0"
Lingerie
2'0" x 2'8"
~ 9'0"
Lingerie
2'0" x 3'4"
~ 9'0"
Vestiaire
9'0" x 7'4"
~ 9'0"
Salle de lavage
7'3" x 7'9"
~ 9'0"
Salle à manger
17'0" x 14'0"
~ 9'0"
Cuisine
16'4" x 20'8"
~ 9'0"
Garde-manger
5'4" x 18'4"
~ 9'0"
Garde-manger
6'0" x 2'4"
~ 9'0"
Coin déjeuner
8'4" x 5'0"
~ 9'0"
Salle de séjour
18'6" x 16'4"
~ 18'4"
Bureau à domicile
10'3" x 7'9"
~ 9'0"
Garde-robe
1'10" x 3'0"
~ 9'0"
Garage
26'0" x 26'0"
~ 10'6"
Terrasse abritée
19'0" x 25'0"
~ 17'8"
Terrasse abritée
9'0" x 12'8"
~ 8'6"
Galerie
19'0" x 5'0"
~ 8'4"
Entrée ou vestibule
7'8" x 8'7"
~ 9'0"
Lingerie
7'2" x 1'2"
~ 9'0"

Étage

Pièces
Dimensions
Plafond
Chambre à coucher
17'6" x 11'4"
~ 8'0"
Walk-in
4'10" x 11'4"
~ 8'0"
Chambre à coucher
13'8" x 11'6"
~ 8'0"
Walk-in
4'8" x 7'8"
~ 8'0"
Chambre à coucher
13'8" x 11'6"
~ 8'0"
Walk-in
4'8" x 7'8"
~ 8'0"
Suite des maîtres
14'4" x 12'0"
~ 8'0"
Salle de bain complète
12'4" x 14'8"
~ 8'0"
Walk-in
12'0" x 8'8"
~ 8'0"
Douche
3'10" x 6'0"
~ 8'0"
Toilette en cabine
3'0" x 6'8"
~ 8'0"
Lingerie
1'6" x 3'4"
~ 8'0"
Petit salon
10'8" x 8'4"
~ 9'8"
Salle de bain complète
13'4" x 7'8"
~ 8'0"
Douche en cabine
6'8" x 3'4"
~ 8'0"
Toilette en cabine
3'0" x 5'0"
~ 8'0"
Lingerie
3'8" x 1'0"
~ 8'0"
Lingerie
1'10" x 1'10"
~ 8'0"
Lingerie
3'8" x 1'0"
~ 8'0"
Lingerie
3'8" x 1'0"
~ 8'0"
Lingerie
4'10" x 2'0"
~ 8'0"

Plan de maison idéal pour grande famille, avec possibilité de 4 à 7 chambres et en bonus, un demi terrain de basketball intérieur!

.

Éléments distinctifs

Plan de maison avec plancher versatile, parfait pour grande famille ou famille élargie.
4 chambres à l'étage et possibilité de 3 chambres additionnelles au sous-sol.
Cuisine avec îlot pouvant recevoir 8 invités, un secteur banquette et un très grand garde-manger.
Cellier divisant la cuisine et la salle à manger.
Grande salle de séjour avec plafond à plus de 18' de hauteur, et foyer avec mobilier intégré de chaque côté.
Pratique secteur vestiaire et buanderie, près de l'entrée du garage.
Chute à linge à la salle de lavage, provenant de l'étage.
3 chambres secondaires à l'étage, pour enfants, de très grand format et avec garde-robe walk-in à chacune.
Grande salle de douche avec douche et toilette séparés.
Grande suite des maîtres avec salle de bain privée, vaste garde-robe de type walk-in et coin salon/lecture.
Au sous-sol, possibilité de finir l'espace en 3 chambres additionnelles (pour un total de 7 chambres) ou 2 chambres avec salle familiale supplémentaire.
Un demi terrain de basketball intérieur est aménagé au sous-sol.
Une terrasse arrière abritée, avec plafond cathédral, un foyer et un coin cuisine extérieur.
*le coût d'aménagement du sous-sol n'est PAS inclus dans notre estimation du coût de construction.
Le garage double est de très grand format permettant du rangement additionnel.
Un plan de pavillon de piscine est prévu pour ce modèle, veuillez nous contacter à cet effet.

Particularité(s) du plan

Aire ouverte, Boudoir / Vivoir, Salle de lavage au rez-de-chaussée, Bureau / Salle étude, Cellier, Chambres séparées, Chute à linge, Cuisine extérieur, Dinette / Coin déjeuner, Espace boni aménageable, Vue paronamique, Foyer, Garde-manger, Ilôt, Librairie, Mezzanine, Plafond à plus de 8', Plafond avec fausses poutres, Suite des maîtres à l'étage, Walk-in ch. maîtres, Vestiaire, Terrasse abritée, Arrière cuisine, Bain et douche séparés, Lavabo double, Salle de jeux

Style(s) architectural du plan

Nordique, En montagne, Américain, Traditionnelle, Transitionnel, Vacances, bordure de lac, Champêtre

Plans similaires
Logo Dessins Drummond image Dessins Drummond
Le modèle Denver est protégé par la loi sur les droits d'auteur.

Les illustrations présentées peuvent différer du plan détaillé que vous recevrez, car ces derniers sont régulièrement ajustés afin de respecter les normes de construction en vigueur.

En savoir plus

Une question ou un commentaire sur ce plan ?

Information de contact

Votre demande

Ajouter vos images ou photos

Pour ajouter une ou des photos, veuillez cliquer ou glisser vos fichiers dans la zone ci-bas. Vous pouvez ajouter jusqu'à huit photos JPG ou JPEG. Cette opération n'est pas obligatoire.

Désolé, votre navigateur ne supporte pas l'envoi de fichier.