Vue avant - MODÈLE DE BASE - Plan de bungalow 2 chambres, garage, foyer, salle de séjour abaissée, vestibule fermé - Caplan

Vue avant - MODÈLE DE BASE

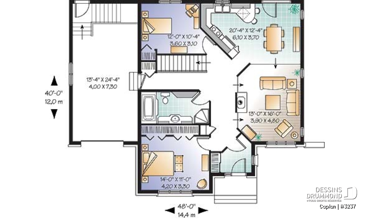
Rez-de-chaussée - Plan de bungalow 2 chambres, garage, foyer, salle de séjour abaissée, vestibule fermé - Caplan

Rez-de-chaussée

Élévation arrière - Caplan

Élévation arrière

Caplan Plan de maison 3237

Plan de bungalow 2 chambres, garage, foyer, salle de séjour abaissée, vestibule fermé

À partir de

1440$

Fiche technique sommaire Plan #3237
Estimation ($) 382,671$
Surface habitable 1236 pi² Chambre 2
Salle de Bain 1 Salle d'eau -
Fondation incluse Sous-sol aménageable Garage 1 voiture
Largeur 48'0" Profondeur 40'0"

Besoin d’aide ?

Nos experts vous guident dans votre projet grâce à plus de 30 bureaux au Québec.

Joignez-nous

Consultez notre guide utilisateur

Un outil conçu pour vous simplifier la vie.

Ouvrir le guide

Un accompagnement sur mesure

De la modification de plans au design d’intérieur, nous vous guidons à chaque étape.

Découvrir nos services

Photos du plan Caplan

Les photos de cette maison peuvent différer du plan d'origine, duquel elles proviennent. Pour toute modification, veuillez contacter l’un de nos 30 bureaux.

Détails supplémentaires

Estimation

Spécifications générales

Surface aménagée totale
1236 pi²
Rez-de-chaussée
1236 pi²
Largeur
48'0"
Profondeur
40'0"
Hauteur dessus fondations au faite
21'8"
Murs extérieurs
2 X 6
Murs extérieurs
2 X 6
Sous-sol aménageable
Code Entrepreneur
C

Spécifications sur les pièces

Chambre(s)
2
Salle(s) de bain complète(s)
1
Demi Salle(s) de Bain
-
Type de garage
1 voiture (420 pi²)
Superficie balcon et/ou perron abrité
35 pi²

Rez-de-chaussée

Pièces
Dimensions
Plafond
Cuisine
20'4" x 12'4"
~ 8'0"
Salle de séjour
13'0" x 16'0"
~ 8'6"
Entrée ou vestibule
6'0" x 7'10"
~ 8'0"
Vestiaire
2'0" x 4'0"
~ 8'0"
Salle de bain complète
14'0" x 6'6"
~ 8'0"
Chambre à coucher
14'0" x 11'0"
~ 8'0"
Chambre à coucher
12'0" x 10'4"
~ 8'0"
Garage
13'4" x 28'4"
~ 9'4"
Lingerie
1'10" x 2'0"
~ 8'0"
Perron
8'8" x 4'0"
N/D
Patio
8'0" x 5'0"
N/D
Garde-robe
3'0" x 2'0"
~ 8'0"

Plan économique de plain-pied avec garage

.

Éléments distinctifs

Salle de séjour attrayante avec son plancher abaissé et son foyer bien localisé. Cuisine originale avec cloison à angle. Deux belles chambres. Garage avec descente au sous-sol.

Particularité(s) du plan

Foyer, Comptoir-lunch, Plafond à plus de 8', Salon en contrebas, Bain et douche séparés, Accès au sous-sol du garage, Vestibule

Style(s) architectural du plan

Ranch, Européen, Traditionnelle

Plans similaires
Logo Dessins Drummond image Dessins Drummond
Le modèle Caplan est protégé par la loi sur les droits d'auteur.

Les illustrations présentées peuvent différer du plan détaillé que vous recevrez, car ces derniers sont régulièrement ajustés afin de respecter les normes de construction en vigueur.

En savoir plus

Une question ou un commentaire sur ce plan ?

Information de contact

Votre demande

Ajouter vos images ou photos

Pour ajouter une ou des photos, veuillez cliquer ou glisser vos fichiers dans la zone ci-bas. Vous pouvez ajouter jusqu'à huit photos JPG ou JPEG. Cette opération n'est pas obligatoire.

Désolé, votre navigateur ne supporte pas l'envoi de fichier.