Vue avant - MODÈLE DE BASE - Plan de maison de plain-pied 2 chambres, garage double, buanderie au rez-de-chaussée, foyer - Alice 3

Vue avant - MODÈLE DE BASE

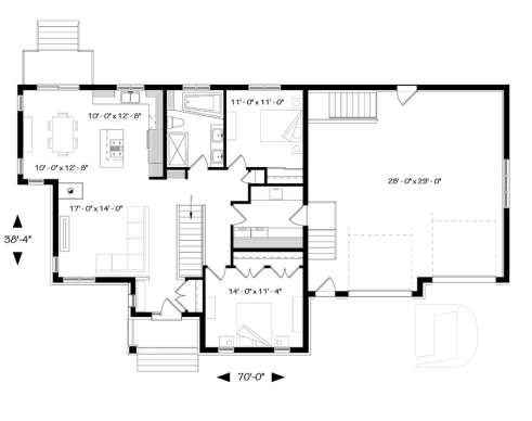
Rez-de-chaussée - Plan de maison de plain-pied 2 chambres, garage double, buanderie au rez-de-chaussée, foyer - Alice 3

Rez-de-chaussée

Vue intérieure - Alice 3

Vue intérieure

Alice 3 Plan de maison 3133-V5

Plan de maison de plain-pied 2 chambres, garage double, buanderie au rez-de-chaussée, foyer

Fiche technique sommaire Plan #3133-V5
Estimation ($) 439,876$
Surface habitable 1313 pi² Chambre 2
Salle de Bain 1 Salle d'eau -
Fondation incluse Sous-sol aménageable Garage 2 voitures
Largeur 70'0" Profondeur 38'4"

Besoin d’aide ?

Nos experts vous guident dans votre projet grâce à plus de 30 bureaux au Québec.

Joignez-nous

Consultez notre guide utilisateur

Un outil conçu pour vous simplifier la vie.

Ouvrir le guide

Besoin d’une assurance habitation ?

Pour obtenir votre prix, c’est juste ici

Obtenir une soumission

Photos du plan Alice 3

Les photos de cette maison peuvent différer du plan d'origine, duquel elles proviennent. Pour toute modification, veuillez contacter l’un de nos 30 bureaux.

Détails supplémentaires

Estimation

Spécifications générales

Surface aménagée totale
1313 pi²
Rez-de-chaussée
1313 pi²
Largeur
70'0"
Profondeur
38'4"
Hauteur dessus fondations au faite
22'0"
Murs extérieurs
2 X 6
Murs extérieurs
2 X 6
Sous-sol aménageable
Autres fondations disponibles (des frais peuvent s'appliquer)
Dalle flottante, Vide sanitaire
Code Entrepreneur
C

Spécifications sur les pièces

Chambre(s)
2
Salle(s) de bain complète(s)
1
Demi Salle(s) de Bain
-
Type de garage
2 voitures (835 pi²)
Superficie balcon et/ou perron abrité
-

Rez-de-chaussée

Pièces
Dimensions
Plafond
Chambre à coucher
14'0" x 11'4"
~ 8'0"
Garde-robe
10'0" x 2'0"
~ 8'0"
Chambre à coucher
11'0" x 11'0"
~ 8'0"
Garde-robe
5'2" x 2'0"
~ 8'0"
Cuisine/dinette
10'0" x 12'8"
~ 8'0"
Garde-manger
2'0" x 1'8"
~ 8'0"
Entrée ou vestibule
7'2" x 4'8"
~ 8'0"
Garde-robe
2'2" x 4'8"
~ 8'0"
Garage
28'0" x 29'0"
~ 11'4"
Lingerie
2'0" x 2'0"
~ 8'0"
Rangement
2'8" x 1'4"
~ 8'0"
Salle à manger
10'0" x 12'8"
~ 8'0"
Salle de bain complète
8'2" x 11'0"
~ 8'0"
Douche
3'0" x 5'0"
N/D
Lingerie
1'0" x 2'10"
N/D
Salle de séjour
17'0" x 14'0"
~ 8'0"
Salle utilitaire (buanderie +)
10'0" x 8'10"
~ 8'0"

Plan de plain-pied avec garage double, 2 chambres et buanderie au rez-de-chaussée

Conçu à partir du plan 3133, ce modèle version avec garage double s’adresse plus particulièrement à une clientèle avisée ou plus âgée dont le besoin de vivre sur un même plancher prend le dessus sur le nombre de chambres voire même sur le coût de construction. Voilà pourquoi, à l’intérieur, les trois chambres prévues au plan d’origine font place à un aménagement de deux chambres alors que la troisième chambre est ici convertie en véritable buanderie ou salle utilitaire dans laquelle un large comptoir avec cuve intégrée et un espace congélateur seront grandement appréciés. Bien entendu, cette approche « boomer » se caractérise aussi par l’addition d’un garage double de très beau format avec porte de service à l’avant comme à l’arrière et escalier conduisant au sous-sol. Sans oublier, l’ajout de plus de 100 pi2 au rez-de-chaussée pour des pièces toutes plus confortables que sur le plan original ainsi qu’un secteur activités entièrement ouvert et abondamment fenêtré avec foyer en plein cœur de celui-ci. C’est aussi, une cuisine avec excellent rangement et îlot-lunch et une salle de bain avec vanité double, bain d’angle confortable et douche indépendante de 3pi x 6pi. Propriétaires avisés, à vous de jouer !

Éléments distinctifs

Maison Craftsman, aux couleurs et matériaux très tendance.
Garage double de beau format avec descente au sous-sol et accès à la maison via la salle utilitaire.
Salle à manger abondamment fenêtrée.
Cuisine/dînette avec îlot-lunch central de 40po x 64po.
Salle de bain avec vanité double et douche de 36po x 60po.
Salle utilitaire incluant buanderie, comptoir, cuve et espace congélateur.
Foyer trois faces au séjour.

Particularité(s) du plan

Accès au sous-sol du garage, Salle de lavage au rez-de-chaussée, Foyer, Ilôt, Aire ouverte

Style(s) architectural du plan

Nordique, Champêtre, Moderne rustique, Contemporain / Zen, Ranch, Transitionnel, En montagne

Plans similaires
Logo Dessins Drummond image Dessins Drummond
Le modèle Alice 3 est protégé par la loi sur les droits d'auteur.

Les illustrations présentées peuvent différer du plan détaillé que vous recevrez, car ces derniers sont régulièrement ajustés afin de respecter les normes de construction en vigueur.

En savoir plus

Une question ou un commentaire sur ce plan ?

Information de contact

Votre demande

Ajouter vos images ou photos

Pour ajouter une ou des photos, veuillez cliquer ou glisser vos fichiers dans la zone ci-bas. Vous pouvez ajouter jusqu'à huit photos JPG ou JPEG. Cette opération n'est pas obligatoire.

Désolé, votre navigateur ne supporte pas l'envoi de fichier.