Vue avant - MODÈLE DE BASE - Plan de chalet, planchers inversés, 2 salon, bureau double, plafond 9', 3 à 4 chambres, grande terrasse - Bellcast

Vue avant - MODÈLE DE BASE

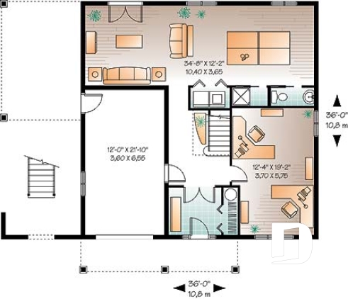
Rez-de-chaussée - Plan de chalet, planchers inversés, 2 salon, bureau double, plafond 9', 3 à 4 chambres, grande terrasse - Bellcast

Rez-de-chaussée

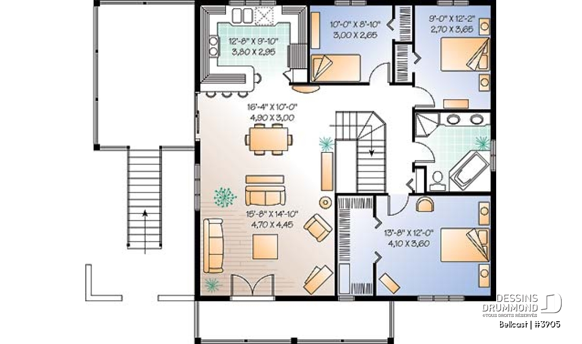
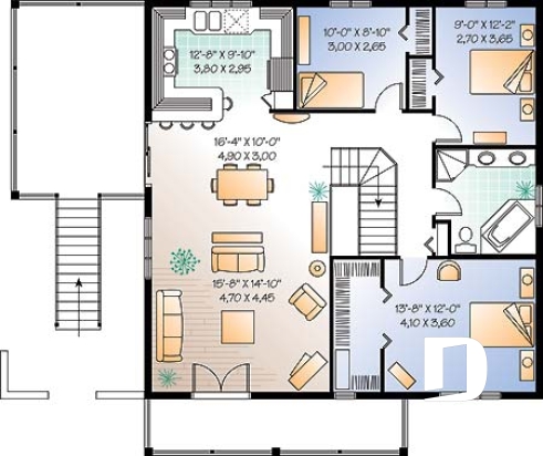
Étage - Plan de chalet, planchers inversés, 2 salon, bureau double, plafond 9', 3 à 4 chambres, grande terrasse - Bellcast

Étage

Élévation arrière - Bellcast

Élévation arrière

Bellcast Plan de maison 3905

Plan de chalet, planchers inversés, 2 salon, bureau double, plafond 9', 3 à 4 chambres, grande terrasse

À partir de

1765$

Fiche technique sommaire Plan #3905
Estimation ($) 579,147$
Surface habitable 2307 pi² Chambre 3, 4
Salle de Bain 1 Salle d'eau -
Fondation incluse Dalle flottante Garage 1 voiture
Largeur 36'0" Profondeur 36'0"

Besoin d’aide ?

Nos experts vous guident dans votre projet grâce à plus de 30 bureaux au Québec.

Joignez-nous

Consultez notre guide utilisateur

Un outil conçu pour vous simplifier la vie.

Ouvrir le guide

Un accompagnement sur mesure

De la modification de plans au design d’intérieur, nous vous guidons à chaque étape.

Découvrir nos services

Photos du plan Bellcast

Les photos de cette maison peuvent différer du plan d'origine, duquel elles proviennent. Pour toute modification, veuillez contacter l’un de nos 30 bureaux.

Détails supplémentaires

Estimation

Spécifications générales

Surface aménagée totale
2307 pi²
Rez-de-chaussée
1011 pi²
Étage
1296 pi²
Largeur
36'0"
Profondeur
36'0"
Hauteur dessus fondations au faite
28'10"
Murs extérieurs
2 X 6
Murs extérieurs
2 X 6
Autres fondations disponibles (des frais peuvent s'appliquer)
Vide sanitaire, Dalle monolithique
Code Entrepreneur
F

Spécifications sur les pièces

Chambre(s)
3, 4
Salle(s) de bain complète(s)
1
Demi Salle(s) de Bain
-
Type de garage
1 voiture (285 pi²)
Superficie balcon et/ou perron abrité
-

Rez-de-chaussée

Pièces
Dimensions
Plafond
Bureau à domicile
12'4" x 22'2"
~ 8'0"
Entrée ou vestibule
8'2" x 6'0"
~ 8'0"
Garage
12'0" x 21'10"
~ 8'0"
Espace boni aménageable
34'8" x 12'2"
~ 8'0"

Étage

Pièces
Dimensions
Plafond
Salle de bain complète
9'0" x 9'10"
~ 9'0"
Cuisine
12'8" x 10'0"
~ 9'0"
Salle à manger
16'4" x 10'0"
~ 9'0"
Salle de séjour
15'8" x 14'10"
~ 9'0"
Chambre à coucher
13'8" x 12'0"
~ 9'0"
Chambre à coucher
9'0" x 12'2"
~ 9'0"
Chambre à coucher
10'0" x 8'10"
~ 9'0"
Lingerie
1'0" x 3'0"
~ 9'0"
Balcon
23'8" x 5'0"
N/D
Patio
12'0" x 18'0"
N/D

Plan de chalet aux planchers inversés: espace principal à l'étage. 3 à 4

res

.

Éléments distinctifs

Plafond à 9 pi à l'étage. Bureau double et grande salle familiale au rez-de-chaussée. Trois chambres à l'étage dont la chambre des maîtres avec très grande garde-robe. Éviers double, bain en coin, et double séparée dans la salle de bain.

Particularité(s) du plan

Terrasse abritée, Walk-in ch. maîtres, Salle de lavage au rez-de-chaussée, Planchers inversés, Balcon à l'étage, Plafond à plus de 8', Bureau / Salle étude, Salle de jeux

Style(s) architectural du plan

Champêtre, Rustique, Traditionnelle, Chalet de ski, Vacances, bordure de lac, Chalet, En montagne

Plans similaires
Logo Dessins Drummond image Dessins Drummond
Le modèle Bellcast est protégé par la loi sur les droits d'auteur.

Les illustrations présentées peuvent différer du plan détaillé que vous recevrez, car ces derniers sont régulièrement ajustés afin de respecter les normes de construction en vigueur.

En savoir plus

Une question ou un commentaire sur ce plan ?

Information de contact

Votre demande

Ajouter vos images ou photos

Pour ajouter une ou des photos, veuillez cliquer ou glisser vos fichiers dans la zone ci-bas. Vous pouvez ajouter jusqu'à huit photos JPG ou JPEG. Cette opération n'est pas obligatoire.

Désolé, votre navigateur ne supporte pas l'envoi de fichier.