Vue avant - MODÈLE DE BASE - Plan de maison moderne 3 chambres, bureau, mezzanine, espace ouvert, îlot, garage - Turret

Vue avant - MODÈLE DE BASE

Rez-de-chaussée - Plan de maison moderne 3 chambres, bureau, mezzanine, espace ouvert, îlot, garage - Turret

Rez-de-chaussée

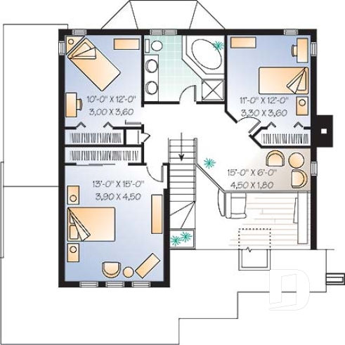
Étage - Plan de maison moderne 3 chambres, bureau, mezzanine, espace ouvert, îlot, garage - Turret

Étage

Élévation arrière - Turret

Élévation arrière

Turret Plan de maison 2666

Plan de maison moderne 3 chambres, bureau, mezzanine, espace ouvert, îlot, garage

À partir de

1655$

Fiche technique sommaire Plan #2666
Estimation ($) 483,260$
Surface habitable 1968 pi² Chambre 3
Salle de Bain 2 Salle d'eau -
Fondation incluse Sous-sol aménageable Garage 1 voiture
Largeur 40'4" Profondeur 40'4"

Besoin d’aide ?

Nos experts vous guident dans votre projet grâce à plus de 30 bureaux au Québec.

Joignez-nous

Consultez notre guide utilisateur

Un outil conçu pour vous simplifier la vie.

Ouvrir le guide

Un accompagnement sur mesure

De la modification de plans au design d’intérieur, nous vous guidons à chaque étape.

Découvrir nos services

Détails supplémentaires

Estimation

Spécifications générales

Surface aménagée totale
1968 pi²
Rez-de-chaussée
1072 pi²
Étage
896 pi²
Largeur
40'4"
Profondeur
40'4"
Hauteur dessus fondations au faite
29'6"
Murs extérieurs
2 X 6
Murs extérieurs
2 X 6
Sous-sol aménageable
Autres fondations disponibles (des frais peuvent s'appliquer)
Dalle flottante, Vide sanitaire, Dalle monolithique
Code Entrepreneur
E

Spécifications sur les pièces

Chambre(s)
3
Salle(s) de bain complète(s)
2
Demi Salle(s) de Bain
-
Type de garage
1 voiture (448 pi²)
Superficie balcon et/ou perron abrité
24 pi²

Rez-de-chaussée

Pièces
Dimensions
Plafond
Cuisine
14'0" x 12'4"
~ 8'0"
Garde-manger
1'6" x 2'8"
~ 8'0"
Salle à manger
12'4" x 15'0"
~ 8'0"
Salle de séjour
15'0" x 16'8"
~ 8'0"
Bureau à domicile
12'0" x 9'0"
~ 8'0"
Salle de douche/buanderie
8'8" x 8'0"
~ 8'0"
Garage
19'4" x 20'4"
~ 9'6"
Garde-robe
3'4" x 2'0"
~ 8'0"
Perron abrité
7'8" x 3'6"
N/D
Terrasse
10'0" x 5'0"
N/D
Garde-robe
5'0" x 2'10"
~ 8'0"

Étage

Pièces
Dimensions
Plafond
Salle de bain complète
10'8" x 8'8"
~ 8'0"
Chambre à coucher
13'0" x 15'0"
~ 8'0"
Garde-robe
10'0" x 2'0"
~ 8'0"
Chambre à coucher
11'0" x 12'0"
~ 8'0"
Garde-robe
7'6" x 2'0"
~ 8'0"
Chambre à coucher
10'0" x 12'0"
~ 8'0"
Garde-robe
7'8" x 2'0"
~ 8'0"
Lingerie
2'0" x 2'0"
~ 8'0"
Mezzanine
15'0" x 6'0"
~ 8'0"

Plan de maison moderne intemporel avec 3 chambres et garage, et grande cuisine!

.

Éléments distinctifs

Bureau ou 4e chambre, puit de lumière, perron avant abrité, bureau, plafond cathédrale à la salle familiale/salle à manger, éviers double dans chacune des salles de bain, fenestration spéciale, cheminée, portes de service au garage.

Particularité(s) du plan

Mezzanine, Bureau / Salle étude, Salle de lavage au rez-de-chaussée, Ilôt, Plafond en pente, Boudoir / Vivoir, Bain et douche séparés, Lavabo double

Style(s) architectural du plan

Moderne

Logo Dessins Drummond image Dessins Drummond
Le modèle Turret est protégé par la loi sur les droits d'auteur.

Les illustrations présentées peuvent différer du plan détaillé que vous recevrez, car ces derniers sont régulièrement ajustés afin de respecter les normes de construction en vigueur.

En savoir plus

Une question ou un commentaire sur ce plan ?

Information de contact

Votre demande

Ajouter vos images ou photos

Pour ajouter une ou des photos, veuillez cliquer ou glisser vos fichiers dans la zone ci-bas. Vous pouvez ajouter jusqu'à huit photos JPG ou JPEG. Cette opération n'est pas obligatoire.

Désolé, votre navigateur ne supporte pas l'envoi de fichier.