Vue avant - MODÈLE DE BASE - Plan de chalet de ski avec planchers inversés: chambre des maîtres et espaces communs à l'étage - Charleston 2

Vue avant - MODÈLE DE BASE

Rez-de-chaussée - Plan de chalet de ski avec planchers inversés: chambre des maîtres et espaces communs à l'étage - Charleston 2

Rez-de-chaussée

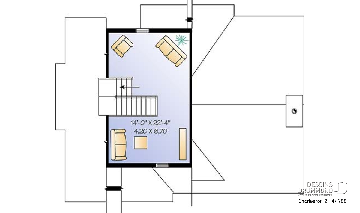
Étage - Plan de chalet de ski avec planchers inversés: chambre des maîtres et espaces communs à l'étage - Charleston 2

Étage

Sous-sol - Plan de chalet de ski avec planchers inversés: chambre des maîtres et espaces communs à l'étage - Charleston 2

Sous-sol

Élévation arrière - Charleston 2

Élévation arrière

Version couleur no. 1 - Vue avant - Charleston 2

Version couleur no. 1 - Vue avant

Charleston 2 Plan de maison 4955

Plan de chalet de ski avec planchers inversés: chambre des maîtres et espaces communs à l'étage

À partir de

1655$

Fiche technique sommaire Plan #4955
Estimation ($) - (Sous-sol non-fini) | 453,070$ (Sous-sol fini)
Surface habitable 2117 pi² Chambre 3, 4
Salle de Bain 2 Salle d'eau -
Fondation incluse Sous-sol aménagé + sortie extérieure (Rez-de-jardin) Garage 1 voiture
Largeur 38'0" Profondeur 30'0"

Besoin d’aide ?

Nos experts vous guident dans votre projet grâce à plus de 30 bureaux au Québec.

Joignez-nous

Consultez notre guide utilisateur

Un outil conçu pour vous simplifier la vie.

Ouvrir le guide

Un accompagnement sur mesure

De la modification de plans au design d’intérieur, nous vous guidons à chaque étape.

Découvrir nos services

Détails supplémentaires

Estimation

Spécifications générales

Surface aménagée totale
2117 pi²
Rez-de-chaussée
1017 pi²
Étage
384 pi²
Sous-sol
716 pi²
Largeur
38'0"
Profondeur
30'0"
Hauteur dessus fondations au faite
30'5"
Murs extérieurs
2 X 6
Murs extérieurs
2 X 6
Sous-sol aménagé + sortie extérieure (Rez-de-jardin)
Code Entrepreneur
E

Spécifications sur les pièces

Chambre(s)
3, 4
Salle(s) de bain complète(s)
2
Demi Salle(s) de Bain
-
Type de garage
1 voiture (302 pi²)
Superficie balcon et/ou perron abrité
-

Sous-sol

Pièces
Dimensions
Plafond
Garage
12'8" x 22'0"
~ 8'6"
Salle de bain complète
7'1" x 7'3"
~ 8'0"
Chambre à coucher
12'9" x 9'6"
~ 8'0"
Chambre à coucher
10'0" x 10'0"
~ 8'0"
Entrée ou vestibule
6'10" x 6'6"
~ 8'0"
Salle utilitaire (buanderie +)
5'4" x 3'5"
~ 8'0"
Salle de jeux
12'8" x 22'0"
~ 8'6"
Rangement
6'4" x 8'8"
N/D

Rez-de-chaussée

Pièces
Dimensions
Plafond
Salle de bain complète
12'8" x 7'6"
~ 8'0"
Cuisine
10'8" x 9'10"
~ 8'0"
Salle à manger
10'0" x 16'4"
~ 8'0"
Salle de séjour
13'4" x 22'0"
~ 8'0"
Chambre à coucher
13'0" x 11'10"
~ 8'0"
Terrasse
8'0" x 5'0"
N/D
Terrasse
24'4" x 6'8"
N/D

Étage

Pièces
Dimensions
Plafond
Salle de jeux
14'0" x 22'4"
~ 8'0"

Plan de chalet de ski avec planchers inversés: cuisine et salon à l'étage, chambres secondaires au rez-de-chaussée

Original avec son approche suggérant un secteur activités à l’étage, ce « chalet » ne s’arrête pas à offrir une vue panoramique exceptionnelle car il propose aussi de bien beaux espaces intérieurs ainsi qu’un extérieur des plus chaleureux et tout à fait dans le ton de ces chalets que l’on retrouve aux abords des pistes de ski.

Au rez-de-chaussée, un vestibule avec grande garde-robe, deux belles chambres, un coin buanderie, une salle de douche et un grand rangement procurent à ce plancher plusieurs commodités. De plus, que dire de ce garage qu’il vous est possible de convertir en grande salle familiale; une suggestion d’ailleurs incluse au plan.

À l’étage, un grand secteur activités, abondamment éclairé et doté d’un plafond cathédrale, s’organise fort bien autour du foyer alors qu’une chambre des maîtres, avec garde-robe de type « walk-in » et accès à la salle de bain, complète parfaitement ce plancher.

En l’absence d’un sous-sol, un second étage, genre « loft », s’ajoute à l’ensemble afin d’offrir davantage d’espace aménageable et pourquoi pas pour les visiteurs qui certes se feront davantage nombreux avec une telle demeure.

Amateurs de sports d’hiver, à vous la chance !


Éléments distinctifs

Garage pouvant être converti en salle familiale ou salle de jeux (option incluse avec le plan), fenestration abondante, volets, plafond cathédrale à la salle familiale, jeux de volume au plafond, terrasse au rez-de-chaussée.

Particularité(s) du plan

Foyer, Plafond cathédrale, Loft, Ilôt, Bain et douche séparés, Lavabo double, Vestibule, Salle de lavage au rez-de-chaussée, Balcon à l'étage

Style(s) architectural du plan

Nordique, Champêtre, Vacances, bordure de lac, Chalet de ski, A-Frame, Rustique, Moderne rustique, Chalet

Plans similaires
Logo Dessins Drummond image Dessins Drummond
Le modèle Charleston 2 est protégé par la loi sur les droits d'auteur.

Les illustrations présentées peuvent différer du plan détaillé que vous recevrez, car ces derniers sont régulièrement ajustés afin de respecter les normes de construction en vigueur.

En savoir plus

Une question ou un commentaire sur ce plan ?

Information de contact

Votre demande

Ajouter vos images ou photos

Pour ajouter une ou des photos, veuillez cliquer ou glisser vos fichiers dans la zone ci-bas. Vous pouvez ajouter jusqu'à huit photos JPG ou JPEG. Cette opération n'est pas obligatoire.

Désolé, votre navigateur ne supporte pas l'envoi de fichier.