Vue avant - MODÈLE DE BASE - Plan de cottage d'inspiration victorienne moderne, 2 chambres, salle de lavage au rez-de-chaussée - Vicky

Vue avant - MODÈLE DE BASE

Rez-de-chaussée - Plan de cottage d'inspiration victorienne moderne, 2 chambres, salle de lavage au rez-de-chaussée - Vicky

Rez-de-chaussée

Étage option 1 - Plan de cottage d'inspiration victorienne moderne, 2 chambres, salle de lavage au rez-de-chaussée - Vicky

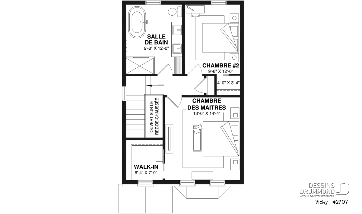
Étage option 1

Élévation arrière - Vicky

Élévation arrière

Vicky Plan de maison 2707

Plan de cottage d'inspiration victorienne moderne, 2 chambres, salle de lavage au rez-de-chaussée

À partir de

1440$

Fiche technique sommaire Plan #2707
Estimation ($) 349,591$
Surface habitable 1357 pi² Chambre 2
Salle de Bain 1 Salle d'eau 1
Fondation incluse Sous-sol aménageable Garage -
Largeur 21'0" Profondeur 33'10"

Besoin d’aide ?

Nos experts vous guident dans votre projet grâce à plus de 30 bureaux au Québec.

Joignez-nous

Consultez notre guide utilisateur

Un outil conçu pour vous simplifier la vie.

Ouvrir le guide

Besoin d’une assurance habitation ?

Pour obtenir votre prix, c’est juste ici

Obtenir une soumission

Détails supplémentaires

Estimation

Spécifications générales

Surface aménagée totale
1357 pi²
Rez-de-chaussée
685 pi²
Étage option 1
672 pi²
Largeur
21'0"
Profondeur
33'10"
Hauteur dessus fondations au faite
25'6"
Murs extérieurs
2 X 6
Murs extérieurs
2 X 6
Sous-sol aménageable
Autres fondations disponibles (des frais peuvent s'appliquer)
Dalle flottante, Vide sanitaire, Dalle monolithique
Code Entrepreneur
C

Spécifications sur les pièces

Chambre(s)
2
Salle(s) de bain complète(s)
1
Demi Salle(s) de Bain
1
Type de garage
-
Superficie balcon et/ou perron abrité
32 pi²

Rez-de-chaussée

Pièces
Dimensions
Plafond
Salle de séjour/salle à manger
13'0" x 21'0"
~ 8'0"
Perron
8'0" x 4'0"
N/D
Terrasse
9'0" x 4'0"
N/D
Cuisine
10'7" x 9'4"
~ 8'0"
Îlot
4'8" x 3'6"
N/D
Salle de lavage
6'0" x 5'0"
~ 8'0"
Demie salle de bain ou coin toilette
2'6" x 6'8"
~ 8'0"
Entrée ou vestibule
5'4" x 6'4"
~ 8'0"
Garde-robe
4'0" x 2'0"
N/D

Étage option 1

Pièces
Dimensions
Plafond
Chambre à coucher
13'0" x 14'4"
~ 8'0"
Walk-in
6'4" x 7'0"
~ 8'0"
Salle de bain complète
9'8" x 12'0"
~ 8'0"
Douche
5'0" x 3'0"
N/D
Lingerie
3'0" x 1'4"
N/D
Chambre à coucher
9'6" x 12'0"
~ 8'0"
Garde-manger
0'0" x 0'0"
N/D
Walk-in
4'0" x 3'4"
~ 8'0"
Lingerie
3'4" x 1'5"
~ 8'0"

Sous-sol

Plan de cottage 2 chambres, abordable et parfait pour terrain étroit!

.

Éléments distinctifs

Petite maison d'inspiration victorienne moderne, très attrayante pour les terrains étroits.
Plancher à aire ouverte.
Entrée avec meuble intégré pour rangement.
Séjour avec un petit banc dans la fenêtre avant.
Cuisine avec îlot et ouverte sur la salle à manger.
Coins salle de lavage et salle d'eau prévus au rez-de-chaussée.
Chambre des parents de grand format et avec un walk-in.
Chambre secondaire avec un petit walk-in également.
Grande salle de bain familiale avec 2 lavabos, bain et douche séparés.
Sous-sol non fini à aménager selon vos besoins.

Particularité(s) du plan

Terrain étroit, Salle de lavage au rez-de-chaussée, Walk-in ch. maîtres, Bain et douche séparés, Lavabo double, Ilôt, Aire ouverte, Meuble(s) encastré(s), Banquette

Style(s) architectural du plan

Européen, Traditionnelle, Anglais, Victorien moderne

Plans similaires
Logo Dessins Drummond image Dessins Drummond
Le modèle Vicky est protégé par la loi sur les droits d'auteur.

Les illustrations présentées peuvent différer du plan détaillé que vous recevrez, car ces derniers sont régulièrement ajustés afin de respecter les normes de construction en vigueur.

En savoir plus

Une question ou un commentaire sur ce plan ?

Information de contact

Votre demande

Ajouter vos images ou photos

Pour ajouter une ou des photos, veuillez cliquer ou glisser vos fichiers dans la zone ci-bas. Vous pouvez ajouter jusqu'à huit photos JPG ou JPEG. Cette opération n'est pas obligatoire.

Désolé, votre navigateur ne supporte pas l'envoi de fichier.