Vue avant - MODÈLE DE BASE - Plan de maison d'inspiration française à étages avec garage, foyer central et cuisine avec îlot. - Italianate

Vue avant - MODÈLE DE BASE

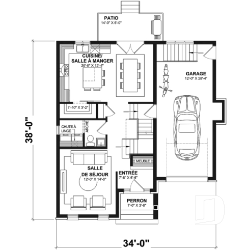
Rez-de-chaussée - Plan de maison d'inspiration française à étages avec garage, foyer central et cuisine avec îlot. - Italianate

Rez-de-chaussée

Étage - Plan de maison d'inspiration française à étages avec garage, foyer central et cuisine avec îlot. - Italianate

Étage

Élévation arrière - Italianate

Élévation arrière

Alternative - Italianate

Alternative

Alternative - Italianate

Alternative

Italianate Plan de maison 3411

Plan de maison d'inspiration française à étages avec garage, foyer central et cuisine avec îlot.

À partir de

1600$

Fiche technique sommaire Plan #3411
Estimation ($) 489,805$
Surface habitable 1797 pi² Chambre 3
Salle de Bain 2 Salle d'eau 1
Fondation incluse Sous-sol aménageable Garage 1 voiture
Largeur 34'0" Profondeur 38'0"

Besoin d’aide ?

Nos experts vous guident dans votre projet grâce à plus de 30 bureaux au Québec.

Joignez-nous

Consultez notre guide utilisateur

Un outil conçu pour vous simplifier la vie.

Ouvrir le guide

Un accompagnement sur mesure

De la modification de plans au design d’intérieur, nous vous guidons à chaque étape.

Découvrir nos services

Photos du plan Italianate

Les photos de cette maison peuvent différer du plan d'origine, duquel elles proviennent. Pour toute modification, veuillez contacter l’un de nos 30 bureaux.

Détails supplémentaires

Estimation

Spécifications générales

Surface aménagée totale
1797 pi²
Rez-de-chaussée
766 pi²
Étage
1031 pi²
Largeur
34'0"
Profondeur
38'0"
Hauteur dessus fondations au faite
30'1"
Murs extérieurs
2 X 6
Murs extérieurs
2 X 6
Sous-sol aménageable
Code Entrepreneur
D

Spécifications sur les pièces

Chambre(s)
3
Salle(s) de bain complète(s)
2
Demi Salle(s) de Bain
1
Type de garage
1 voiture (392 pi²)
Superficie balcon et/ou perron abrité
22 pi²

Rez-de-chaussée

Pièces
Dimensions
Plafond
Salle de séjour
12'0" x 14'0"
~ 8'0"
Lingerie
3'2" x 1'8"
~ 8'0"
Entrée ou vestibule
7'8" x 6'6"
~ 8'0"
Garde-robe
5'0" x 1'10"
~ 8'0"
Salle de lavage
5'0" x 5'8"
~ 8'0"
Garage
12'0" x 28'4"
~ 8'7"
Perron
7'0" x 3'6"
N/D
Cuisine/salle à manger
20'0" x 12'4"
~ 8'0"
Garde-manger
7'10" x 3'2"
~ 8'0"
Îlot
4'0" x 4'4"
N/D
Coin toilette/lavabo
4'6" x 5'8"
~ 8'0"
Patio
14'0" x 6'0"
N/D

Étage

Pièces
Dimensions
Plafond
Salle de bain complète
10'8" x 9'2"
~ 8'0"
Douche
5'0" x 3'0"
N/D
Îlot
1'10" x 1'10"
N/D
Lingerie
1'10" x 1'10"
N/D
Chambre à coucher
10'0" x 10'0"
~ 8'0"
Garde-robe
4'9" x 2'0"
~ 8'0"
Chambre à coucher
9'8" x 10'0"
~ 8'0"
Garde-robe
5'4" x 2'0"
~ 8'0"
Suite des maîtres
12'0" x 14'0"
~ 8'0"
Walk-in
7'8" x 4'6"
~ 8'0"
Salle de douche
7'4" x 6'0"
~ 8'0"
Douche
4'0" x 3'0"
N/D
Salle familiale
12'0" x 20'0"
~ 8'0"

Plan de maison de campagne à deux étages d’inspiration française avec garage et vaste aire de vie

Cette maison de campagne à deux étages d’inspiration française marie avec finesse élégance, confort et fonctionnalité. Son architecture intemporelle séduit dès le premier regard, grâce à ses proportions harmonieuses, son style raffiné et son garage intégré qui s’harmonise parfaitement à la façade. Cette demeure représente le parfait équilibre entre charme classique et aménagements pensés pour la vie moderne.

Dès l’entrée, le ton est donné : un espace soigné et accueillant, agrémenté d’un mobilier intégré qui combine style et praticité. Chaque détail a été conçu pour maximiser le confort au quotidien tout en offrant une impression d’ordre et de cohérence.

Le salon et la salle à manger, bien distincts, permettent à chacun de profiter d’un espace chaleureux et bien défini. Ces pièces, baignées de lumière naturelle, favorisent la convivialité et les moments en famille. À proximité, une salle d’eau et une buanderie pratique simplifient la vie de tous les jours, en particulier pour les familles actives.

La cuisine, véritable cœur de la maison, séduit par son îlot central convivial et son garde-manger spacieux. Cet espace fonctionnel est idéal pour cuisiner, recevoir et partager des repas dans une ambiance détendue. Une chute à linge ingénieusement intégrée relie l’étage à la buanderie, ajoutant une touche de confort moderne rarement retrouvée dans les maisons traditionnelles.

À l’étage, la suite des parents invite à la détente avec son walk-in généreux et sa salle de douche privée, conçue pour allier intimité et élégance. Les deux chambres secondaires, lumineuses et confortables, se partagent une grande salle de bain familiale, parfaitement adaptée aux besoins des enfants ou des invités.

Le sous-sol non aménagé offre un potentiel remarquable pour créer des espaces personnalisés selon les besoins : salle familiale, bureau à domicile, gym ou chambres additionnelles. Sa flexibilité permet d’adapter la maison à l’évolution de la famille au fil du temps.

Cette maison de campagne au style français se distingue par son caractère intemporel, ses espaces bien pensés et son ambiance à la fois chaleureuse et raffinée. Parfaite pour les familles en quête d’un plan de maison élégant et fonctionnel, elle combine l’art de vivre à la française et le confort contemporain.

Éléments distinctifs

Charmante maison de campagne à deux étages d’inspiration française avec garage.
L’entrée, aménagée avec du mobilier intégré, accueille les occupants avec style et fonctionnalité.
Le salon et la salle à manger, distincts l’un de l’autre, offrent des espaces chaleureux et bien définis.
À proximité de la cuisine, se trouvent une salle d’eau et une buanderie pratique, facilitant le quotidien.
Une chute à linge relie astucieusement la salle de bain des enfants à l’étage, ajoutant une touche de commodité.
La cuisine, conviviale et fonctionnelle, propose un îlot central et un garde-manger généreux.
À l’étage, la suite des parents se distingue par son walk-in et sa salle de douche privée, tandis que les deux chambres secondaires se partagent une grande salle de bain familiale.
La salle familiale, avec son plafond en pente et son foyer central, crée une atmosphère chaleureuse et accueillante, parfaite pour les moments partagés.
Le sous-sol non aménagé offre un espace flexible à personnaliser selon les besoins et le mode de vie des occupants.

Particularité(s) du plan

Foyer, Accès au sous-sol du garage, Suite des maîtres à l'étage, Garde-manger, Chute à linge, Ilôt, Meuble(s) encastré(s), Salle de lavage au rez-de-chaussée

Style(s) architectural du plan

Campagne Française, Français Moderne, Américain, Traditionnelle, Champêtre, Tendance, Anglais

Plans similaires
Logo Dessins Drummond image Dessins Drummond
Le modèle Italianate est protégé par la loi sur les droits d'auteur.

Les illustrations présentées peuvent différer du plan détaillé que vous recevrez, car ces derniers sont régulièrement ajustés afin de respecter les normes de construction en vigueur.

En savoir plus

Une question ou un commentaire sur ce plan ?

Information de contact

Votre demande

Ajouter vos images ou photos

Pour ajouter une ou des photos, veuillez cliquer ou glisser vos fichiers dans la zone ci-bas. Vous pouvez ajouter jusqu'à huit photos JPG ou JPEG. Cette opération n'est pas obligatoire.

Désolé, votre navigateur ne supporte pas l'envoi de fichier.