Vue avant - MODÈLE DE BASE - Plan de maison à 2 étages, garage double, 4 chambres, bureau à domicile, suite des maîtres - Northbrook

Vue avant - MODÈLE DE BASE

Rez-de-chaussée - Plan de maison à 2 étages, garage double, 4 chambres, bureau à domicile, suite des maîtres - Northbrook

Rez-de-chaussée

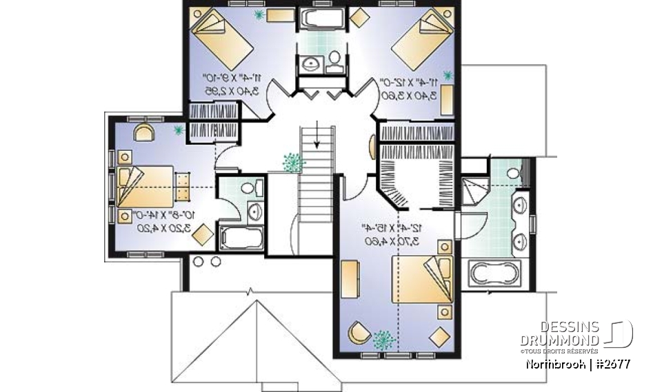
Étage - Plan de maison à 2 étages, garage double, 4 chambres, bureau à domicile, suite des maîtres - Northbrook

Étage

Élévation arrière - Northbrook

Élévation arrière

Northbrook Plan de maison 2677

Plan de maison à 2 étages, garage double, 4 chambres, bureau à domicile, suite des maîtres

À partir de

1765$

Fiche technique sommaire Plan #2677
Estimation ($) 639,682$
Surface habitable 2265 pi² Chambre 4
Salle de Bain 3 Salle d'eau 1
Fondation incluse Sous-sol aménageable Garage 2 voitures
Largeur 46'0" Profondeur 40'0"

Besoin d’aide ?

Nos experts vous guident dans votre projet grâce à plus de 30 bureaux au Québec.

Joignez-nous

Consultez notre guide utilisateur

Un outil conçu pour vous simplifier la vie.

Ouvrir le guide

Un accompagnement sur mesure

De la modification de plans au design d’intérieur, nous vous guidons à chaque étape.

Découvrir nos services

Détails supplémentaires

Estimation

Spécifications générales

Surface aménagée totale
2265 pi²
Rez-de-chaussée
1090 pi²
Étage
1175 pi²
Largeur
46'0"
Profondeur
40'0"
Hauteur dessus fondations au faite
27'2"
Murs extérieurs
2 X 6
Murs extérieurs
2 X 6
Sous-sol aménageable
Autres fondations disponibles (des frais peuvent s'appliquer)
Dalle flottante, Vide sanitaire, Dalle monolithique
Code Entrepreneur
F

Spécifications sur les pièces

Chambre(s)
4
Salle(s) de bain complète(s)
3
Demi Salle(s) de Bain
1
Type de garage
2 voitures (466 pi²)
Superficie balcon et/ou perron abrité
18 pi²

Rez-de-chaussée

Pièces
Dimensions
Plafond
Demie salle de bain ou coin toilette
3'0" x 6'2"
~ 8'0"
Cuisine
13'0" x 10'2"
~ 8'0"
Salle à manger
15'4" x 12'0"
~ 8'0"
Salle de séjour
19'8" x 14'0"
~ 8'0"
Bureau à domicile
8'0" x 9'6"
~ 10'6"
Entrée ou vestibule
7'0" x 5'0"
~ 8'0"
Garde-robe
3'0" x 2'0"
~ 8'0"
Salle utilitaire (buanderie +)
7'8" x 8'4"
~ 8'0"
Garage
20'4" x 21'0"
~ 9'8"
Garde-robe
3'4" x 2'0"
~ 8'0"
Perron abrité
6'0" x 3'2"
N/D
Terrasse
11'0" x 5'0"
N/D

Étage

Pièces
Dimensions
Plafond
Suite des maîtres
12'4" x 15'4"
~ 10'9"
Salle de bain complète
14'0" x 7'4"
~ 8'0"
Walk-in
8'0" x 6'10"
~ 8'0"
Chambre à coucher
11'4" x 12'0"
~ 8'0"
Salle de bain complète
5'0" x 7'2"
~ 8'0"
Garde-robe
8'0" x 2'0"
~ 8'0"
Chambre à coucher
11'4" x 9'10"
~ 8'0"
Garde-robe
5'2" x 2'0"
~ 8'0"
Chambre à coucher
10'8" x 14'0"
~ 11'1"
Salle de bain complète
5'0" x 8'0"
~ 8'0"
Garde-robe
5'2" x 2'0"
~ 8'0"
Lingerie
5'0" x 1'2"
~ 8'0"

Plan de maison à étage avec suite pour invités et bureau à domicile (total 4 chambres)

.

Éléments distinctifs

Bureau à domicile. Belle salle de séjour avec fenestration abondante et foyer. Grande cuisine avec îlot/lunch attrayant. Buanderie bien organisée. Quatre chambres à l'étage dont une bien belle suite chambre des maîtres.

Particularité(s) du plan

Foyer, Bureau / Salle étude, Comptoir-lunch, Mezzanine, Suite des maîtres à l'étage, Plafond cathédrale, Ilôt, Salle de lavage au rez-de-chaussée, Walk-in ch. maîtres, Salle de bain communicante, Bain et douche séparés, Lavabo double, Suite d'invités

Style(s) architectural du plan

Traditionnelle, Américain, Européen, Anglais

Plans similaires
Logo Dessins Drummond image Dessins Drummond
Le modèle Northbrook est protégé par la loi sur les droits d'auteur.

Les illustrations présentées peuvent différer du plan détaillé que vous recevrez, car ces derniers sont régulièrement ajustés afin de respecter les normes de construction en vigueur.

En savoir plus

Une question ou un commentaire sur ce plan ?

Information de contact

Votre demande

Ajouter vos images ou photos

Pour ajouter une ou des photos, veuillez cliquer ou glisser vos fichiers dans la zone ci-bas. Vous pouvez ajouter jusqu'à huit photos JPG ou JPEG. Cette opération n'est pas obligatoire.

Désolé, votre navigateur ne supporte pas l'envoi de fichier.