Vue avant - MODÈLE DE BASE - Plan de maison, garage, 3 chambres + un bureau, suite parentale à l'étage, foyer au bois et garage simple - Léana

Vue avant - MODÈLE DE BASE

Rez-de-chaussée - Plan de maison, garage, 3 chambres + un bureau, suite parentale à l'étage, foyer au bois et garage simple - Léana

Rez-de-chaussée

Étage - Plan de maison, garage, 3 chambres + un bureau, suite parentale à l'étage, foyer au bois et garage simple - Léana

Étage

Sous-sol - Plan de maison, garage, 3 chambres + un bureau, suite parentale à l'étage, foyer au bois et garage simple - Léana

Sous-sol

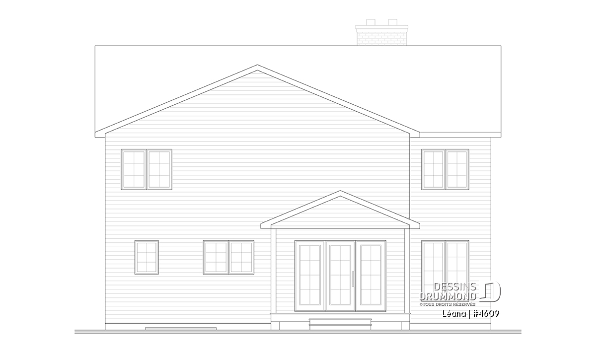
Élévation arrière - Léana

Élévation arrière

Léana Plan de maison 4609

Plan de maison, garage, 3 chambres + un bureau, suite parentale à l'étage, foyer au bois et garage simple

À partir de

1765$

Fiche technique sommaire Plan #4609
Estimation ($) 639,458$
Surface habitable 2211 pi² Chambre 3
Salle de Bain 2 Salle d'eau 1
Fondation incluse Sous-sol aménageable Garage 1 voiture
Largeur 38'0" Profondeur 40'6"

Besoin d’aide ?

Nos experts vous guident dans votre projet grâce à plus de 30 bureaux au Québec.

Joignez-nous

Consultez notre guide utilisateur

Un outil conçu pour vous simplifier la vie.

Ouvrir le guide

Un accompagnement sur mesure

De la modification de plans au design d’intérieur, nous vous guidons à chaque étape.

Découvrir nos services

Détails supplémentaires

Estimation

Spécifications générales

Surface aménagée totale
2211 pi²
Rez-de-chaussée
1043 pi²
Étage
1168 pi²
Sous-sol
1043 pi²
Largeur
38'0"
Profondeur
40'6"
Hauteur dessus fondations au faite
27'7"
Murs extérieurs
2 X 6
Murs extérieurs
2 X 6
Sous-sol aménageable
Autres fondations disponibles (des frais peuvent s'appliquer)
Dalle flottante, Vide sanitaire, Dalle monolithique
Code Entrepreneur
F

Spécifications sur les pièces

Chambre(s)
3
Salle(s) de bain complète(s)
2
Demi Salle(s) de Bain
1
Type de garage
1 voiture (300 pi²)
Superficie balcon et/ou perron abrité
18 pi²

Rez-de-chaussée

Pièces
Dimensions
Plafond
Cuisine
10'8" x 12'2"
~ 8'0"
Îlot
6'8" x 3'8"
N/D
Salle de séjour
19'0" x 17'2"
~ 8'0"
Salle à manger
12'0" x 12'4"
~ 8'0"
Entrée ou vestibule
7'0" x 5'4"
~ 8'0"
Garde-robe
2'0" x 1'9"
~ 8'0"
Garage
13'4" x 20'4"
~ 9'8"
Bureau à domicile
7'0" x 8'0"
~ 8'0"
Coin toilette/lavabo
5'4" x 6'10"
~ 8'0"
Garde-manger
5'6" x 2'4"
~ 8'0"
Perron abrité
6'0" x 3'0"
~ 8'4"
Terrasse abritée
13'8" x 12'0"
~ 8'4"

Étage

Pièces
Dimensions
Plafond
Suite des maîtres
14'4" x 11'8"
~ 8'0"
Chambre à coucher
10'6" x 16'6"
~ 11'6"
Chambre à coucher
13'8" x 12'8"
~ 8'0"
Lingerie
2'0" x 2'0"
~ 8'0"
Salle de lavage
10'6" x 6'4"
~ 8'0"
Salle de bain
9'0" x 8'0"
~ 8'0"

Sous-sol

Maison proposant plein de beaux attributs tels que la suite parentale, bureau à domicile, vestibule fermé et salle de lavage au rez-de-chaussée!

.

Éléments distinctifs

Maison spacieuse proposant 3 chambres.
Vestibule fermé à l'entrée avant.
Salle de séjour localisée au centre, et proposant un foyer au bois.
Cuisine à aire ouverte sur la salle à manger.
Salle d'eau et salle de lavage au rez-de-chaussée, en retrait de la cuisine.
Accès du garage près de la cuisine, pratique pour circuler les sacs d'épicerie!
Sous-sol non fini, à aménager. Autres types de fondation disponibles pour tous nos plans.

Particularité(s) du plan

Foyer, Bureau / Salle étude, Ilôt, Vestibule, Suite des maîtres à l'étage, Walk-in ch. maîtres

Style(s) architectural du plan

Européen, Traditionnelle, Américain

Plans similaires
Logo Dessins Drummond image Dessins Drummond
Le modèle Léana est protégé par la loi sur les droits d'auteur.

Les illustrations présentées peuvent différer du plan détaillé que vous recevrez, car ces derniers sont régulièrement ajustés afin de respecter les normes de construction en vigueur.

En savoir plus

Une question ou un commentaire sur ce plan ?

Information de contact

Votre demande

Ajouter vos images ou photos

Pour ajouter une ou des photos, veuillez cliquer ou glisser vos fichiers dans la zone ci-bas. Vous pouvez ajouter jusqu'à huit photos JPG ou JPEG. Cette opération n'est pas obligatoire.

Désolé, votre navigateur ne supporte pas l'envoi de fichier.