Vue avant - MODÈLE DE BASE - Plan de maison 4 chambres, 2.5 salles de bain, garage double, 2 garde-mangers, salle d'eau, buanderie au 1er - Paramount 2

Vue avant - MODÈLE DE BASE

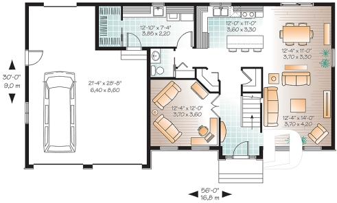
Rez-de-chaussée - Plan de maison 4 chambres, 2.5 salles de bain, garage double, 2 garde-mangers, salle d'eau, buanderie au 1er - Paramount 2

Rez-de-chaussée

Étage - Plan de maison 4 chambres, 2.5 salles de bain, garage double, 2 garde-mangers, salle d'eau, buanderie au 1er - Paramount 2

Étage

Vue arrière - MODÈLE DE BASE - Paramount 2

Vue arrière - MODÈLE DE BASE

Vue intérieure - Paramount 2

Vue intérieure

Paramount 2 Plan de maison 3867-V1

Plan de maison 4 chambres, 2.5 salles de bain, garage double, 2 garde-mangers, salle d'eau, buanderie au 1er

À partir de

1655$

Fiche technique sommaire Plan #3867-V1
Estimation ($) 535,301$
Surface habitable 1895 pi² Chambre 4
Salle de Bain 2 Salle d'eau 1
Fondation incluse Vide sanitaire Garage 2 voitures
Largeur 56'0" Profondeur 30'0"

Besoin d’aide ?

Nos experts vous guident dans votre projet grâce à plus de 30 bureaux au Québec.

Joignez-nous

Consultez notre guide utilisateur

Un outil conçu pour vous simplifier la vie.

Ouvrir le guide

Besoin d’une assurance habitation ?

Pour obtenir votre prix, c’est juste ici

Obtenir une soumission

Photos du plan Paramount 2

Les photos de cette maison peuvent différer du plan d'origine, duquel elles proviennent. Pour toute modification, veuillez contacter l’un de nos 30 bureaux.

Détails supplémentaires

Estimation

Spécifications générales

Surface aménagée totale
1895 pi²
Rez-de-chaussée
988 pi²
Étage
907 pi²
Largeur
56'0"
Profondeur
30'0"
Hauteur dessus fondations au faite
26'5"
Murs extérieurs
2 X 6
Murs extérieurs
2 X 6
Autres fondations disponibles (des frais peuvent s'appliquer)
Sous-sol aménageable, Dalle flottante, Dalle monolithique
Code Entrepreneur
E

Spécifications sur les pièces

Chambre(s)
4
Salle(s) de bain complète(s)
2
Demi Salle(s) de Bain
1
Type de garage
2 voitures (581 pi²)
Superficie balcon et/ou perron abrité
24 pi²

Rez-de-chaussée

Pièces
Dimensions
Plafond
Cuisine/dinette
12'0" x 11'0"
~ 8'0"
Salle à manger
12'4" x 11'0"
~ 8'0"
Salle de séjour
12'4" x 14'0"
~ 8'0"
Entrée ou vestibule
7'8" x 4'6"
~ 8'0"
Demie salle de bain ou coin toilette
4'2" x 5'2"
~ 8'0"
Salle de bain/buanderie
12'10" x 7'4"
~ 8'0"
Garage
21'4" x 28'8"
~ 9'8"
Bureau à domicile
12'4" x 12'0"
~ 8'0"
Rangement
3'4" x 4'0"
~ 8'0"
Lingerie
3'6" x 1'8"
~ 8'0"
Perron
8'0" x 3'4"
N/D
Terrasse
8'0" x 5'0"
N/D

Étage

Pièces
Dimensions
Plafond
Salle de douche
7'10" x 6'4"
~ 8'0"
Suite des maîtres
12'8" x 12'8"
~ 8'0"
Chambre à coucher
12'4" x 10'4"
~ 8'0"
Chambre à coucher
9'0" x 12'4"
~ 8'0"
Chambre à coucher
10'4" x 10'0"
~ 8'0"
Lingerie
3'4" x 1'4"
~ 8'0"

Plan de maison champêtre 4 chambres, garage double, coût attrayant, suite des parents

Agréablement surpris par le coût de construction du modèle 3867 dont origine ce plan version ainsi que par la réaction des acheteurs à l’égard de ce modèle d’apparence simplifiée, on a donc décidé de produire un plan similaire avec ajout de quelques utilités intérieures et attraits extérieurs. Entrons donc sans plus tarder dans ce 3867-V1 !

Nous voici au rez-de-chaussée où on peut d’abord apprécier une salle de jeux ou espace bureau indépendant de la salle de séjour, une cuisine avec îlot-lunch central et garde-manger fort logeable, une salle à manger de bon format et surtout, ce vaste espace utilitaire faisant la jonction entre la maison et le garage et comportant une garde-robe walk-in, un coin laveuse/sécheuse et un long comptoir avec cuve intégrée. Sans oublier, cet agrandissement du garage pour l’obtention de rangement additionnel et en raison du fait que ce modèle est proposé avec vide sanitaire toujours facile à convertir en sous-sol aménageable.

À l’étage, on ne peut qu’apprécier la présence de 4 chambres de belles dimensions ainsi que deux salles de bain dont une salle de douche propre à la chambre des maîtres dotée par surcroît de deux garde-robes.

Éléments distinctifs

Espace bureau ou salle de jeux prévu au rez-de-chaussée. Salle utilitaire aménagée entre le garage et la maison, en guise d'entrée de service et avec garde-robe walk-in. Espace rangement additionnel au garage et avec porte de 6' donnant sur l'arrière. Secteur activités entièrement ouvert et plusieurs rangements séparés au rez-de-chaussée. Quatre chambres à l'étage dont une suite des maîtres avec salle de douche privée et deux garde-robes.

Particularité(s) du plan

Aire ouverte, Salle de lavage au rez-de-chaussée, Bureau / Salle étude, Ilôt, Garde-manger, Walk-in ch. maîtres, Suite des maîtres à l'étage, Salle de jeux, Vestiaire

Style(s) architectural du plan

Américain, Traditionnelle, Nordique, Champêtre, Cape Cod, Transitionnel

Maibec
Maibec
Moderne
À partir de 6,25$/pi².

Spécialiste des systèmes de revêtement

Plans similaires
Logo Dessins Drummond image Dessins Drummond
Le modèle Paramount 2 est protégé par la loi sur les droits d'auteur.

Les illustrations présentées peuvent différer du plan détaillé que vous recevrez, car ces derniers sont régulièrement ajustés afin de respecter les normes de construction en vigueur.

En savoir plus

Une question ou un commentaire sur ce plan ?

Information de contact

Votre demande

Ajouter vos images ou photos

Pour ajouter une ou des photos, veuillez cliquer ou glisser vos fichiers dans la zone ci-bas. Vous pouvez ajouter jusqu'à huit photos JPG ou JPEG. Cette opération n'est pas obligatoire.

Désolé, votre navigateur ne supporte pas l'envoi de fichier.