Vue avant - MODÈLE DE BASE - Plan de maison 3 chambres + bureau, garage, grenier aménageable, brique sur 3 façades - Bellevarde

Vue avant - MODÈLE DE BASE

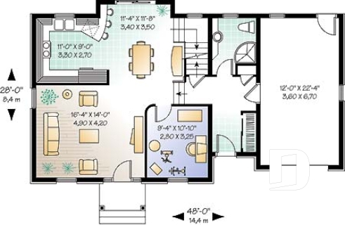
Rez-de-chaussée - Plan de maison 3 chambres + bureau, garage, grenier aménageable, brique sur 3 façades - Bellevarde

Rez-de-chaussée

Étage - Plan de maison 3 chambres + bureau, garage, grenier aménageable, brique sur 3 façades - Bellevarde

Étage

Élévation arrière - Bellevarde

Élévation arrière

Bellevarde Plan de maison 3402

Plan de maison 3 chambres + bureau, garage, grenier aménageable, brique sur 3 façades

À partir de

1655$

Fiche technique sommaire Plan #3402
Estimation ($) 580,516$
Surface habitable 1889 pi² Chambre 3
Salle de Bain 2 Salle d'eau -
Fondation incluse Sous-sol aménageable Garage 1 voiture
Largeur 48'0" Profondeur 28'0"

Besoin d’aide ?

Nos experts vous guident dans votre projet grâce à plus de 30 bureaux au Québec.

Joignez-nous

Consultez notre guide utilisateur

Un outil conçu pour vous simplifier la vie.

Ouvrir le guide

Un accompagnement sur mesure

De la modification de plans au design d’intérieur, nous vous guidons à chaque étape.

Découvrir nos services

Détails supplémentaires

Estimation

Spécifications générales

Surface aménagée totale
1889 pi²
Rez-de-chaussée
908 pi²
Étage
981 pi²
Largeur
48'0"
Profondeur
28'0"
Hauteur dessus fondations au faite
31'11"
Murs extérieurs
2 X 6
Murs extérieurs
2 X 6
Sous-sol aménageable
Code Entrepreneur
E

Spécifications sur les pièces

Chambre(s)
3
Salle(s) de bain complète(s)
2
Demi Salle(s) de Bain
-
Type de garage
1 voiture (314 pi²)
350 pi²
Superficie balcon et/ou perron abrité
28 pi²

Rez-de-chaussée

Pièces
Dimensions
Plafond
Salle de bain complète
6'10" x 8'6"
~ 8'0"
Cuisine
11'0" x 9'10"
~ 8'0"
Garde-manger
1'10" x 2'0"
N/D
Salle à manger
11'4" x 11'8"
~ 8'0"
Salle familiale
16'4" x 14'0"
~ 8'0"
Entrée ou vestibule
4'4" x 6'2"
~ 8'0"
Garage
12'0" x 22'4"
~ 9'4"
Perron
7'0" x 4'0"
N/D
Terrasse
12'0" x 5'0"
N/D
Coin bureau
9'4" x 10'10"
~ 8'0"
Garde-robe
2'10" x 1'4"
~ 8'0"

Étage

Pièces
Dimensions
Plafond
Salle de bain complète
11'7" x 9'8"
~ 8'0"
Chambre à coucher
15'8" x 14'4"
~ 8'0"
Chambre à coucher
12'0" x 12'0"
~ 8'0"
Chambre à coucher
10'0" x 10'10"
~ 8'0"
Garde-robe
4'8" x 3'10"
~ 8'0"
Salle de lavage
6'8" x 3'7"
~ 8'0"

Rangement boni

Plan de maison classique, 3 chambres et bureau à domicile, ainsi qu'un garage

.

Éléments distinctifs

Walk-in dans chambre des maîtres, Fenêtrage abondant. Grenier pouvant être aménagé, et sa finition est incluse dans le coût approx. de construction.

Particularité(s) du plan

Foyer, Comptoir-lunch, Walk-in ch. maîtres, Salle de lavage à l'étage, Plafond en pente, Bain et douche séparés, Lavabo double, Bureau / Salle étude, Walk-in ch. maîtres, Terrasse abritée

Style(s) architectural du plan

Anglais, Traditionnelle, Européen, Classique

Plans similaires
Logo Dessins Drummond image Dessins Drummond
Le modèle Bellevarde est protégé par la loi sur les droits d'auteur.

Les illustrations présentées peuvent différer du plan détaillé que vous recevrez, car ces derniers sont régulièrement ajustés afin de respecter les normes de construction en vigueur.

En savoir plus

Une question ou un commentaire sur ce plan ?

Information de contact

Votre demande

Ajouter vos images ou photos

Pour ajouter une ou des photos, veuillez cliquer ou glisser vos fichiers dans la zone ci-bas. Vous pouvez ajouter jusqu'à huit photos JPG ou JPEG. Cette opération n'est pas obligatoire.

Désolé, votre navigateur ne supporte pas l'envoi de fichier.