Vue avant - MODÈLE DE BASE - Modèle de bi-génération moderne à étage : confort, élégance et espaces adaptés à toute la famille - Linea

Vue avant - MODÈLE DE BASE

Rez-de-chaussée - Modèle de bi-génération moderne à étage : confort, élégance et espaces adaptés à toute la famille - Linea

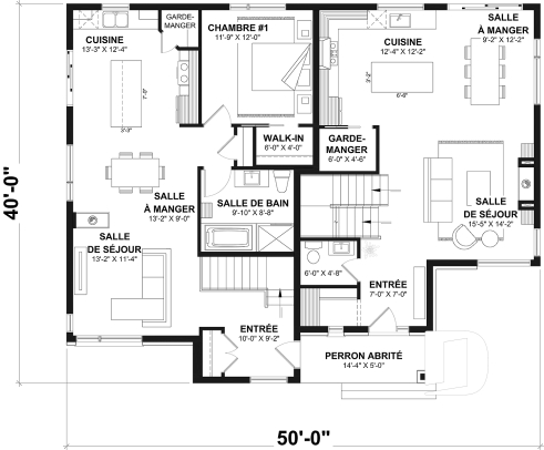
Rez-de-chaussée

Étage - Modèle de bi-génération moderne à étage : confort, élégance et espaces adaptés à toute la famille - Linea

Étage

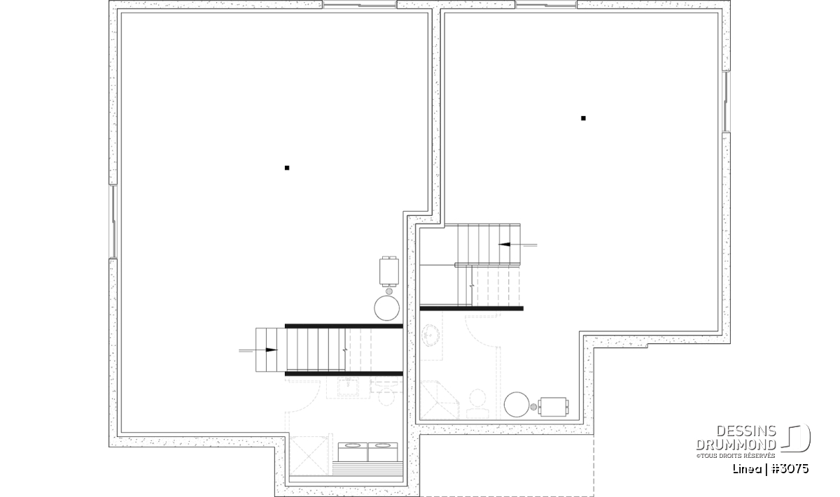
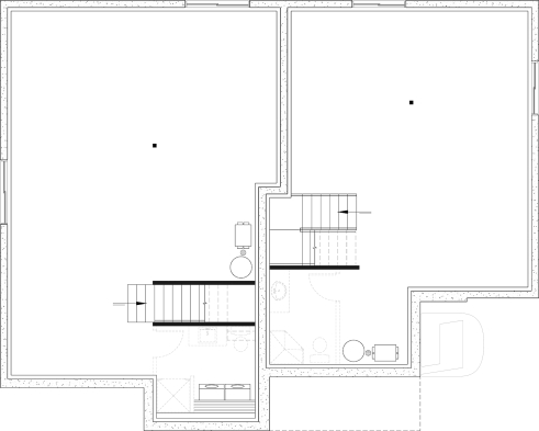
Sous-sol aménageable - Modèle de bi-génération moderne à étage : confort, élégance et espaces adaptés à toute la famille - Linea

Sous-sol aménageable

Vue avant - MODÈLE DE BASE - Linea

Vue avant - MODÈLE DE BASE

Vue arrière - MODÈLE DE BASE - Linea

Vue arrière - MODÈLE DE BASE

Linea Plan de maison 3075

Modèle de bi-génération moderne à étage : confort, élégance et espaces adaptés à toute la famille

À partir de

2175$

Fiche technique sommaire Plan #3075
Estimation ($) 886,736$
Surface habitable 2900 pi² Chambre 2, 3, 4
Salle de Bain 3 Salle d'eau 1
Fondation incluse Sous-sol aménageable Garage -
Largeur 50'0" Profondeur 40'0"

Besoin d’aide ?

Nos experts vous guident dans votre projet grâce à plus de 30 bureaux au Québec.

Joignez-nous

Consultez notre guide utilisateur

Un outil conçu pour vous simplifier la vie.

Ouvrir le guide

Besoin d’une assurance habitation ?

Pour obtenir votre prix, c’est juste ici

Obtenir une soumission

Détails supplémentaires

Estimation

Spécifications générales

Surface aménagée totale
2900 pi²
Rez-de-chaussée
1742 pi²
Étage
1158 pi²
Sous-sol aménageable
1742 pi²
Largeur
50'0"
Profondeur
40'0"
Hauteur dessus fondations au faite
28'2"
Murs extérieurs
2 X 6
Murs extérieurs
2 X 6
Sous-sol aménageable
Autres fondations disponibles (des frais peuvent s'appliquer)
Dalle flottante, Vide sanitaire, Dalle monolithique
Code Entrepreneur
MC

Spécifications sur les pièces

Chambre(s)
2, 3, 4
Salle(s) de bain complète(s)
3
Demi Salle(s) de Bain
1
Type de garage
-
Superficie balcon et/ou perron abrité
72 pi²

Spécifications des unités

LOGEMENT 1
LOGEMENT 2
Surface aménagée totale
1941 pi²
957 pi²
Rez-de-chaussée
783 pi²
957 pi²
Étage
1158 pi²
Largeur
36' 4"
26' 4"
Profondeur
35' 0"
40' 0"
Hauteur dessus fondations au faite
28' 2"
28' 2"
Murs extérieurs
2 X 6
2 X 6
Type de fondation
Sous-sol aménageable
Sous-sol aménageable
Chambre(s)
3
1
Salle(s) de bain
2
1
Demi Salle(s) de Bain
1
-
Type de garage
-
-
Espace boni aménageable
-
-
Rangement boni
-
-

Sous-sol aménageable

Rez-de-chaussée

Pièces
Dimensions
Plafond
Perron abrité
14'4" x 5'0"
~ 7'7"
Entrée ou vestibule
7'0" x 7'0"
~ 9'0"
Coin toilette/lavabo
6'0" x 4'8"
~ 9'0"
Vestiaire
6'0" x 4'0"
~ 9'0"
Salle de séjour
15'5" x 14'2"
~ 9'0"
Salle à manger
9'2" x 12'2"
~ 9'0"
Cuisine
12'4" x 12'2"
~ 9'0"
Îlot
6'6" x 3'2"
N/D
Garde-manger
6'0" x 4'6"
~ 9'0"
Chambre à coucher
11'9" x 12'0"
~ 9'0"
Walk-in
6'0" x 4'0"
~ 9'0"
Cuisine
13'3" x 12'4"
~ 9'0"
Garde-manger
4'0" x 4'0"
~ 9'0"
Îlot
7'0" x 3'3"
N/D
Garde-robe
4'2" x 1'8"
~ 9'0"
Salle de bain complète
9'10" x 8'8"
~ 9'0"
Douche
4'0" x 3'0"
N/D
Lingerie
1'7" x 1'2"
N/D
Salle à manger
13'2" x 9'0"
~ 9'0"
Salle de séjour
13'2" x 11'4"
~ 9'0"
Entrée ou vestibule
10'0" x 9'2"
~ 9'0"
Garde-robe
5'0" x 2'0"
~ 9'0"

Étage

Pièces
Dimensions
Plafond
Suite des maîtres
11'0" x 15'0"
~ 8'0"
Walk-in
7'2" x 11'0"
~ 8'0"
Salle de bain complète
10'4" x 11'0"
~ 8'0"
Douche
5'0" x 3'0"
N/D
Lingerie
1'8" x 1'10"
N/D
Salle de lavage
13'4" x 8'10"
~ 8'0"
Chambre à coucher
10'0" x 13'6"
~ 8'0"
Garde-robe
6'1" x 2'0"
~ 8'0"
Chambre à coucher
10'4" x 13'0"
~ 8'0"
Garde-robe
6'1" x 2'0"
~ 8'0"
Salle de bain
12'8" x 6'0"
~ 8'0"
Lingerie
2'0" x 1'10"
N/D
Garde-robe
6'6" x 1'8"
~ 8'0"

Plan de maison bi-génération contemporain à étage avec deux logements distincts et sous-sol aménageable

Ce magnifique plan de maison bi-génération à étage allie esthétique contemporaine et fonctionnalité pensée pour la vie familiale. Son architecture élégante se distingue par un amalgame harmonieux de matériaux aux teintes douces et chaleureuses, créant une allure intemporelle et accueillante. Véritable havre de confort, il offre deux logements distincts tout en favorisant la proximité grâce à des espaces communs bien étudiés.

Les deux unités se partagent un sous-sol non fini, offrant une toile vierge à aménager selon vos besoins et votre style de vie, qu’il s’agisse d’un espace de rangement supplémentaire, d’un atelier, d’une salle familiale ou d’une suite pour invités. L’entrée avant commune et le balcon abrité sont parfaits pour profiter des saisons et accueillir famille et amis en toute convivialité. Avec ses plafonds de 9 pieds au rez-de-chaussée, chaque logement respire l’espace et la lumière.

Côté famille (logement #1)
L’entrée spacieuse accueille une grande garde-robe pratique, tandis qu’une salle d’eau discrète assure confort et intimité. Le salon lumineux avec foyer invite à des moments chaleureux. L’aire ouverte regroupant cuisine, salle à dîner et salon est baignée d’une belle lumière naturelle, idéale pour recevoir. La cuisine fonctionnelle propose un îlot central convivial et un garde-manger généreux. La superbe suite parentale séduit par son grand walk-in et sa luxueuse salle de bain privative dotée d’une double vanité ainsi que d’un bain et d’une douche séparés. Trois chambres additionnelles se partagent une salle de bain complète, et une vaste salle de lavage avec évier intégré et beaucoup d’espace comptoir complète ce niveau.

Côté grands-parents (logement #2)
L’entrée accueillante est dotée d’une garde-robe pratique. L’aire ouverte se distingue par un foyer double-face entre la salle à manger et le salon, créant une ambiance chaleureuse. La cuisine conviviale est équipée d’un îlot central et d’un garde-manger intégré. Une chambre de bon format avec walk-in offre un bel espace de rangement, tandis qu’une salle de bain complète avec bain et douche séparés assure confort et intimité. Enfin, une salle de lavage est prévue au sous-sol pour un maximum de praticité.

Ce plan contemporain bi-génération est le choix idéal pour combiner élégance, confort et vie familiale harmonieuse.

Éléments distinctifs

Plan de maison bi-génération, à étage, de style contemporain.
Amalgame harmonieux de matériaux aux teintes douces et chaleureuses pour une allure intemporelle.
Les deux unités se partagent un sous-sol non fini, à aménager librement selon les besoins et le style de vie de chacun.
Entrée avant commune et balcon abrité, parfaits pour profiter des saisons.
Les deux logements bénéficient de plafonds de 9' au rez-de-chaussée, créant une impression d’espace et de confort.

Du côté famille (logement #1) :
Entrée spacieuse avec grande garde-robe pratique.
Salle d’eau discrète et bien située.
Salon lumineux avec foyer pour des moments conviviaux.
Aire ouverte regroupant cuisine, salle à dîner et salon, baignée d’une belle lumière naturelle.
Cuisine fonctionnelle avec îlot central et garde-manger généreux.
Superbe suite parentale avec grand walk-in et luxueuse salle de bain privative, dotée d’une double vanité ainsi que d’un bain et d’une douche séparés.
Trois chambres additionnelles se partagent une salle de bain complète.
Grande salle de lavage avec évier intégré et vaste espace comptoir.

Du côté grands-parents (logement #2) :
Entrée accueillante avec garde-robe pratique.
Aire ouverte avec foyer double-face entre la salle à manger et le salon pour une ambiance chaleureuse.
Cuisine conviviale avec îlot central et garde-manger intégré.
Chambre de bon format avec walk-in offrant un bel espace de rangement.
Salle de bain complète avec bain et douche séparés pour plus de confort.
Salle de lavage prévue au sous-sol pour un maximum de praticité.

Particularité(s) du plan

Ilôt, Garde-manger, Bain et douche séparés, Lavabo double, Plafond à plus de 8', Vestibule, Foyer, Aire ouverte, Salle de lavage à l'étage, Suite des maîtres à l'étage, Walk-in ch. maîtres

Style(s) architectural du plan

Moderne, Européen, Transitionnel, Moderne rustique, Méditerranéen, Contemporain / Zen, Nordique, Nordique Moderne

Oceania
Oceania
Concept Optimale ML

Depuis notre fondation en 1995, Bains Oceania est engagé à offrir à ses clients une expérience unique et raffinée dans leur environnement spa résidentiel. Grâce à notre savoir-faire et à notre passion pour l’innovation, nous fabriquons ici, des produits de grande qualité, pour vous.

Plans similaires
Logo Dessins Drummond image Dessins Drummond
Le modèle Linea est protégé par la loi sur les droits d'auteur.

Les illustrations présentées peuvent différer du plan détaillé que vous recevrez, car ces derniers sont régulièrement ajustés afin de respecter les normes de construction en vigueur.

En savoir plus

Une question ou un commentaire sur ce plan ?

Information de contact

Votre demande

Ajouter vos images ou photos

Pour ajouter une ou des photos, veuillez cliquer ou glisser vos fichiers dans la zone ci-bas. Vous pouvez ajouter jusqu'à huit photos JPG ou JPEG. Cette opération n'est pas obligatoire.

Désolé, votre navigateur ne supporte pas l'envoi de fichier.