Version couleur no. 1 - Vue avant - Maison moderne cubique avec garage pour motorisé et plusieurs options d'aménagement intérieur - Halte

Version couleur no. 1 - Vue avant

Rez-de-chaussée - Maison moderne cubique avec garage pour motorisé et plusieurs options d'aménagement intérieur - Halte

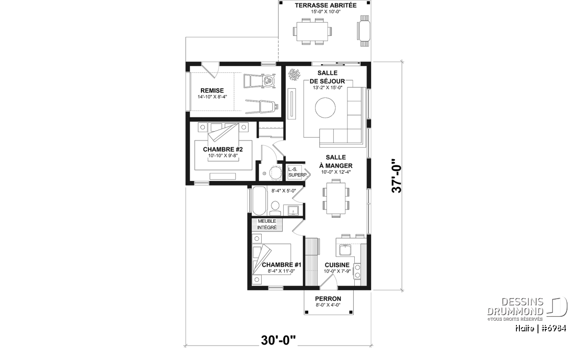
Rez-de-chaussée

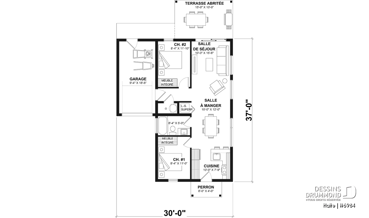
Rez-de-chaussée option 1 - Maison moderne cubique avec garage pour motorisé et plusieurs options d'aménagement intérieur - Halte

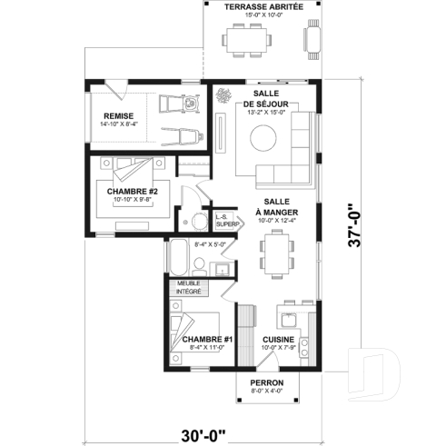
Rez-de-chaussée option 1

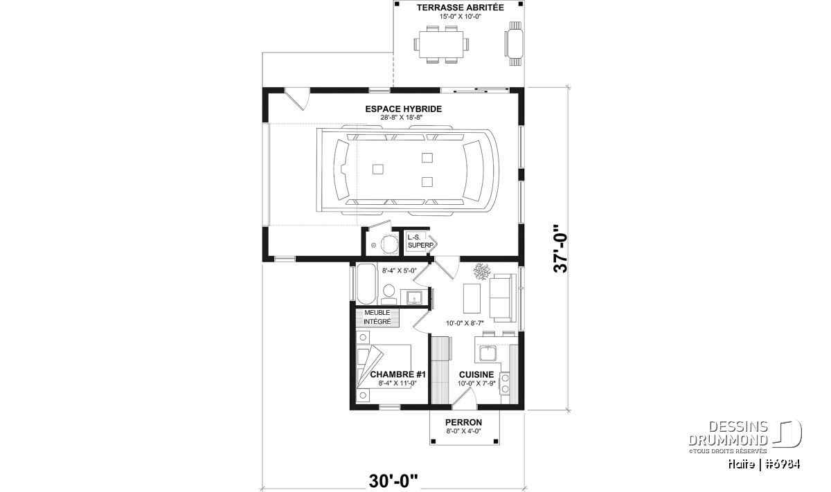
Rez-de-chaussée option 2 - Maison moderne cubique avec garage pour motorisé et plusieurs options d'aménagement intérieur - Halte

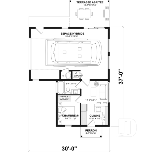
Rez-de-chaussée option 2

Élévation arrière - Halte

Élévation arrière

Version couleur no. 2 - Vue avant - Halte

Version couleur no. 2 - Vue avant

Version couleur no. 1 - Vue arrière - Halte

Version couleur no. 1 - Vue arrière

Version couleur no. 2 - Vue arrière - Halte

Version couleur no. 2 - Vue arrière

Halte Plan de maison 6984

Maison moderne cubique avec garage pour motorisé et plusieurs options d'aménagement intérieur

À partir de

1380$

Fiche technique sommaire Plan #6984
Estimation ($) 190,149$
Surface habitable 1153 pi² Chambre 1, 2
Salle de Bain 1 Salle d'eau -
Fondation incluse Dalle flottante Garage Pour VR
Largeur 30'0" Profondeur 37'0"

Besoin d’aide ?

Nos experts vous guident dans votre projet grâce à plus de 30 bureaux au Québec.

Joignez-nous

Consultez notre guide utilisateur

Un outil conçu pour vous simplifier la vie.

Ouvrir le guide

Besoin d’une assurance habitation ?

Pour obtenir votre prix, c’est juste ici

Obtenir une soumission

Détails supplémentaires

Estimation

Spécifications générales

Surface aménagée totale
1153 pi²
Rez-de-chaussée
353 pi²
Rez-de-chaussée option 1
800 pi²
Rez-de-chaussée option 2
740 pi²
Largeur
30'0"
Profondeur
37'0"
Hauteur dessus fondations au faite
19'2"
Murs extérieurs
2 X 6
Murs extérieurs
2 X 6
Autres fondations disponibles (des frais peuvent s'appliquer)
Dalle monolithique
Conception pour l'entrepreneur
Code Entrepreneur
B

Spécifications sur les pièces

Chambre(s)
1, 2
Salle(s) de bain complète(s)
1
Demi Salle(s) de Bain
-
Type de garage
Pour VR (600 pi²)
Superficie balcon et/ou perron abrité
32 pi²

Rez-de-chaussée option 1

Pièces
Dimensions
Plafond
Salle à manger
10'0" x 12'4"
~ 9'0"
Salle de séjour
13'2" x 15'0"
~ 17'8"
Coin laveuse/sécheuse
2'10" x 3'0"
~ 9'0"
Chambre à coucher
10'10" x 9'8"
~ 17'8"
Walk-in
4'0" x 3'4"
N/D
Garde-robe
4'0" x 2'0"
~ 17'8"
Arrière cuisine
0'0" x 0'0"
N/D
Garage
14'10" x 8'4"
~ 17'8"

Rez-de-chaussée option 2

Pièces
Dimensions
Plafond
Salle à manger
10'0" x 12'0"
~ 9'0"
Salle de séjour
12'0" x 15'6"
~ 17'8"
Chambre à coucher
8'4" x 11'10"
~ 17'8"
Rangement
5'0" x 2'10"
~ 17'8"
Coin laveuse/sécheuse
2'10" x 3'0"
~ 17'8"
Garage
9'4" x 18'8"
~ 17'8"

Rez-de-chaussée

Pièces
Dimensions
Plafond
Perron abrité
8'0" x 4'0"
~ 8'4"
Cuisinette
10'0" x 7'9"
~ 9'0"
Chambre à coucher
8'4" x 11'0"
~ 9'0"
Petit salon
10'0" x 8'7"
~ 9'0"
Salle de bain
8'4" x 5'0"
~ 9'0"
Garage
28'8" x 18'8"
~ 17'8"
Terrasse abritée
15'0" x 10'0"
~ 10'4"

Mini-maison moderne évolutive avec garage pour petit motorisé et options de 2 chambres avec ou sans garage simple!

.

Éléments distinctifs

Petite maison moderne avec garage de format idéal pour petit motorisé et options de 2 chambres avec ou sans garage simple. Les 3 options incluent une fondation de type dalle flottante. D'autres types de fondation sont disponibles, veuillez nous contacter.

Le plan de base de cette mini-maison de 353 pi.ca. inclut un perron avant couvert et une terrasse arrière abritée et accessible par le garage pour petit motorisé. Ce dernier inclut aussi un coin laveuse/sécheuse superposées. Le plafond de la maison est à 9' tandis que celui du garage est à 17'8'' et à 10'4'' pour la terrasse. La cuisine possède un comptoir lunch, tenant lieu de table à manger, et elle est ouverte sur la salle de séjour. Une chambre avec meuble intégré et une salle de bain complètent cette mini-maison.

L'OPTION 1 utilise l'espace du garage pour petit motorisé en le convertissant en chambre additionnelle (total de 2 chambres) et en remise avec porte de garage de petit format. De plus une salle à manger est créée et la salle de séjour s'agrandit et se déplace vers l'arrière. Les laveuse/sécheuse superposées sont relocalisées à l'intérieur près de la chambre #2. Cette dernière propose une garde-robe et un petit walk-in. Le plafond de la salle de séjour, chambre #2 ainsi que de la remise est à 17'8'' tandis qu'il est à 9' pour le reste de la maison. La terrasse arrière abritée est accessible via la salle de séjour et offre un plafond à 10'4'' de hauteur.

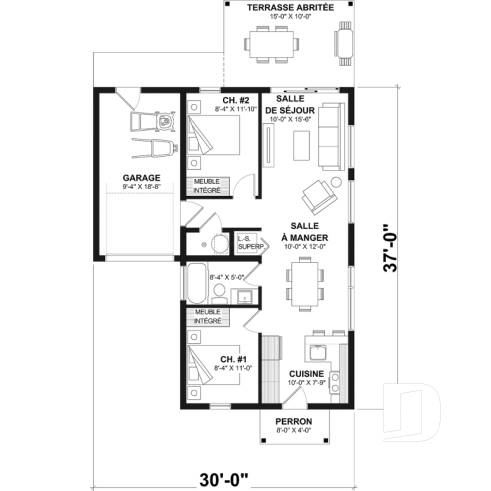
L'OPTION 2 propose un petit garage simple avec accès frontal. On y retrouve également une cuisine avec comptoir lunch, une salle à manger ouverte sur la salle de séjour, 2 chambres avec meuble intégré dans chacune, ainsi qu'une salle de bain et une laveuse/sécheuse superposées en garde-robe. La terrasse abritée arrière s'accède toujours par la salle de séjour. Les plafonds du garage, chambre à coucher #2, coin laveuse/sécheuse, rangement et salle de séjour sont à 17'8'' alors que tous les autres sont à 9' de hauteur, sauf pour la terrasse abritée qui est à 10'4''.

*Le plancher de base ainsi que les options 1 et 2 sont inclus dans le plan que vous recevrez. Vous pourrez bâtir le plancher qui vous convient. Si vous y aller initialement avec le plancher de base (avec garage pour VR), éventuellement et selon vos besoins futurs vous pourrez convertir votre garage en espace habitable comme proposé en option(s).
**L'estimation du coût de construction est pour le plancher de base uniquement. Pour ce plan #6984, elle inclut le balcon arrière couvert.

Particularité(s) du plan

Vue paronamique, Comptoir-lunch, Terrasse abritée, Plafond à plus de 8', Meuble(s) encastré(s), Aire ouverte, Garage latéral, Salle de lavage au rez-de-chaussée

Style(s) architectural du plan

Moderne

Plans similaires
Logo Dessins Drummond image Dessins Drummond
Le modèle Halte est protégé par la loi sur les droits d'auteur.

Les illustrations présentées peuvent différer du plan détaillé que vous recevrez, car ces derniers sont régulièrement ajustés afin de respecter les normes de construction en vigueur.

En savoir plus

Une question ou un commentaire sur ce plan ?

Information de contact

Votre demande

Ajouter vos images ou photos

Pour ajouter une ou des photos, veuillez cliquer ou glisser vos fichiers dans la zone ci-bas. Vous pouvez ajouter jusqu'à huit photos JPG ou JPEG. Cette opération n'est pas obligatoire.

Désolé, votre navigateur ne supporte pas l'envoi de fichier.