Vue arrière - MODÈLE DE BASE - Plan de maison style espagnol, 4 chambres, 4 salles de bain, 2 foyer, garage double, superbes terrasses - Hacienda

Vue arrière - MODÈLE DE BASE

Rez-de-chaussée - Plan de maison style espagnol, 4 chambres, 4 salles de bain, 2 foyer, garage double, superbes terrasses - Hacienda

Rez-de-chaussée

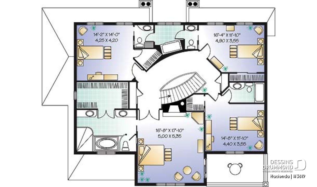
Étage - Plan de maison style espagnol, 4 chambres, 4 salles de bain, 2 foyer, garage double, superbes terrasses - Hacienda

Étage

Élévation avant - Hacienda

Élévation avant

Hacienda Plan de maison 3819

Plan de maison style espagnol, 4 chambres, 4 salles de bain, 2 foyer, garage double, superbes terrasses

À partir de

2200$

Fiche technique sommaire Plan #3819
Estimation ($) 999,873$
Surface habitable 3251 pi² Chambre 4
Salle de Bain 3 Salle d'eau 2
Fondation incluse Sous-sol aménageable + sortie extérieure (Rez-de-jardin) Garage 2 voitures
Largeur 54'0" Profondeur 43'0"

Besoin d’aide ?

Nos experts vous guident dans votre projet grâce à plus de 30 bureaux au Québec.

Joignez-nous

Consultez notre guide utilisateur

Un outil conçu pour vous simplifier la vie.

Ouvrir le guide

Un accompagnement sur mesure

De la modification de plans au design d’intérieur, nous vous guidons à chaque étape.

Découvrir nos services

Détails supplémentaires

Estimation

Spécifications générales

Surface aménagée totale
3251 pi²
Rez-de-chaussée
1536 pi²
Étage
1715 pi²
Largeur
54'0"
Profondeur
43'0"
Hauteur dessus fondations au faite
31'0"
Murs extérieurs
2 X 6
Murs extérieurs
2 X 6
Sous-sol aménageable + sortie extérieure (Rez-de-jardin)
Autres fondations disponibles (des frais peuvent s'appliquer)
Dalle flottante, Vide sanitaire, Dalle monolithique
Code Entrepreneur
I

Spécifications sur les pièces

Chambre(s)
4
Salle(s) de bain complète(s)
3
Demi Salle(s) de Bain
2
Type de garage
2 voitures (473 pi²)
Superficie balcon et/ou perron abrité
603 pi²

Rez-de-chaussée

Pièces
Dimensions
Plafond
Demie salle de bain ou coin toilette
2'8" x 6'4"
~ 9'0"
Cuisine
13'2" x 13'4"
~ 9'0"
Dinette
15'0" x 7'0"
~ 9'0"
Salle à manger
16'8" x 13'0"
~ 9'0"
Salle de séjour
16'8" x 17'4"
~ 9'0"
Bureau à domicile
14'8" x 11'0"
~ 9'0"
Entrée ou vestibule
8'0" x 5'6"
~ 9'0"
Salle utilitaire (buanderie +)
6'8" x 8'0"
~ 9'0"
Garage
22'0" x 20'0"
~ 10'8"
Perron
8'8" x 3'8"
N/D
Perron
48'0" x 12'0"
N/D

Étage

Pièces
Dimensions
Plafond
Salle de bain complète
15'8" x 6'2"
~ 8'0"
Suite des maîtres
16'8" x 17'10"
~ 8'0"
Chambre à coucher
14'0" x 14'0"
~ 8'0"
Chambre à coucher
16'8" x 11'10"
~ 8'0"
Chambre à coucher
14'8" x 11'10"
~ 8'0"
Lingerie
6'8" x 1'6"
~ 8'0"
Lingerie
4'8" x 1'8"
~ 8'0"
Balcon
13'10" x 6'10"
N/D

Plan de maison espagnole de 4 chambres et 4 salles de bain, avec garage double

Conçu à partir du modèle no.2819 de Dessins Drummond et afin de lui donner plus d’envergure, ce modèle aux allures exotiques suggère un extérieur très distinctif avec son garage double, ses terrasses arrière remarquables, sa volumétrie et sa mouluration peu communes.

À l’intérieur, au rez-de-chaussée avec plafond à 9 pieds, ça se traduit par une entrée principale tout en confort et pour laquelle un escalier balancé fait office de trophée ainsi que par une salle à manger très confortable avec fenêtre en arc, une cuisine avec îlot central, garde-manger de type « walk-in », fenêtrage abondant et espace table en guise de dînette, sans oublier une salle de séjour avec foyer et un bien bel espace bureau attenant et donnant aussi sur l’arrière.

À l’étage, cette distinction se constate par le biais de quatre chambres aux formats agrandis et par la présence de trois salles de bain dont une propre à la chambre des maîtres. Cette dernière, à l’instar de celle du modèle no.2819, suggère aussi un accès à une terrasse privée et une garde-robe de type « walk-in » mais encore plus grande pour une maison répondant parfaitement aux critères de base visant à donner encore plus de confort au modèle initial.

À vous de juger !

Éléments distinctifs

Terrasse arrière fort appréciable. Espaces intérieurs tous réellement confortables. Plafond à 9' au rez-de-chaussée. Cuisine avec grand garde-manger, îlot central et bel espace dînette attenant. Fenestration abondante sur l'arrière autant au sous-sol aménageable qu'aux autres planchers. Espace bureau remarquable. Suite chambre des maîtres avec foyer, grande salle de bain, grande garde-robe et accès à un balcon à la fois abrité et privé.

Particularité(s) du plan

Foyer, Salle de lavage au rez-de-chaussée, Bureau / Salle étude, Suite des maîtres à l'étage, Suite d'invités, Garde-manger, Ilôt, Plafond à plus de 8', Terrasse abritée, Dinette / Coin déjeuner, Balcon à l'étage, Salle de bain communicante

Style(s) architectural du plan

Méditerranéen, Vacances, bordure de lac, Floride, Manoirs et châteaux, Chalet

Plans similaires
Logo Dessins Drummond image Dessins Drummond
Le modèle Hacienda est protégé par la loi sur les droits d'auteur.

Les illustrations présentées peuvent différer du plan détaillé que vous recevrez, car ces derniers sont régulièrement ajustés afin de respecter les normes de construction en vigueur.

En savoir plus

Une question ou un commentaire sur ce plan ?

Information de contact

Votre demande

Ajouter vos images ou photos

Pour ajouter une ou des photos, veuillez cliquer ou glisser vos fichiers dans la zone ci-bas. Vous pouvez ajouter jusqu'à huit photos JPG ou JPEG. Cette opération n'est pas obligatoire.

Désolé, votre navigateur ne supporte pas l'envoi de fichier.