Vue avant - MODÈLE DE BASE - Grand walk-in à la ch. des maîtres, foyer au salon, espace ouvert  - Foville

Vue avant - MODÈLE DE BASE

Rez-de-chaussée - Grand walk-in à la ch. des maîtres, foyer au salon, espace ouvert  - Foville

Rez-de-chaussée

Étage - Grand walk-in à la ch. des maîtres, foyer au salon, espace ouvert  - Foville

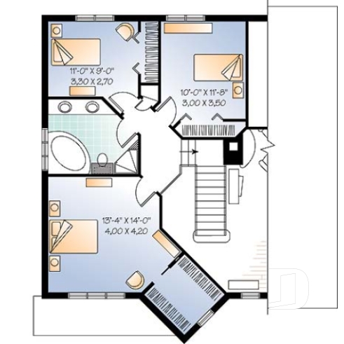
Étage

Élévation arrière - Foville

Élévation arrière

Foville Plan de maison 4648

Grand walk-in à la ch. des maîtres, foyer au salon, espace ouvert

À partir de

1600$

Fiche technique sommaire Plan #4648
Estimation ($) 419,943$
Surface habitable 1670 pi² Chambre 3
Salle de Bain 1 Salle d'eau 1
Fondation incluse Sous-sol aménageable Garage 1 voiture
Largeur 34'8" Profondeur 39'4"

Besoin d’aide ?

Nos experts vous guident dans votre projet grâce à plus de 30 bureaux au Québec.

Joignez-nous

Consultez notre guide utilisateur

Un outil conçu pour vous simplifier la vie.

Ouvrir le guide

Un accompagnement sur mesure

De la modification de plans au design d’intérieur, nous vous guidons à chaque étape.

Découvrir nos services

Détails supplémentaires

Estimation

Spécifications générales

Surface aménagée totale
1670 pi²
Rez-de-chaussée
935 pi²
Étage
735 pi²
Largeur
34'8"
Profondeur
39'4"
Hauteur dessus fondations au faite
26'8"
Murs extérieurs
2 X 6
Murs extérieurs
2 X 6
Sous-sol aménageable
Autres fondations disponibles (des frais peuvent s'appliquer)
Dalle flottante, Vide sanitaire, Dalle monolithique
Code Entrepreneur
D

Spécifications sur les pièces

Chambre(s)
3
Salle(s) de bain complète(s)
1
Demi Salle(s) de Bain
1
Type de garage
1 voiture (316 pi²)
Superficie balcon et/ou perron abrité
82 pi²

Rez-de-chaussée

Pièces
Dimensions
Plafond
Demie salle de bain ou coin toilette
2'8" x 7'2"
~ 8'0"
Cuisine
12'4" x 12'8"
~ 8'0"
Salle à manger
12'0" x 12'8"
~ 8'0"
Salle de séjour
12'0" x 20'0"
~ 17'4"
Entrée ou vestibule
7'2" x 3'6"
~ 8'0"
Salle utilitaire (buanderie +)
8'8" x 5'0"
~ 8'0"
Garage
13'0" x 22'8"
~ 9'8"
Garde-robe
3'4" x 2'0"
~ 8'0"
Perron
4'0" x 13'2"
N/D
Patio
8'0" x 5'0"
N/D
Perron
7'6" x 4'0"
N/D

Étage

Pièces
Dimensions
Plafond
Salle de bain complète
8'10" x 11'0"
~ 8'0"
Chambre à coucher
13'4" x 14'0"
~ 8'0"
Chambre à coucher
11'0" x 9'0"
~ 8'0"
Chambre à coucher
10'0" x 11'9"
~ 8'0"
Lingerie
2'0" x 1'8"
~ 8'0"

Maison original avec beau coin lecture face au foyer!

.

Éléments distinctifs

Rangements intégrés, fenestration abondante.

Particularité(s) du plan

Mezzanine, Ilôt, Foyer, Salle de lavage au rez-de-chaussée, Walk-in ch. maîtres, Bain et douche séparés, Lavabo double

Style(s) architectural du plan

Moderne, Traditionnelle

Plans similaires
Logo Dessins Drummond image Dessins Drummond
Le modèle Foville est protégé par la loi sur les droits d'auteur.

Les illustrations présentées peuvent différer du plan détaillé que vous recevrez, car ces derniers sont régulièrement ajustés afin de respecter les normes de construction en vigueur.

En savoir plus

Une question ou un commentaire sur ce plan ?

Information de contact

Votre demande

Ajouter vos images ou photos

Pour ajouter une ou des photos, veuillez cliquer ou glisser vos fichiers dans la zone ci-bas. Vous pouvez ajouter jusqu'à huit photos JPG ou JPEG. Cette opération n'est pas obligatoire.

Désolé, votre navigateur ne supporte pas l'envoi de fichier.