Vue avant - MODÈLE DE BASE - Plan de maison champêtre sur dalle, plain-pied de 3 chambres, abri moustiquaire - Country Cottage

Vue avant - MODÈLE DE BASE

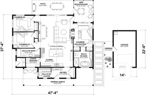
Rez-de-chaussée - Plan de maison champêtre sur dalle, plain-pied de 3 chambres, abri moustiquaire - Country Cottage

Rez-de-chaussée

Vue avant - MODÈLE DE BASE - Country Cottage

Vue avant - MODÈLE DE BASE

Vue avant - MODÈLE DE BASE - Country Cottage

Vue avant - MODÈLE DE BASE

Vue arrière - MODÈLE DE BASE - Country Cottage

Vue arrière - MODÈLE DE BASE

Version couleur no. 1 - Vue avant - Country Cottage

Version couleur no. 1 - Vue avant

Version couleur no. 2 - Vue avant - Country Cottage

Version couleur no. 2 - Vue avant

Country Cottage Plan de maison 6116

Plan de maison champêtre sur dalle, plain-pied de 3 chambres, abri moustiquaire

À partir de

1600$

Fiche technique sommaire Plan #6116
Estimation ($) 465,670$
Surface habitable 1538 pi² Chambre 3
Salle de Bain 2 Salle d'eau -
Fondation incluse Dalle flottante Garage 1 voiture
Largeur 49'4" Profondeur 37'4"

Besoin d’aide ?

Nos experts vous guident dans votre projet grâce à plus de 30 bureaux au Québec.

Joignez-nous

Consultez notre guide utilisateur

Un outil conçu pour vous simplifier la vie.

Ouvrir le guide

Un accompagnement sur mesure

De la modification de plans au design d’intérieur, nous vous guidons à chaque étape.

Découvrir nos services

Photos du plan Country Cottage

Les photos de cette maison peuvent différer du plan d'origine, duquel elles proviennent. Pour toute modification, veuillez contacter l’un de nos 30 bureaux.

Détails supplémentaires

Estimation

Spécifications générales

Surface aménagée totale
1538 pi²
Rez-de-chaussée
1538 pi²
Largeur
49'4"
Profondeur
37'4"
Hauteur dessus fondations au faite
24'6"
Murs extérieurs
2 X 6
Murs extérieurs
2 X 6
Autres fondations disponibles (des frais peuvent s'appliquer)
Vide sanitaire, Dalle monolithique
Code Entrepreneur
D

Spécifications sur les pièces

Chambre(s)
3
Salle(s) de bain complète(s)
2
Demi Salle(s) de Bain
-
Type de garage
1 voiture (308 pi²)
Superficie balcon et/ou perron abrité
164 pi²

Rez-de-chaussée

Pièces
Dimensions
Plafond
Abri moustiquaire
10'10" x 12'4"
~ 9'0"
Patio
24'0" x 8'6"
N/D
Perron abrité
41'0" x 4'0"
~ 9'0"
Entrée ou vestibule
11'4" x 6'0"
~ 9'0"
Garde-robe
2'0" x 6'0"
~ 9'0"
Salle de lavage
7'2" x 5'10"
~ 9'0"
Cuisine
18'10" x 10'6"
~ 20'0"
Garde-manger
8'0" x 5'4"
~ 9'0"
Îlot
8'0" x 4'0"
N/D
Pièce de mécanique
5'0" x 5'2"
~ 9'0"
Salle de bain
13'6" x 5'0"
~ 9'0"
Lingerie
3'2" x 1'4"
N/D
Chambre à coucher
12'0" x 9'2"
~ 9'0"
Garde-robe
2'0" x 4'2"
~ 9'0"
Chambre à coucher
12'0" x 9'2"
~ 9'0"
Garde-manger
2'0" x 4'8"
~ 9'0"
Salle de séjour/salle à manger
20'0" x 18'8"
~ 20'0"
Suite des maîtres
11'0" x 13'6"
~ 9'0"
Garde-robe
3'8" x 2'0"
~ 9'0"
Garde-robe
3'8" x 2'0"
~ 9'0"
Salle de bain complète
11'0" x 9'0"
~ 9'0"
Lingerie
1'0" x 1'2"
N/D
Douche
3'0" x 5'0"
N/D
Rangement
2'0" x 1'10"
~ 9'0"
Garage
14'0" x 22'0"
~ 9'0"

Plan de plain-pied Farmhouse avec grande galerie avant abritée et superbe suite parentale!

.

Éléments distinctifs

Plan de maison champêtre, de type plain-pied, avec grande galerie avant abritée.
Plancher prévu en fonction de ne pas avoir de sous-sol (mais une dalle flottante).
Entrée avant inclut une grande garde-robe et un banc.
Salle de lavage près de l'entrée avant.
Cuisine avec garde-manger et îlot.
Pour maximiser l'espace intérieure, le secteur salle à manger prévoit une table avec banquette intégrée.
Le foyer est ouvert sur le salon et la suite des parents.
La suite des parents a un accès à l'abri moustiquaire à l'arrière de la maison. De plus, elle comporte une salle de bain privée avec bain et douche séparés ainsi que 2 lavabos.
Les deux chambres secondaires se partagent un salle de bain.
La patio arrière n'est pas couvert mais il est attenant à l'abri moustiquaire.
L'accès à la pièce mécanique se fait par l'extérieur de la maison.
*Le garage détaché est inclus dans le plan que vous recevrez. Il s'agit du plan SIMSBURY (#6988) de notre collection. Cependant le coût approx. de construction du garage n'est pas inclus dans le coût de construction du plan 6116. Pour avoir le coût approx. de construction de ce garage, consulter le plan #6988.

Particularité(s) du plan

Abri moustiquaire, Aire ouverte, Banquette, Comptoir-lunch, Foyer, Galerie 2-3 côtés, Garde-manger, Ilôt, Plafond cathédrale, Plafond à plus de 8', Bain et douche séparés, Lavabo double, Salle de lavage au rez-de-chaussée

Style(s) architectural du plan

Farmhouse, Américain, Traditionnelle, Champêtre, Vacances, bordure de lac

beneva
beneva

Offrir la meilleure expérience d’assurance au Canada grâce à notre simplicité inégalée.

Oceania
Oceania
Bain Chilko

Depuis notre fondation en 1995, Bains Oceania est engagé à offrir à ses clients une expérience unique et raffinée dans leur environnement spa résidentiel. Grâce à notre savoir-faire et à notre passion pour l’innovation, nous fabriquons ici, des produits de grande qualité, pour vous.

Boiseries Raymond
Boiseries Raymond
Porte 151

Chef de file dans le préassemblage de portes intérieures au Québec. Cette force nous permet de vous fournir une variété de modèles préassemblées selon vos spécifications et selon le volume de production requis.

Boiseries Raymond
Boiseries Raymond
Porte 151

Chef de file dans le préassemblage de portes intérieures au Québec. Cette force nous permet de vous fournir une variété de modèles préassemblées selon vos spécifications et selon le volume de production requis.

Boiseries Raymond
Boiseries Raymond
Porte 151

Chef de file dans le préassemblage de portes intérieures au Québec. Cette force nous permet de vous fournir une variété de modèles préassemblées selon vos spécifications et selon le volume de production requis.

Boiseries Raymond
Boiseries Raymond
Porte 151

Chef de file dans le préassemblage de portes intérieures au Québec. Cette force nous permet de vous fournir une variété de modèles préassemblées selon vos spécifications et selon le volume de production requis.

Plans similaires
Logo Dessins Drummond image Dessins Drummond
Le modèle Country Cottage est protégé par la loi sur les droits d'auteur.

Les illustrations présentées peuvent différer du plan détaillé que vous recevrez, car ces derniers sont régulièrement ajustés afin de respecter les normes de construction en vigueur.

En savoir plus

Une question ou un commentaire sur ce plan ?

Information de contact

Votre demande

Ajouter vos images ou photos

Pour ajouter une ou des photos, veuillez cliquer ou glisser vos fichiers dans la zone ci-bas. Vous pouvez ajouter jusqu'à huit photos JPG ou JPEG. Cette opération n'est pas obligatoire.

Désolé, votre navigateur ne supporte pas l'envoi de fichier.