Vue avant - MODÈLE DE BASE - Plan de plain-pied moderne rustique économique, 2 chambres, espace famille ouvert, grande douche, vestibule - Clarendon

Vue avant - MODÈLE DE BASE

Rez-de-chaussée - Plan de plain-pied moderne rustique économique, 2 chambres, espace famille ouvert, grande douche, vestibule - Clarendon

Rez-de-chaussée

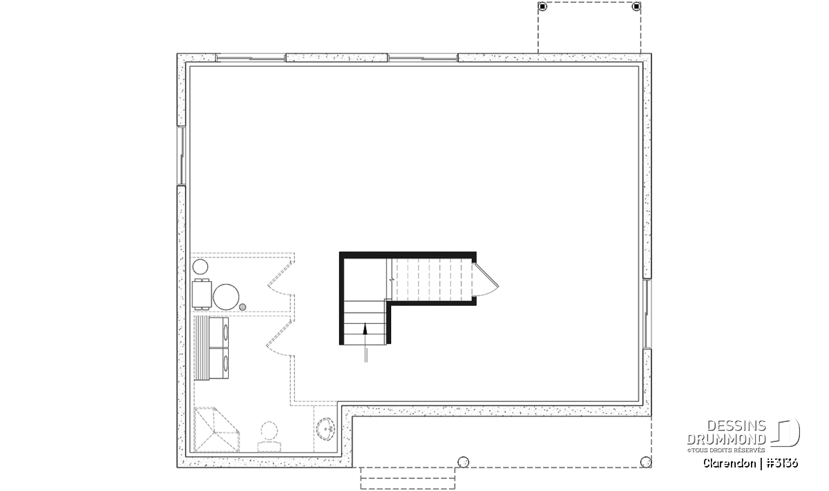
Sous-sol - Plan de plain-pied moderne rustique économique, 2 chambres, espace famille ouvert, grande douche, vestibule - Clarendon

Sous-sol

Vue avant - MODÈLE DE BASE - Clarendon

Vue avant - MODÈLE DE BASE

Vue arrière - MODÈLE DE BASE - Clarendon

Vue arrière - MODÈLE DE BASE

Version couleur no. 1 - Vue avant - Clarendon

Version couleur no. 1 - Vue avant

Clarendon Plan de maison 3136

Plan de plain-pied moderne rustique économique, 2 chambres, espace famille ouvert, grande douche, vestibule

À partir de

1380$

Fiche technique sommaire Plan #3136
Estimation ($) 270,723$
Surface habitable 1103 pi² Chambre 2
Salle de Bain 1 Salle d'eau -
Fondation incluse Sous-sol aménageable Garage -
Largeur 37'0" Profondeur 32'4"

Besoin d’aide ?

Nos experts vous guident dans votre projet grâce à plus de 30 bureaux au Québec.

Joignez-nous

Consultez notre guide utilisateur

Un outil conçu pour vous simplifier la vie.

Ouvrir le guide

Un accompagnement sur mesure

De la modification de plans au design d’intérieur, nous vous guidons à chaque étape.

Découvrir nos services

Détails supplémentaires

Estimation

Spécifications générales

Surface aménagée totale
1103 pi²
Rez-de-chaussée
1103 pi²
Sous-sol
1103 pi²
Largeur
37'0"
Profondeur
32'4"
Hauteur dessus fondations au faite
17'1"
Murs extérieurs
2 X 6
Murs extérieurs
2 X 6
Sous-sol aménageable
Autres fondations disponibles (des frais peuvent s'appliquer)
Dalle flottante, Vide sanitaire, Dalle monolithique
Code Entrepreneur
B

Spécifications sur les pièces

Chambre(s)
2
Salle(s) de bain complète(s)
1
Demi Salle(s) de Bain
-
Type de garage
-
Superficie balcon et/ou perron abrité
93 pi²

Rez-de-chaussée

Pièces
Dimensions
Plafond
Entrée ou vestibule
9'8" x 5'2"
~ 8'0"
Garde-robe
2'2" x 5'2"
~ 8'0"
Salle de séjour
13'4" x 13'4"
~ 8'0"
Salle à manger
9'0" x 13'4"
~ 8'0"
Cuisine/dinette
8'4" x 11'6"
~ 8'0"
Garde-manger
1'4" x 2'0"
N/D
Chambre à coucher
12'0" x 13'0"
~ 8'0"
Garde-robe
8'0" x 2'0"
~ 8'0"
Chambre à coucher
10'0" x 12'8"
~ 8'0"
Garde-robe
6'0" x 2'0"
~ 8'0"
Salle de bain
7'6" x 11'2"
~ 8'0"
Douche
4'3" x 2'10"
N/D
Lingerie
1'0" x 2'6"
N/D
Lingerie
1'8" x 2'0"
~ 8'0"
Perron
23'4" x 4'0"
N/D
Patio
8'0" x 4'0"
N/D

Sous-sol

Plan de plein pied traditionnel à 2 chambres et look rustique

La grande galerie couverte offre un cachet spécial à ce model et sera surement uns place favorite pour passer le temps durant les mois chauds.

Au grand vestibule on trouve une grand garde robe ainsi que de l'espace pour un banc de rangement qui est l'endroit parfait pour s'assoir et enlever les bottes d'hiver!

Le secteur d'activités entièrement ouvert offre un abondance de lumière naturel à travers la fenestration abondante du salon en passant par l'espace salle à manger avec son accès à la cour arrière par portes patio. Dans la cuisine de forme en "L" il y a un grand ilot lunch qui est parfait pour les repas rapides.

Deux chambres à coucher de bon format ont de grands garde robes et partagent une salle de bain complète avec douche indépendante d'environ 3' x 4'

Le sous-sol aménageable peut être fini selon vos besoins et notre équipe en agence le plus près de vous se fera plaisir de vous renseigner au sujet de l'aménagement de chambres à coucher additionnels ou un cinéma maison/salle multimédia.

Éléments distinctifs

Construction de style champêtre rustique.
Grand balcon abrité et vestibule avec garde-robe à l'entrée avant.
Secteur activités entièrement ouvert.
Cuisine avec grand îlot lunch et attenante à la salle à dîner de bon format.
Porte pation à la salle à manger.
Salle de bain avec douche indépendante d'environ 3pi x 4pi et une grande vanité.
Buanderie prévue au sous-sol, et ce dernier est aménageable pour plus d'espace au besoin.

Particularité(s) du plan

Vestiaire, Ilôt, Aire ouverte, Bain et douche séparés

Style(s) architectural du plan

Champêtre, Traditionnelle, Américain, Ranch, Transitionnel

Plans similaires
Logo Dessins Drummond image Dessins Drummond
Le modèle Clarendon est protégé par la loi sur les droits d'auteur.

Les illustrations présentées peuvent différer du plan détaillé que vous recevrez, car ces derniers sont régulièrement ajustés afin de respecter les normes de construction en vigueur.

En savoir plus

Une question ou un commentaire sur ce plan ?

Information de contact

Votre demande

Ajouter vos images ou photos

Pour ajouter une ou des photos, veuillez cliquer ou glisser vos fichiers dans la zone ci-bas. Vous pouvez ajouter jusqu'à huit photos JPG ou JPEG. Cette opération n'est pas obligatoire.

Désolé, votre navigateur ne supporte pas l'envoi de fichier.