Vue avant - MODÈLE DE BASE - 2170 Plan de plain-pied abordable, 2 à 4 chambres, rangement à la cuisine, sous-sol aménagé optionnel ($) - Brière

Vue avant - MODÈLE DE BASE

Rez-de-chaussée - 2170 Plan de plain-pied abordable, 2 à 4 chambres, rangement à la cuisine, sous-sol aménagé optionnel ($) - Brière

Rez-de-chaussée

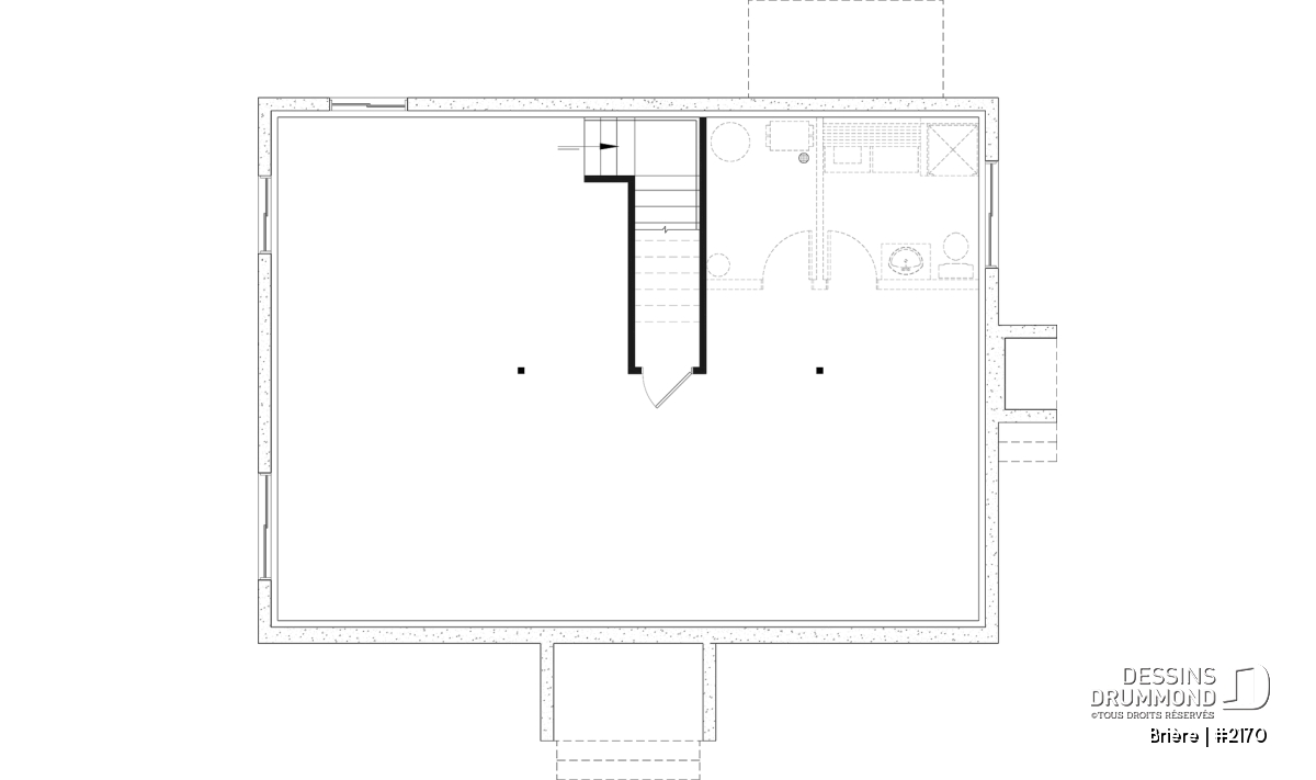
Sous-sol aménageable - 2170 Plan de plain-pied abordable, 2 à 4 chambres, rangement à la cuisine, sous-sol aménagé optionnel ($) - Brière

Sous-sol aménageable

Sous-sol aménagé (Optionel $) - 2170 Plan de plain-pied abordable, 2 à 4 chambres, rangement à la cuisine, sous-sol aménagé optionnel ($) - Brière

Sous-sol aménagé (Optionel $)

Élévation arrière - Brière

Élévation arrière

Brière Plan de maison 2170

2170 Plan de plain-pied abordable, 2 à 4 chambres, rangement à la cuisine, sous-sol aménagé optionnel ($)

À partir de

1380$

Fiche technique sommaire Plan #2170
Estimation ($) 287,335$ (Sous-sol non-fini) | 323,030$ (Sous-sol fini)
Surface habitable 1064 pi² Chambre 2, 3, 4
Salle de Bain 2 Salle d'eau -
Fondation incluse Sous-sol aménageable Garage -
Largeur 38'0" Profondeur 28'0"

Besoin d’aide ?

Nos experts vous guident dans votre projet grâce à plus de 30 bureaux au Québec.

Joignez-nous

Consultez notre guide utilisateur

Un outil conçu pour vous simplifier la vie.

Ouvrir le guide

Un accompagnement sur mesure

De la modification de plans au design d’intérieur, nous vous guidons à chaque étape.

Découvrir nos services

Les photos de cette maison peuvent différer du plan d'origine, duquel elles proviennent. Pour toute modification, veuillez contacter l’un de nos 30 bureaux.

Détails supplémentaires

Estimation

Spécifications générales

Surface aménagée totale
1064 pi²
Rez-de-chaussée
1064 pi²
Sous-sol aménageable
1064 pi²
Sous-sol aménagé (Optionel $)
1064 pi²
Largeur
38'0"
Profondeur
28'0"
Hauteur dessus fondations au faite
16'1"
Murs extérieurs
2 X 6
Murs extérieurs
2 X 6
Sous-sol aménageable
Autres fondations disponibles (des frais peuvent s'appliquer)
Sous-sol aménagé, Dalle flottante, Vide sanitaire, Dalle monolithique
Code Entrepreneur
B

Spécifications sur les pièces

Chambre(s)
2, 3, 4
Salle(s) de bain complète(s)
2
Demi Salle(s) de Bain
-
Type de garage
-
Superficie balcon et/ou perron abrité
60 pi²

Rez-de-chaussée

Pièces
Dimensions
Plafond
Salle de bain complète
7'0" x 12'0"
~ 8'0"
Douche
4'6" x 2'8"
N/D
Lingerie
1'8" x 1'4"
N/D
Cuisine
14'4" x 11'0"
~ 8'0"
Îlot
7'6" x 3'4"
N/D
Salle de séjour
12'5" x 15'4"
~ 8'0"
Chambre à coucher
11'0" x 12'0"
~ 8'0"
Walk-in
7'4" x 3'8"
~ 8'0"
Chambre à coucher
12'0" x 10'0"
~ 8'0"
Patio
10'0" x 5'0"
N/D
Perron
9'0" x 5'0"
N/D
Perron
3'0" x 5'0"
N/D
Entrée ou vestibule
9'0" x 4'0"
~ 8'0"
Garde-robe
4'8" x 2'0"
~ 8'0"

Sous-sol aménagé (Optionel $)

Pièces
Dimensions
Plafond
Pièce de mécanique
8'10" x 12'8"
~ 8'0"
Salle de bain/buanderie
11'8" x 8'0"
~ 8'0"
Chambre à coucher
12'4" x 12'8"
~ 8'0"
Garde-robe
2'0" x 6'0"
~ 8'0"
Lingerie
2'0" x 2'0"
~ 8'0"
Salle familiale
18'0" x 12'10"
~ 8'0"
Chambre à coucher
12'8" x 12'10"
~ 8'0"
Garde-robe
2'0" x 7'6"
~ 8'0"

Sous-sol aménageable

Un mélange de charme rural et de commodités contemporaines : la maison de plain-pied idéale pour votre famille.

Explorez ce charmant rez-de-chaussée au style ferme champêtre qui a été imaginé pour correspondre aux attentes d'une jeune famille ou d'un couple cherchant à combiner confort et qualité de vie tout en privilégiant l'esthétique rurale élégante et les équipements modernes à un prix abordable.

Lorsque vous franchirez le seuil de cet endroit inspirant et accueillant dès le début de votre visite ; vous serez immédiatement charmé par son ambiance chaleureuse et lumineuse. Le cœur de la maison se révélera à vous dans toute sa splendeur grâce à son agencement à aire ouverte où le salon harmonise avec la salle à manger et la cuisine dans une parfaite harmonie. Cet espace polyvalent est idéal pour les réceptions animées ou simplement pour partager des moments paisibles en famille ; il encourage les interactions et favorise une atmosphère décontractée propice au bien-être.

La cuisine occupe une place centrale dans la maison avec un espace de rangement généreux qui convient parfaitement à la vie quotidienne. Son agencement pratique facilite la préparation des repas et le maintien de l'ordre tout en restant lié aux autres espaces de vie.

La salle à manger est astucieusement placée près du salon et de la cuisine pour former un espace central agréable favorisant les repas conviviaux et les soirées animées. Le salon est lumineux grâce à la lumière naturelle et constitue un endroit paisible pour se relaxer.

Le rez-de-chaussée dispose également de deux chambres bien agencées qui conviennent parfaitement aux enfants ou à l'installation d'un bureau à domicile. Une salle de bains complète et élégante offre deux lavabos ainsi qu'une combinaison de douche et de baignoire séparées – un confort indispensable pour les familles dynamiques.

Ce rez-de chaussée pourrait également être enrichi d'un *sous-sol aménagé en option ($) permettant d'offrir un espace supplémentaire considérable : deux chambres additionnelles, une deuxième salle de douche, une salle de lavage, un espace familial et une grande zone de rangement.

Proposez-vous un espace de vie chaleureux et fonctionnel qui résiste à l'épreuve du temps ; un endroit où chaque aspect est minutieusement pensé pour rendre la routine plus facile et pour construire un nid familial authentique.

---
*Si vous souhaitez acheter le plan du sous-sol aménagé, veuillez sélectionner cette option dans le panier d'achat, dans la section "Sélectionner votre fondation". Si vous ne sélectionnez pas cette option, vous recevrez le sous-sol non fini, sans frais additionnel.

Éléments distinctifs

Plain-pied de style farmhouse champêtre, idéal pour une famille de 2 à 3 enfants, à prix abordable.
Offrant 2 chambres au rez-de-chaussée.
Salle de bain complète avec deux lavabos, bain et douche séparés.
Cuisine fonctionnelle avec grand espace de rangement.
Salon à aire ouverte donnant sur la cuisine.
Salle à manger centrale, bien positionnée entre le salon et la cuisine.
---
Sous-sol aménagé en option ($) :
Ajoutant 2 chambres supplémentaires, une salle de bain, une salle de lavage, une salle familiale, une salle mécanique ainsi qu’un espace de rangement.
---
*Si vous souhaitez acheter le plan du sous-sol aménagé, veuillez sélectionner cette option dans le panier d'achat, dans la section "Sélectionner votre fondation". Si vous ne sélectionnez pas cette option, vous recevrez le sous-sol non fini, sans frais additionnel.

Particularité(s) du plan

Ilôt, Aire ouverte, Bain et douche séparés, Lavabo double

Style(s) architectural du plan

Ranch, Traditionnelle, Européen, Farmhouse, Farmhouse moderne, Champêtre

Willki
Willki

Les panneaux de pierre vissés Willki transforment vos projets en un clin d'œil. Faciles à installer, durables et écoresponsables, ils offrent le look naturel de la pierre pour une fraction du coût. *Peut nécessiter une modification au plan

Oceania
Oceania
Bain Rupert

Depuis notre fondation en 1995, Bains Oceania est engagé à offrir à ses clients une expérience unique et raffinée dans leur environnement spa résidentiel. Grâce à notre savoir-faire et à notre passion pour l’innovation, nous fabriquons ici, des produits de grande qualité, pour vous.

Plans similaires
Logo Dessins Drummond image Dessins Drummond
Le modèle Brière est protégé par la loi sur les droits d'auteur.

Les illustrations présentées peuvent différer du plan détaillé que vous recevrez, car ces derniers sont régulièrement ajustés afin de respecter les normes de construction en vigueur.

En savoir plus

Une question ou un commentaire sur ce plan ?

Information de contact

Votre demande

Ajouter vos images ou photos

Pour ajouter une ou des photos, veuillez cliquer ou glisser vos fichiers dans la zone ci-bas. Vous pouvez ajouter jusqu'à huit photos JPG ou JPEG. Cette opération n'est pas obligatoire.

Désolé, votre navigateur ne supporte pas l'envoi de fichier.