Vue avant - MODÈLE DE BASE - Plan de manoir style Européen, 3 chambres, plafond 12' au séjour, cuisine avec îlot, bureau, garage double - Whittier

Vue avant - MODÈLE DE BASE

Rez-de-chaussée - Plan de manoir style Européen, 3 chambres, plafond 12' au séjour, cuisine avec îlot, bureau, garage double - Whittier

Rez-de-chaussée

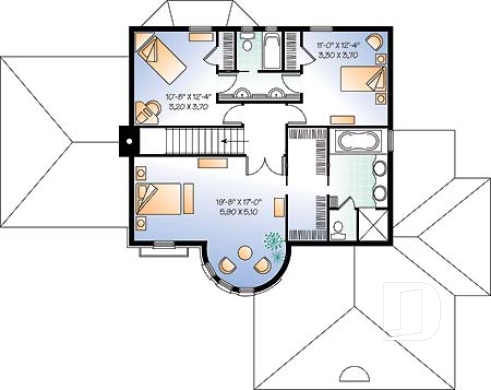
Étage - Plan de manoir style Européen, 3 chambres, plafond 12' au séjour, cuisine avec îlot, bureau, garage double - Whittier

Étage

Élévation arrière - Whittier

Élévation arrière

Whittier Plan de maison 3422

Plan de manoir style Européen, 3 chambres, plafond 12' au séjour, cuisine avec îlot, bureau, garage double

À partir de

1765$

Fiche technique sommaire Plan #3422
Estimation ($) 728,641$
Surface habitable 2338 pi² Chambre 3
Salle de Bain 2 Salle d'eau 1
Fondation incluse Sous-sol aménageable Garage 2 voitures
Largeur 60'8" Profondeur 48'0"

Besoin d’aide ?

Nos experts vous guident dans votre projet grâce à plus de 30 bureaux au Québec.

Joignez-nous

Consultez notre guide utilisateur

Un outil conçu pour vous simplifier la vie.

Ouvrir le guide

Un accompagnement sur mesure

De la modification de plans au design d’intérieur, nous vous guidons à chaque étape.

Découvrir nos services

Photos du plan Whittier

Les photos de cette maison peuvent différer du plan d'origine, duquel elles proviennent. Pour toute modification, veuillez contacter l’un de nos 30 bureaux.

Détails supplémentaires

Estimation

Spécifications générales

Surface aménagée totale
2338 pi²
Rez-de-chaussée
1293 pi²
Étage
1045 pi²
Largeur
60'8"
Profondeur
48'0"
Hauteur dessus fondations au faite
34'4"
Murs extérieurs
2 X 6
Murs extérieurs
2 X 6
Sous-sol aménageable
Autres fondations disponibles (des frais peuvent s'appliquer)
Dalle flottante, Vide sanitaire, Dalle monolithique
Code Entrepreneur
F

Spécifications sur les pièces

Chambre(s)
3
Salle(s) de bain complète(s)
2
Demi Salle(s) de Bain
1
Type de garage
2 voitures (578 pi²)
Superficie balcon et/ou perron abrité
47 pi²

Rez-de-chaussée

Pièces
Dimensions
Plafond
Demie salle de bain ou coin toilette
5'0" x 5'10"
~ 9'0"
Cuisine
14'10" x 14'4"
~ 9'0"
Salle à manger
17'4" x 14'4"
~ 9'0"
Salle de séjour
14'8" x 18'4"
~ 12'0"
Bureau à domicile
10'4" x 9'4"
~ 9'0"
Lingerie
1'2" x 3'4"
~ 9'0"
Entrée ou vestibule
7'4" x 5'4"
~ 9'0"
Salle utilitaire (buanderie +)
7'0" x 6'0"
~ 9'0"
Garage
23'8" x 23'0"
~ 10'0"
Perron
6'8" x 3'2"
N/D
Perron
6'8" x 4'0"
N/D
Garde-robe
3'0" x 3'8"
~ 9'0"

Étage

Pièces
Dimensions
Plafond
Salle de bain complète
10'6" x 9'0"
~ 8'0"
Suite des maîtres
19'8" x 17'0"
~ 8'0"
Chambre à coucher
10'8" x 12'4"
~ 8'0"
Chambre à coucher
11'0" x 12'4"
~ 8'0"

Cottage imposant d’esprit européen

Tout à fait dans le ton de ces maisons qui habillent depuis quelques années plusieurs quartiers résidentiels, gravitant autour des grandes villes du Québec, ce cottage demeure une valeur sûre avec ses lignes classiques.

À l’intérieur, on est d’abord accueilli dans un espace entrée original car ouvert partiellement sur une salle de séjour pittoresque, au plafond à douze pieds, partageant un foyer mitoyen avec un palier d’escalier assurant l’accès tant à cette entrée qu’à la salle à manger. Cette dernière, à l’arrière, se veut des plus confortables et bien éclairée avec une large fenêtre en baie. On remarque aussi, sur l’arrière, une cuisine attrayante avec un assez grand garde-manger, un îlot lunch central et une triple porte jardin. Attenant à celle-ci, on retrouve un coin toilette ainsi qu’une buanderie. La tourelle suggère pour sa part un espace bureau aussi original.

À l’étage, on constate d’entrée une maximisation de l’espace plancher avec l’absence de corridor. On peut donc apprécier une vaste chambre des maîtres dotée d’une garde-robe proportionnelle et d’une salle de bain privée fort bien organisée. Deux chambres secondaires de 11pi x 12pi chacune seront des plus appréciées tout comme la salle de bain fonctionnelle qu’elles se partagent.

Éléments distinctifs

Plafond à 9 pi. au rez-de-chaussée, plafond à 12pi à la salle familiale, bureau à domicile dans la tourelle, foyer monumental ouvert sur deux côtés tout comme l'escalier à sa base.
Suite chambre des maîtres remarquable avec beau coin lecture en tourelle.

Particularité(s) du plan

Foyer, Salle de lavage au rez-de-chaussée, Bureau / Salle étude, Ilôt, Garde-manger, Plafond à plus de 8', Plafond cathédrale, Garage latéral, Suite des maîtres à l'étage, Salle de bain communicante, Walk-in double ch. maîtres, Bain et douche séparés, Lavabo double

Style(s) architectural du plan

Européen, Manoirs et châteaux, Champêtre, Victorien

Plans similaires
Logo Dessins Drummond image Dessins Drummond
Le modèle Whittier est protégé par la loi sur les droits d'auteur.

Les illustrations présentées peuvent différer du plan détaillé que vous recevrez, car ces derniers sont régulièrement ajustés afin de respecter les normes de construction en vigueur.

En savoir plus

Une question ou un commentaire sur ce plan ?

Information de contact

Votre demande

Ajouter vos images ou photos

Pour ajouter une ou des photos, veuillez cliquer ou glisser vos fichiers dans la zone ci-bas. Vous pouvez ajouter jusqu'à huit photos JPG ou JPEG. Cette opération n'est pas obligatoire.

Désolé, votre navigateur ne supporte pas l'envoi de fichier.