Version couleur no. 2 - Vue avant - Plan maison terrain étroit, grand patio abrité, salle de bain privée, 2 walk-ins, îlot à la cuisine, cathédral - Salem

Version couleur no. 2 - Vue avant

Rez-de-chaussée - Plan maison terrain étroit, grand patio abrité, salle de bain privée, 2 walk-ins, îlot à la cuisine, cathédral - Salem

Rez-de-chaussée

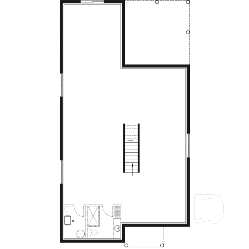
Sous-sol - Plan maison terrain étroit, grand patio abrité, salle de bain privée, 2 walk-ins, îlot à la cuisine, cathédral - Salem

Sous-sol

Vue avant - MODÈLE DE BASE - Salem

Vue avant - MODÈLE DE BASE

Élévation arrière - Salem

Élévation arrière

Version couleur no. 1 - Vue avant - Salem

Version couleur no. 1 - Vue avant

Version couleur no. 4 - Vue avant - Salem

Version couleur no. 4 - Vue avant

Version couleur no. 5 - Vue avant - Salem

Version couleur no. 5 - Vue avant

Salem Plan de maison 3293

Plan maison terrain étroit, grand patio abrité, salle de bain privée, 2 walk-ins, îlot à la cuisine, cathédral

À partir de

1600$

Fiche technique sommaire Plan #3293
Estimation ($) 392,336$
Surface habitable 1600 pi² Chambre 3
Salle de Bain 2 Salle d'eau -
Fondation incluse Sous-sol aménageable Garage -
Largeur 32'0" Profondeur 60'0"

Besoin d’aide ?

Nos experts vous guident dans votre projet grâce à plus de 30 bureaux au Québec.

Joignez-nous

Consultez notre guide utilisateur

Un outil conçu pour vous simplifier la vie.

Ouvrir le guide

Un accompagnement sur mesure

De la modification de plans au design d’intérieur, nous vous guidons à chaque étape.

Découvrir nos services

Détails supplémentaires

Estimation

Spécifications générales

Surface aménagée totale
1600 pi²
Rez-de-chaussée
1600 pi²
Sous-sol
1600 pi²
Largeur
32'0"
Profondeur
60'0"
Hauteur dessus fondations au faite
21'8"
Murs extérieurs
2 X 6
Murs extérieurs
2 X 6
Sous-sol aménageable
Autres fondations disponibles (des frais peuvent s'appliquer)
Dalle flottante, Vide sanitaire, Dalle monolithique
Code Entrepreneur
D

Spécifications sur les pièces

Chambre(s)
3
Salle(s) de bain complète(s)
2
Demi Salle(s) de Bain
-
Type de garage
-
Superficie balcon et/ou perron abrité
48 pi²

Sous-sol

Rez-de-chaussée

Pièces
Dimensions
Plafond
Chambre à coucher
14'8" x 11'0"
~ 8'0"
Walk-in
7'2" x 4'0"
~ 8'0"
Walk-in
7'2" x 4'0"
~ 8'0"
Salle de douche
9'4" x 8'1"
~ 8'0"
Chambre à coucher
12'4" x 10'0"
~ 8'0"
Garde-robe
2'0" x 6'8"
~ 8'0"
Chambre à coucher
11'0" x 10'0"
~ 8'0"
Garde-robe
5'6" x 2'0"
~ 8'0"
Salle de lavage
9'4" x 5'10"
~ 8'0"
Salle de bain complète
9'6" x 7'9"
~ 8'0"
Lingerie
1'2" x 2'9"
~ 8'0"
Salle de séjour
15'4" x 15'8"
~ 8'0"
Garde-robe
2'0" x 4'8"
~ 8'0"
Salle à manger
12'0" x 12'0"
~ 14'7"
Cuisine
15'4" x 11'0"
~ 8'0"
Garde-manger
1'8" x 8'0"
~ 8'0"
Terrasse abritée
16'0" x 16'0"
~ 8'0"
Perron abrité
9'8" x 5'2"
~ 8'0"

Plain pied pour terrain étroit proposant 3 chambres et une superbe terrasse abritée à l'arrière!

Ce plan de maison de plain-pied au style tendance moderne rustique, plan no. 3293 aussi nommé Salem, propose un format idéal pour les terrains étroits. De plus, avec ses 32 pieds de façade, il comporte beaucoup de commodités recherchées par les familles ou les gens à la recherche d’une maison avec espace pour bureau à domicile!

La portion droite de la maison est en plafond cathédrale ce qui donne une amplitude au salon, à la salle à manger ainsi qu’à la cuisine. Cette dernière comporte un grand îlot ainsi qu’une ouverture sur la cuisine et la salle à manger. Bien apprécier pour recevoir familles et amis! De plus la cuisine mène à la grande terrasse abritée de 256 pieds carrés, à l’arrière de la maison. Ce grand format de patio permet aisément l’aménagement d’une table, ainsi que d’un coin lecture.

La chambre des parents offre une pratique salle de bain privative, deux grandes garde-robes walk-in ainsi que des porte-patio menant à la terrasse abritée.

Les deux chambres secondaires sont de bon format et se partagent une salle de bain complète comprenant entre autre un bain et une grande douche séparés. Il serait facilement pensable de réaménager la chambre à l’avant de la maison, en bureau à domicile avec accès par le balcon.

La buanderie est pratique car localisée au rez-de-chaussée, près de la cuisine. Le sous-sol est à aménager selon vos besoins actuels ou futurs. Pour toutes améliorations souhaitées à cette maison, ajout de garage, aménagement du sous-sol ou autres, n’hésitez pas à nous contacter car nous pouvons aisément ajuster le plan à vos besoins par l’intermédiaire de nos bureaux régionaux.

Éléments distinctifs

Maison tendance nordique aux matériaux chaleureux.
Plafond cathédrale dans la portion salon, cuisine et salle à manger.
Grand îlot à la cuisine,
Chambre des parents avec salle de bain privée et 2 garde-robes de type walk-in.
Accès à la grande terrasse abritée par la chambre des parents, ainsi que par la cuisine.
Buanderie au rez-de-chaussée.
Grand sous-sol à aménager.

Particularité(s) du plan

Ilôt, Aire ouverte, Terrain étroit, Terrasse abritée, Salle de lavage au rez-de-chaussée, Walk-in double ch. maîtres, Suite des maîtres au rdc, Plafond cathédrale

Style(s) architectural du plan

Nordique, Rustique, Anglais, Transitionnel, Moderne rustique, Champêtre

Plans similaires
Logo Dessins Drummond image Dessins Drummond
Le modèle Salem est protégé par la loi sur les droits d'auteur.

Les illustrations présentées peuvent différer du plan détaillé que vous recevrez, car ces derniers sont régulièrement ajustés afin de respecter les normes de construction en vigueur.

En savoir plus

Une question ou un commentaire sur ce plan ?

Information de contact

Votre demande

Ajouter vos images ou photos

Pour ajouter une ou des photos, veuillez cliquer ou glisser vos fichiers dans la zone ci-bas. Vous pouvez ajouter jusqu'à huit photos JPG ou JPEG. Cette opération n'est pas obligatoire.

Désolé, votre navigateur ne supporte pas l'envoi de fichier.