Vue arrière - MODÈLE DE BASE - Plan de maison style chalet panoramique, 2 à 4 chambres selon finition du sous-sol, plafond cathédral, foyer - Rockspring 5

Vue arrière - MODÈLE DE BASE

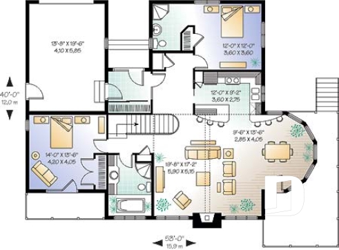
Rez-de-chaussée - Plan de maison style chalet panoramique, 2 à 4 chambres selon finition du sous-sol, plafond cathédral, foyer - Rockspring 5

Rez-de-chaussée

Sous-sol - Plan de maison style chalet panoramique, 2 à 4 chambres selon finition du sous-sol, plafond cathédral, foyer - Rockspring 5

Sous-sol

Élévation avant - Rockspring 5

Élévation avant

Rockspring 5 Plan de maison 6919

Plan de maison style chalet panoramique, 2 à 4 chambres selon finition du sous-sol, plafond cathédral, foyer

À partir de

2095$

Fiche technique sommaire Plan #6919
Estimation ($) - (Sous-sol non-fini) | 451,223$ (Sous-sol fini)
Surface habitable 2800 pi² Chambre 2, 3, 4
Salle de Bain 3 Salle d'eau -
Fondation incluse Sous-sol aménagé + sortie extérieure (Rez-de-jardin) Garage 1 voiture
Largeur 53'0" Profondeur 40'0"

Besoin d’aide ?

Nos experts vous guident dans votre projet grâce à plus de 30 bureaux au Québec.

Joignez-nous

Consultez notre guide utilisateur

Un outil conçu pour vous simplifier la vie.

Ouvrir le guide

Un accompagnement sur mesure

De la modification de plans au design d’intérieur, nous vous guidons à chaque étape.

Découvrir nos services

Détails supplémentaires

Estimation

Spécifications générales

Surface aménagée totale
2800 pi²
Rez-de-chaussée
1400 pi²
Sous-sol
1400 pi²
Largeur
53'0"
Profondeur
40'0"
Hauteur dessus fondations au faite
31'2"
Murs extérieurs
2 X 6
Murs extérieurs
2 X 6
Sous-sol aménagé + sortie extérieure (Rez-de-jardin)
Code Entrepreneur
H

Spécifications sur les pièces

Chambre(s)
2, 3, 4
Salle(s) de bain complète(s)
3
Demi Salle(s) de Bain
-
Type de garage
1 voiture (298 pi²)
Superficie balcon et/ou perron abrité
220 pi²

Rez-de-chaussée

Pièces
Dimensions
Plafond
Balcon
14'4" x 5'0"
N/D
Salle de bain complète
7'10" x 10'9"
~ 8'0"
Cuisine
12'0" x 9'2"
~ 8'0"
Salle à manger
9'6" x 13'6"
~ 8'0"
Salle de séjour
19'6" x 17'2"
~ 16'6"
Chambre à coucher
14'0" x 13'6"
~ 8'0"
Chambre à coucher
12'0" x 12'0"
~ 8'0"
Lingerie
2'0" x 2'8"
~ 8'0"
Entrée ou vestibule
7'10" x 5'6"
~ 8'0"
Garage
13'8" x 19'6"
~ 9'8"
Perron
7'6" x 3'0"
N/D
Rangement
1'8" x 0'11"
~ 8'0"
Perron
14'0" x 10'0"
N/D
Perron
4'0" x 14'10"
N/D

Sous-sol

Pièces
Dimensions
Plafond
Salle de bain complète
10'7" x 7'7"
~ 8'0"
Salle familiale
29'3" x 18'6"
~ 8'0"
Chambre à coucher
12'7" x 19'7"
~ 8'0"
Lingerie
1'8" x 1'10"
~ 8'0"
Salle utilitaire (buanderie +)
7'5" x 10'1"
~ 8'0"
Atelier/rangement
14'0" x 13'0"
~ 8'0"
Demie salle de bain ou coin toilette
6'3" x 4'3"
~ 8'0"

Plan de maison style ranch avec sous-sol en rez-de-jardin, 2 à 4 chambres selon finition du sous-sol!

.

Éléments distinctifs

Foyer au rez-de-chaussée et au sous-sol.
Véranda à l'arrière.
Galerie à l'avant.
Fenêtrage abondant.

Particularité(s) du plan

Foyer, Vue paronamique, Plafond cathédrale, Vestibule, Ilôt, Comptoir-lunch, Bain et douche séparés, Aire ouverte

Style(s) architectural du plan

Ranch, Champêtre, Vacances, bordure de lac, Chalet de ski, Américain, A-Frame, En montagne, Chalet

Plans similaires
Logo Dessins Drummond image Dessins Drummond
Le modèle Rockspring 5 est protégé par la loi sur les droits d'auteur.

Les illustrations présentées peuvent différer du plan détaillé que vous recevrez, car ces derniers sont régulièrement ajustés afin de respecter les normes de construction en vigueur.

En savoir plus

Une question ou un commentaire sur ce plan ?

Information de contact

Votre demande

Ajouter vos images ou photos

Pour ajouter une ou des photos, veuillez cliquer ou glisser vos fichiers dans la zone ci-bas. Vous pouvez ajouter jusqu'à huit photos JPG ou JPEG. Cette opération n'est pas obligatoire.

Désolé, votre navigateur ne supporte pas l'envoi de fichier.