Vue avant - MODÈLE DE BASE - Plan de maison jumelé à étage, 2 à 3 chambres, 2 salles de bain par unité, aire ouverte, îlot à la cuisine - Monticello

Vue avant - MODÈLE DE BASE

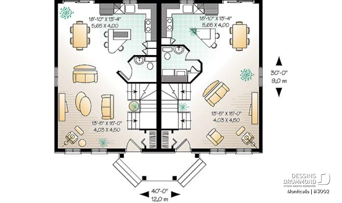
Rez-de-chaussée - Plan de maison jumelé à étage, 2 à 3 chambres, 2 salles de bain par unité, aire ouverte, îlot à la cuisine - Monticello

Rez-de-chaussée

Étage - Plan de maison jumelé à étage, 2 à 3 chambres, 2 salles de bain par unité, aire ouverte, îlot à la cuisine - Monticello

Étage

Élévation arrière - Monticello

Élévation arrière

Monticello Plan de maison 3002

Plan de maison jumelé à étage, 2 à 3 chambres, 2 salles de bain par unité, aire ouverte, îlot à la cuisine

À partir de

2025$

Fiche technique sommaire Plan #3002
Estimation ($) 627,207$
Surface habitable 2400 pi² Chambre 2, 3
Salle de Bain 1 Salle d'eau 1
Fondation incluse Sous-sol aménageable Garage -
Largeur 40'0" Profondeur 30'0"

Besoin d’aide ?

Nos experts vous guident dans votre projet grâce à plus de 30 bureaux au Québec.

Joignez-nous

Consultez notre guide utilisateur

Un outil conçu pour vous simplifier la vie.

Ouvrir le guide

Un accompagnement sur mesure

De la modification de plans au design d’intérieur, nous vous guidons à chaque étape.

Découvrir nos services

Détails supplémentaires

Estimation

Spécifications générales

Surface aménagée totale
2400 pi²
Rez-de-chaussée
1200 pi²
Étage
1200 pi²
Largeur
40'0"
Profondeur
30'0"
Hauteur dessus fondations au faite
29'10"
Murs extérieurs
2 X 6
Murs extérieurs
2 X 6
Sous-sol aménageable
Autres fondations disponibles (des frais peuvent s'appliquer)
Dalle flottante, Vide sanitaire, Dalle monolithique
Code Entrepreneur
MB

Spécifications sur les pièces

Chambre(s)
2, 3
Salle(s) de bain complète(s)
1
Demi Salle(s) de Bain
1
Type de garage
-
Superficie balcon et/ou perron abrité
78 pi²

Spécifications des unités

LOGEMENT 1-GAUCHE
LOGEMENT 2-DROITE
Surface aménagée totale
1200 pi²
1200 pi²
Rez-de-chaussée
600 pi²
600 pi²
Étage
600 pi²
600 pi²
Largeur
20' 0"
20' 0"
Profondeur
30' 0"
30' 0"
Hauteur dessus fondations au faite
29' 10"
29' 10"
Murs extérieurs
2 X 6
2 X 6
Type de fondation
Sous-sol aménageable
Sous-sol aménageable
Chambre(s)
2
3
Salle(s) de bain
1
1
Demi Salle(s) de Bain
1
1
Type de garage
-
-
Espace boni aménageable
-
-
Rangement boni
-
-

Rez-de-chaussée

Pièces
Dimensions
Plafond
Cuisine/salle à manger
18'9" x 13'4"
~ 8'0"
Garde-manger
2'0" x 2'7"
N/D
Salle de séjour
13'2" x 15'0"
~ 8'0"
Perron abrité
15'6" x 5'0"
N/D
Terrasse
9'4" x 5'0"
N/D
Demie salle de bain ou coin toilette
5'4" x 4'10"
~ 8'0"
Coin toilette/buanderie
7'6" x 6'9"
~ 8'0"
Salle de séjour
13'2" x 15'0"
~ 8'0"
Entrée ou vestibule
3'2" x 3'8"
~ 8'0"
Garde-robe
2'0" x 3'8"
~ 8'0"
Cuisine/salle à manger
18'9" x 13'4"
~ 8'0"
Garde-manger
2'0" x 1'2"
N/D
Entrée ou vestibule
3'2" x 3'8"
~ 8'0"
Garde-robe
2'0" x 3'8"
~ 8'0"
Terrasse
9'4" x 5'0"
N/D

Étage

Pièces
Dimensions
Plafond
Salle de bain complète
8'4" x 13'0"
~ 8'0"
Chambre à coucher
11'0" x 15'0"
~ 8'0"
Chambre à coucher
12'0" x 11'0"
~ 8'0"
Salle de lavage
3'0" x 5'0"
~ 8'0"
Chambre à coucher
10'1" x 9'11"
~ 8'0"
Chambre à coucher
9'3" x 10'0"
~ 8'0"
Chambre à coucher
9'2" x 9'0"
~ 8'0"
Salle de bain complète
9'8" x 7'6"
~ 8'0"
Rangement
3'7" x 2'8"
~ 8'0"

Plan de maison jumelé avec 2 ou 3 chambres et superbe aménagement de plancher

.

Éléments distinctifs

Plan de jumelé avec 2 ou 3 chambres.
Salle d'eau avec option buanderie au rez-de-chaussée (logement de droite).
Cuisine avec îlot et porte-patio.
Garde-robe walk-in dans les chambres des maîtres.
Fenestration spéciale.
Perron avant abrité.
Sous-sol non-fini, à aménager.
Autres types de fondation disponible sur tous nos modèles.

Particularité(s) du plan

Ilôt, Salle de lavage au rez-de-chaussée, Walk-in ch. maîtres, Aire ouverte, Vue paronamique, Bain et douche séparés

Style(s) architectural du plan

Européen, Anglais, Champêtre, Colonial

Plans similaires
Logo Dessins Drummond image Dessins Drummond
Le modèle Monticello est protégé par la loi sur les droits d'auteur.

Les illustrations présentées peuvent différer du plan détaillé que vous recevrez, car ces derniers sont régulièrement ajustés afin de respecter les normes de construction en vigueur.

En savoir plus

Une question ou un commentaire sur ce plan ?

Information de contact

Votre demande

Ajouter vos images ou photos

Pour ajouter une ou des photos, veuillez cliquer ou glisser vos fichiers dans la zone ci-bas. Vous pouvez ajouter jusqu'à huit photos JPG ou JPEG. Cette opération n'est pas obligatoire.

Désolé, votre navigateur ne supporte pas l'envoi de fichier.