Vue avant - MODÈLE DE BASE - Plan de maison de style Grange moderne, 5 chambres à l'étage, 2.5 s. de bain, garage, vestibule, garde-manger - La Villa

Vue avant - MODÈLE DE BASE

Rez-de-chaussée - Plan de maison de style Grange moderne, 5 chambres à l'étage, 2.5 s. de bain, garage, vestibule, garde-manger - La Villa

Rez-de-chaussée

Étage - Plan de maison de style Grange moderne, 5 chambres à l'étage, 2.5 s. de bain, garage, vestibule, garde-manger - La Villa

Étage

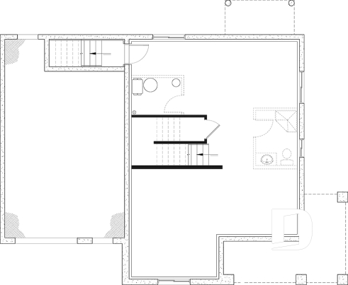
Sous-sol - Plan de maison de style Grange moderne, 5 chambres à l'étage, 2.5 s. de bain, garage, vestibule, garde-manger - La Villa

Sous-sol

Élévation arrière - La Villa

Élévation arrière

La Villa Plan de maison 3464

Plan de maison de style Grange moderne, 5 chambres à l'étage, 2.5 s. de bain, garage, vestibule, garde-manger

À partir de

1765$

Fiche technique sommaire Plan #3464
Estimation ($) 636,020$
Surface habitable 2297 pi² Chambre 5
Salle de Bain 2 Salle d'eau 1
Fondation incluse Sous-sol aménageable Garage 1 voiture
Largeur 44'0" Profondeur 36'4"

Besoin d’aide ?

Nos experts vous guident dans votre projet grâce à plus de 30 bureaux au Québec.

Joignez-nous

Consultez notre guide utilisateur

Un outil conçu pour vous simplifier la vie.

Ouvrir le guide

Un accompagnement sur mesure

De la modification de plans au design d’intérieur, nous vous guidons à chaque étape.

Découvrir nos services

Détails supplémentaires

Estimation

Spécifications générales

Surface aménagée totale
2297 pi²
Rez-de-chaussée
873 pi²
Étage
1424 pi²
Sous-sol
873 pi²
Largeur
44'0"
Profondeur
36'4"
Hauteur dessus fondations au faite
30'7"
Murs extérieurs
2 X 6
Murs extérieurs
2 X 6
Sous-sol aménageable
Code Entrepreneur
F

Spécifications sur les pièces

Chambre(s)
5
Salle(s) de bain complète(s)
2
Demi Salle(s) de Bain
1
Type de garage
1 voiture (542 pi²)
Superficie balcon et/ou perron abrité
143 pi²

Rez-de-chaussée

Pièces
Dimensions
Plafond
Cuisine
13'8" x 11'4"
~ 9'0"
Îlot
6'0" x 3'0"
N/D
Salle à manger
11'0" x 13'10"
~ 9'0"
Salle de séjour
13'0" x 15'10"
~ 9'0"
Entrée ou vestibule
11'2" x 5'0"
~ 9'0"
Garage
17'4" x 28'8"
~ 9'6"
Vestiaire
6'10" x 4'0"
~ 9'0"
Perron abrité
17'8" x 6'0"
~ 8'8"
Perron abrité
6'0" x 6'10"
~ 8'8"
Coin toilette/lavabo
6'10" x 4'8"
~ 9'0"
Patio
10'0" x 5'0"
N/D

Étage

Pièces
Dimensions
Plafond
Suite des maîtres
13'0" x 16'0"
~ 8'0"
Salle de bain complète
9'8" x 10'4"
~ 8'0"
Toilette en cabine
2'8" x 5'0"
~ 8'0"
Douche
5'0" x 3'0"
N/D
Lingerie
2'6" x 1'2"
N/D
Chambre à coucher
12'0" x 13'0"
~ 8'0"
Garde-robe
4'0" x 2'0"
~ 8'0"
Chambre à coucher
12'0" x 13'0"
~ 8'0"
Garde-robe
4'0" x 2'0"
~ 8'0"
Chambre à coucher
10'0" x 11'0"
~ 8'0"
Chambre à coucher
11'0" x 11'0"
~ 8'0"
Salle de lavage
6'0" x 11'0"
~ 8'0"
Salle de bain
5'4" x 13'0"
~ 8'0"

Sous-sol

Modèle de maison de style grange moderne offrant cinq chambres et plein d’utilités!

> Le plan de maison LA VILLA (plan #3464) propose 2297 pi.ca. aménagés sur 2 étages, excluant le sous-sol qui n'est pas aménagé. Dans le but de combler les besoins en chambres de certaines familles, comme celles reconstituées, Dessins Drummond propose ici un modèle mansardé fort logeable pour lequel on assiste à un bien heureux mariage d’un garage de 17’4'' x 28’8'' à une maison bien aménagée pour une grande famille. Sans oublier cette galerie couverte, en façade principale, qui procure une touche bien invitante à l’ensemble.

À l’intérieur, on apprécie, au rez-de-chaussée et à l’avant, un vestibule avec garde-robe de type walk-in adéquate et une salle de séjour de beau format avec foyer en coin. Puis, à l’arrière, un espace cuisine-salle à manger abondamment fenêtré avec une table pour huit convives,un îlot-lunch et un garde-manger en coin. À noter ici, la présence d’un plafond à 9’ pour tout le rez-de-chaussée, d’un accès direct au garage tout près de la cuisine et d’un escalier vers le sous-sol à partir du garage.

À l’étage, pour lequel l’espace au-dessus du garage est mis à contribution, on retrouve cinq chambres dont une suite des maîtres avec salle de bain privée, douche de grand format et garde-robe walk-in. Ici, pour les enfants, on remarque une salle de bain avec vanité à deux lavabos ainsi qu’une toilette et un bain en cabine pour un usage encore plus fonctionnel. Sans oublier la salle de lavage qui sera certainement appréciée sur ce plancher où l’on retrouve toute la literie et la lingerie.

Cette maison offre le confort et l'intimité tant recherchés par les membres de grandes familles!

Éléments distinctifs

Maison de beau style grange moderne avec garage.
Plafond à 9' au rez-de-chaussée.
Vestibule d'entrée avec grande garde-robe de type walk-in et un banc.
Cinq chambres à coucher prévues à l'étage dont une suite des maîtres avec garde-robe "walk-in" et salle de bain privée.
La salle de bain des enfants, à l'étage, est avec lavabos doubles d'un côté, et toilette et bain de l'autre.
Cuisine avec îlot-lunch central et garde-manger "walk-in".
Salle de séjour avec foyer en coin.
Salle de lavage pratique, localisée à l'étage.
Garage avec descente au sous-sol.

Particularité(s) du plan

Salle de lavage à l'étage, Ilôt, Garde-manger, Suite des maîtres à l'étage, Plafond à plus de 8', Walk-in ch. maîtres, Lavabo double, Foyer, Accès au sous-sol du garage, Banquette, Tablettes, Lavabo double

Style(s) architectural du plan

Cape Cod, Farmhouse, Nordique, Américain, Champêtre, Vacances, bordure de lac

Plans similaires
Logo Dessins Drummond image Dessins Drummond
Le modèle La Villa est protégé par la loi sur les droits d'auteur.

Les illustrations présentées peuvent différer du plan détaillé que vous recevrez, car ces derniers sont régulièrement ajustés afin de respecter les normes de construction en vigueur.

En savoir plus

Une question ou un commentaire sur ce plan ?

Information de contact

Votre demande

Ajouter vos images ou photos

Pour ajouter une ou des photos, veuillez cliquer ou glisser vos fichiers dans la zone ci-bas. Vous pouvez ajouter jusqu'à huit photos JPG ou JPEG. Cette opération n'est pas obligatoire.

Désolé, votre navigateur ne supporte pas l'envoi de fichier.