Vue avant - MODÈLE DE BASE - Cottage de style campagne française, 3 chambres, aire ouverte, superbe salle de bain familiale - Herschel

Vue avant - MODÈLE DE BASE

Rez-de-chaussée - Cottage de style campagne française, 3 chambres, aire ouverte, superbe salle de bain familiale - Herschel

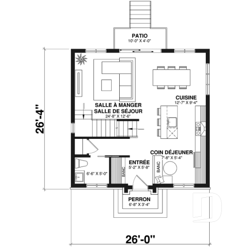
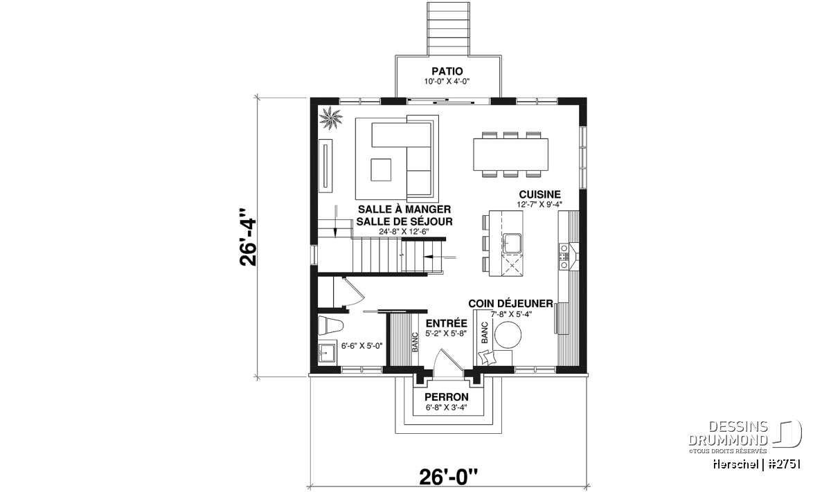
Rez-de-chaussée

Étage - Cottage de style campagne française, 3 chambres, aire ouverte, superbe salle de bain familiale - Herschel

Étage

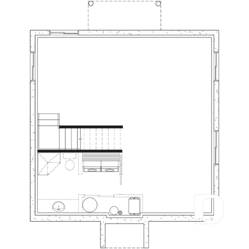
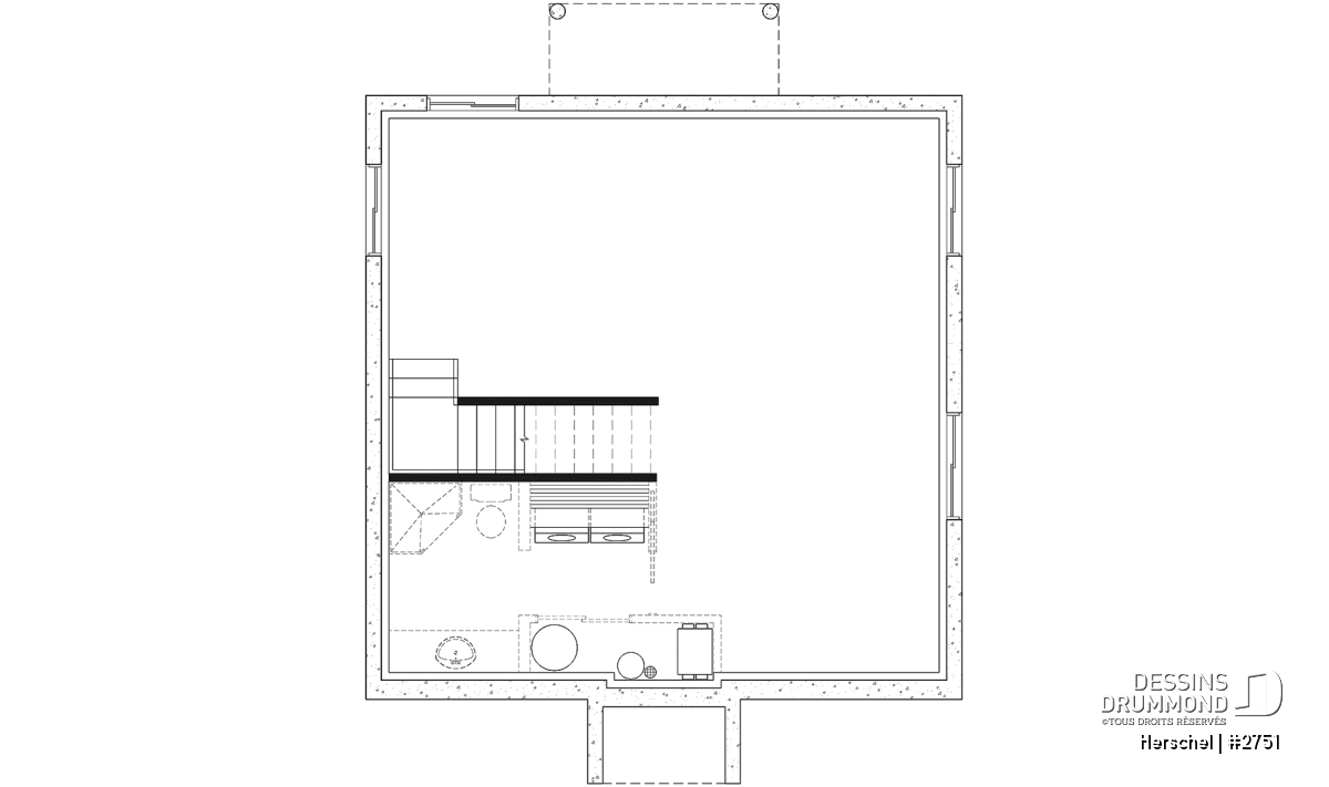
Sous-sol aménageable - Cottage de style campagne française, 3 chambres, aire ouverte, superbe salle de bain familiale - Herschel

Sous-sol aménageable

Élévation arrière - Herschel

Élévation arrière

Herschel Plan de maison 2751

Cottage de style campagne française, 3 chambres, aire ouverte, superbe salle de bain familiale

À partir de

1440$

Fiche technique sommaire Plan #2751
Estimation ($) 336,836$
Surface habitable 1365 pi² Chambre 3
Salle de Bain 2 Salle d'eau -
Fondation incluse Sous-sol aménageable Garage -
Largeur 26'0" Profondeur 26'4"

Besoin d’aide ?

Nos experts vous guident dans votre projet grâce à plus de 30 bureaux au Québec.

Joignez-nous

Consultez notre guide utilisateur

Un outil conçu pour vous simplifier la vie.

Ouvrir le guide

Besoin d’une assurance habitation ?

Pour obtenir votre prix, c’est juste ici

Obtenir une soumission

Détails supplémentaires

Estimation

Spécifications générales

Surface aménagée totale
1365 pi²
Rez-de-chaussée
689 pi²
Étage
676 pi²
Sous-sol aménageable
689 pi²
Largeur
26'0"
Profondeur
26'4"
Hauteur dessus fondations au faite
27'4"
Murs extérieurs
2 X 6
Murs extérieurs
2 X 6
Sous-sol aménageable
Autres fondations disponibles (des frais peuvent s'appliquer)
Dalle flottante, Vide sanitaire, Dalle monolithique
Code Entrepreneur
C

Spécifications sur les pièces

Chambre(s)
3
Salle(s) de bain complète(s)
2
Demi Salle(s) de Bain
-
Type de garage
-
Superficie balcon et/ou perron abrité
60 pi²

Rez-de-chaussée

Pièces
Dimensions
Plafond
Cuisine
12'7" x 9'4"
~ 8'0"
Garde-manger
2'0" x 1'6"
N/D
Îlot
6'2" x 3'2"
N/D
Entrée ou vestibule
5'2" x 5'8"
~ 8'0"
Coin toilette/lavabo
6'6" x 5'0"
~ 8'0"
Coin déjeuner
7'8" x 5'4"
~ 8'0"
Rangement
3'0" x 2'4"
~ 8'0"
Salle de séjour/salle à manger
24'8" x 12'6"
~ 8'0"
Perron
6'8" x 3'4"
N/D
Perron
10'0" x 4'0"
N/D

Étage

Pièces
Dimensions
Plafond
Salle de bain complète
15'0" x 8'6"
~ 8'0"
Douche
7'3" x 8'6"
N/D
Lingerie
2'10" x 1'8"
N/D
Chambre à coucher
11'5" x 12'2"
~ 8'0"
Walk-in
3'4" x 8'6"
~ 8'0"
Chambre à coucher
9'3" x 9'10"
~ 8'0"
Chambre à coucher
9'3" x 9'10"
~ 8'0"

Sous-sol aménageable

Maison de style campagne française, proposant 3 chambres!

Porte principale des mieux enveloppées, agrégat aux murs et touche de brique/pierre en façade, persiennes à plusieurs fenêtres, boîtes à fleurs originales et débordantes comme il fut tant remarqué en France après la deuxième guerre mondiale, sont là tous des éléments conférant à ce modèle une touche des plus européennes.

À l’intérieur, c’est principalement une maximisation de l’espace et la quasi absence de corridor que l’on peut apprécier au premier coup d’œil. Par la suite, on constate une entrée principale agréable côtoyant une cuisine/dînette à la fois originale et tout en lumière dont la configuration permet l’insertion d’un banc et rangement. La salle à manger forme avec la salle de séjour un espace à la fois ouvert et attrayant donnant en totalité sur l’arrière. À l’avant, ce plancher est complété d’une salle d'eau toujours des plus appréciées.

À l’étage, on retrouve trois belles chambres ayant chacune une garde-robe intéressante et plus particulièrement une salle de bain très confortable pour un modèle de ce gabarit. Celle-ci propose un secteur bain/douche intégré et une toilette bien discrète, comme fortement suggéré en aménagement idéal de salle de bain.

Éléments distinctifs

Maison de style campagne française, abordable.
3 chambres et grande salle de bain à l'étage.
Cuisine originale avec coin dînette donnant sur l'avant de la maison.
Salle de séjour et salle à manger donnant sur l'arrière.
Sous-sol non-fini à aménager pour espace supplémentaire au besoin.

Particularité(s) du plan

Comptoir-lunch, Banquette, Aire ouverte, Dinette / Coin déjeuner, Ilôt, Entrepreneur, Auto-Construction, Bain dans la douche

Style(s) architectural du plan

Colonial, Traditionnelle, Anglais, Français Moderne, Classique, Méditerranéen, Européen, Campagne Française

Plans similaires
Logo Dessins Drummond image Dessins Drummond
Le modèle Herschel est protégé par la loi sur les droits d'auteur.

Les illustrations présentées peuvent différer du plan détaillé que vous recevrez, car ces derniers sont régulièrement ajustés afin de respecter les normes de construction en vigueur.

En savoir plus

Une question ou un commentaire sur ce plan ?

Information de contact

Votre demande

Ajouter vos images ou photos

Pour ajouter une ou des photos, veuillez cliquer ou glisser vos fichiers dans la zone ci-bas. Vous pouvez ajouter jusqu'à huit photos JPG ou JPEG. Cette opération n'est pas obligatoire.

Désolé, votre navigateur ne supporte pas l'envoi de fichier.