Vue avant - MODÈLE DE BASE - Plan de maison avec 2 salles familiales, 3 chambres, grand walk-in aux maîtres, garage double - Garrison

Vue avant - MODÈLE DE BASE

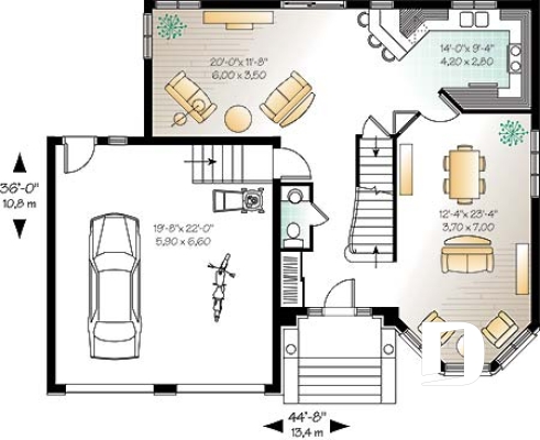
Rez-de-chaussée - Plan de maison avec 2 salles familiales, 3 chambres, grand walk-in aux maîtres, garage double - Garrison

Rez-de-chaussée

Étage - Plan de maison avec 2 salles familiales, 3 chambres, grand walk-in aux maîtres, garage double - Garrison

Étage

Élévation arrière - Garrison

Élévation arrière

Garrison Plan de maison 2880

Plan de maison avec 2 salles familiales, 3 chambres, grand walk-in aux maîtres, garage double

À partir de

1655$

Fiche technique sommaire Plan #2880
Estimation ($) 587,666$
Surface habitable 2030 pi² Chambre 3
Salle de Bain 2 Salle d'eau 1
Fondation incluse Sous-sol aménageable Garage 2 voitures
Largeur 44'8" Profondeur 36'0"

Besoin d’aide ?

Nos experts vous guident dans votre projet grâce à plus de 30 bureaux au Québec.

Joignez-nous

Consultez notre guide utilisateur

Un outil conçu pour vous simplifier la vie.

Ouvrir le guide

Un accompagnement sur mesure

De la modification de plans au design d’intérieur, nous vous guidons à chaque étape.

Découvrir nos services

Détails supplémentaires

Estimation

Spécifications générales

Surface aménagée totale
2030 pi²
Rez-de-chaussée
916 pi²
Étage
1114 pi²
Largeur
44'8"
Profondeur
36'0"
Hauteur dessus fondations au faite
33'2"
Murs extérieurs
2 X 6
Murs extérieurs
2 X 6
Sous-sol aménageable
Autres fondations disponibles (des frais peuvent s'appliquer)
Dalle flottante, Vide sanitaire
Code Entrepreneur
E

Spécifications sur les pièces

Chambre(s)
3
Salle(s) de bain complète(s)
2
Demi Salle(s) de Bain
1
Type de garage
2 voitures (479 pi²)
Superficie balcon et/ou perron abrité
23 pi²

Rez-de-chaussée

Pièces
Dimensions
Plafond
Cuisine
14'0" x 9'4"
~ 9'0"
Salle à manger
12'4" x 23'4"
~ 9'0"
Salle familiale
20'0" x 11'8"
~ 9'0"
Garage
19'8" x 22'0"
~ 9'2"
Garde-robe
2'0" x 4'10"
~ 9'0"
Perron
7'4" x 3'6"
N/D
Patio
10'0" x 10'0"
N/D
Demie salle de bain ou coin toilette
2'8" x 6'3"
~ 9'0"

Étage

Pièces
Dimensions
Plafond
Salle de bain complète
9'11" x 9'0"
~ 8'0"
Salle de bain complète
7'8" x 8'0"
~ 8'0"
Chambre à coucher
11'4" x 12'8"
~ 8'0"
Chambre à coucher
11'4" x 12'0"
~ 8'0"
Salle utilitaire (buanderie +)
7'10" x 8'0"
~ 8'0"
Chambre à coucher
12'4" x 16'8"
~ 8'0"
Garde-robe
2'0" x 4'4"
~ 8'0"

Cottage plutôt imposant d’esprit anglais

Remarquable par sa stature et par une fenestration plus qu’abondante en façade principale, ce cottage avec son garage double et un intérieur des plus fonctionnels fera certes l’envie de plusieurs. Entrons donc…

L’escalier vers l’étage se fait bien invitant mais nous débuterons tout de même notre visite par le rez-de-chaussée. Une salle de séjour jumelée à la salle à manger suggère un ensemble parfait à la réception d’invités. À l’arrière, la cuisine/dînette s’ouvre sur une salle familiale, bien fenêtrée et qui certes plaira à tous par sa versatilité.

De retour vers l’avant, nous croisons le coin toilette indispensable à ce plancher. Empruntons maintenant l’escalier…

Très originale, la montée nous fait côtoyer une mezzanine au garde-corps cintré. Ici, le rangement et le confort sont rois. Deux belles chambres secondaires sont dotées de grandes garde-robes tandis que la chambre des maîtres, en tourelle, bénéficie pour sa part d’un « walk-in ». Une salle de bain et une salle de douche assurent plus de disponibilité aux usagers alors qu’une buanderie complète rapproche vêtements, lingerie et literie de leurs rangements respectifs. Fonctionnel vous dites…

Éléments distinctifs

Plafond à 9 pieds au rez-de-chaussée, bain en coin à l'étage, coin détente dans la chambre des maîtres, faux balcon à l'étage, buanderie complète à l''étage, fenestration abondante.

Particularité(s) du plan

Salle de lavage à l'étage, Walk-in ch. maîtres, Boudoir / Vivoir, Comptoir-lunch, Plafond à plus de 8', Salle à manger formel, Bain et douche séparés

Style(s) architectural du plan

Victorien, Européen, Champêtre

Logo Dessins Drummond image Dessins Drummond
Le modèle Garrison est protégé par la loi sur les droits d'auteur.

Les illustrations présentées peuvent différer du plan détaillé que vous recevrez, car ces derniers sont régulièrement ajustés afin de respecter les normes de construction en vigueur.

En savoir plus

Une question ou un commentaire sur ce plan ?

Information de contact

Votre demande

Ajouter vos images ou photos

Pour ajouter une ou des photos, veuillez cliquer ou glisser vos fichiers dans la zone ci-bas. Vous pouvez ajouter jusqu'à huit photos JPG ou JPEG. Cette opération n'est pas obligatoire.

Désolé, votre navigateur ne supporte pas l'envoi de fichier.