Connexion
À partir de 1440$
Vue avant - MODÈLE DE BASE
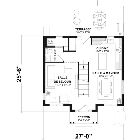
Rez-de-chaussée
Étage
Sous-sol
Élévation arrière
Version couleur no. 2 - Vue avant
Version couleur no. 3 - Vue avant
Version couleur no. 4 - Vue avant
Version couleur no. 5 - Vue avant
Version couleur no. 6 - Vue avant
Version couleur no. 7 - Vue avant
Version couleur no. 9 - Vue avant
Maison à étage proposant 3 chambres, une superbe salle de bain familiale à l'étage et sous-sol à aménager
| Fiche technique sommaire | Plan #4729 | ||
|---|---|---|---|
| Estimation ($) | 322,590$ | ||
| Surface habitable | 1288 pi² | Chambre | 3 |
| Salle de Bain | 1 | Salle d'eau | 1 |
| Fondation incluse | Sous-sol aménageable | Garage | - |
| Largeur | 27'0" | Profondeur | 25'6" |
Nos experts vous guident dans votre projet grâce à plus de 30 bureaux au Québec.
Joignez-nousDe la modification de plans au design d’intérieur, nous vous guidons à chaque étape.
Découvrir nos services
Vous rêvez d’un chez-vous chaleureux, fonctionnel et abordable pour démarrer votre vie de famille ? Cette maison compacte au style anglais classique a tout pour plaire ! Avec son format étroit, DURANEL 5 (#4729) est idéale pour les petits terrains, tout en offrant un intérieur lumineux, bien pensé et étonnamment spacieux.
Dès l’entrée, on ressent tout le confort d’une maison conçue pour la vie de tous les jours. La cuisine, au cœur de l’action, est dotée d’un îlot central parfait pour cuisiner tout en gardant le contact avec la famille ou les invités. Située à proximité, la salle de lavage permet une organisation optimale — un vrai plus pour les jeunes parents !
La salle à manger, baignée de lumière naturelle, crée une atmosphère conviviale pour les repas en famille, tandis que le grand salon offre un espace parfait pour se détendre, jouer avec les enfants ou recevoir les amis.
À l’étage, la chambre principale propose un garde-robe walk-in, un rangement pratique qui fait toute la différence au quotidien. La salle de bain familiale, pensée pour maximiser le confort, est équipée d’une baignoire intégrée à la douche et de deux lavabos, pour un quotidien plus fluide, même aux heures de pointe.
Et ce n’est pas tout ! Le sous-sol non aménagé offre un potentiel immense pour s’adapter à l’évolution de votre famille. Vous pourriez y aménager des chambres supplémentaires, une grande salle familiale, un espace de jeux, un bureau à domicile ou du rangement bien organisé — les possibilités sont infinies !
Cette maison a été conçue pour offrir une qualité de vie optimale à une jeune famille, dans un format compact, élégant et intelligent. Un choix coup de cœur pour grandir ensemble, sans compromis.
Maison compacte de style anglais, parfaite pour les terrains étroits.
Le design est optimisé pour offrir un intérieur lumineux, confortable et facile à vivre.
La cuisine est dotée d’un îlot central, idéale pour cuisiner en toute convivialité.
La salle de lavage, située près de la cuisine, est pratique et discrète.
Le salon est spacieux et chaleureux, parfait pour relaxer en famille.
La salle à manger bénéficie d’une belle lumière naturelle.
À l’étage, la chambre principale comprend un walk-in généreux.
La salle de bain propose un bain-douche intégré et deux lavabos.
Le sous-sol non aménagé offre un excellent potentiel : chambres, salle familiale, bureau ou rangement.
Une maison pleine de charme et pensée pour évoluer avec vous.
Salle de lavage au rez-de-chaussée, Walk-in ch. maîtres, Lavabo double, Bain dans la douche
Traditionnelle, Champêtre, Américain, Moderne rustique, Européen, Transitionnel, Anglais
Les illustrations présentées peuvent différer du plan détaillé que vous recevrez, car ces derniers sont régulièrement ajustés afin de respecter les normes de construction en vigueur.
En savoir plusNos estimations de coûts sont des moyennes provinciales, et sont là pour vous donner un "approximatif" de la valeur de nos modèles, construits avec un entrepreneur. Ce faisant, ils peuvent varier de +/- 30% selon votre région, votre entrepreneur et vos choix de matériaux.
Si vous choisissez l'auto-construction, vous pourrez économiser de 10% à 30% de notre estimation selon votre implication et compétence.
Comme nous ne construisons pas, nous nous dégageons de toutes responsabilités à l'égard des estimations indiquées. De plus, prendre note que nos estimations sont modifiées sans préavis, régulièrement. Il est donc de votre responsabilité de valider auprès d'entrepreneurs de votre région en les questionnant sur ses délais de livraison et coûts de construction réels versus nos estimations ce, avant l'achat d'un plan, car ce dernier n'est ni échangeable ni remboursable.
Avec un entrepreneur
Cette mention sur notre site signifie que nos estimations sont basées sur des constructions clé-en-main, donc gérés de A à Z par des entrepreneurs compétents et qualifiés. Elles incluent et excluent les éléments prévus au tableau ci-haut. Ne pouvant prédire les choix que vous ferez avec votre entrepreneur, nous considérons qu'il utilisera des matériaux de qualité courante (pas le plus cher, pas le moins cher).
Auto-Construction
Signifie que vous gérez vous-même votre projet tout en réalisant certains travaux comme la pose de l'isolant, du gypse, du pare-vapeur et l'application de la peinture, pour n'en nommer que quelques-uns. Selon votre degré d'implication, vous pourriez sauver jusqu'à 30% du coût total de construction, mais rarement plus, à moins que vous soyez un professionnel de la construction!
Extérieur
Ci-bas vous retrouverez les détails de ce qui est inclus et exclus dans nos estimations, en lien avec les images extérieures telles que présentées sur notre site.
Intérieur
Ci-bas vous retrouverez les détails de ce qui est inclus et exclus dans les estimations, en lien avec les images intérieures telles que présentées sur notre site.
Besoin d'aide?
Consultez l'un de nos 30 bureaux si vous souhaitez plus d'information sur nos estimations ou afin d'obtenir un prix plus précis selon vos besoins et votre région. Pour de plus ample information vous pouvez nous appeler ou écrire par courriel: 1-800-567-1413 ou [email protected]
Nos estimations de coûts sont des moyennes provinciales, et sont là pour vous donner un "approximatif" de la valeur de nos garages, construits avec un entrepreneur. Ce faisant, ils peuvent varier de +/- 30% selon votre région, votre entrepreneur et vos choix de matériaux.
Si vous choisissez l'auto-construction, vous pourrez économiser de 10% à 30% de notre estimation selon votre implication et compétence.
Comme nous ne construisons pas, nous nous dégageons de toutes responsabilités à l'égard des estimations indiquées. De plus, prendre note que nos estimations sont modifiées sans préavis, régulièrement. Il est donc de votre responsabilité de valider auprès d'entrepreneurs de votre région en les questionnant sur ses délais de livraison et coûts de construction réels versus nos estimations ce, avant l'achat d'un plan, car ce dernier n'est ni échangeable ni remboursable.
Avec un entrepreneur
Cette mention sur notre site signifie que nos estimations sont basées sur des constructions clé-en-main, donc gérés de A à Z par des entrepreneurs compétents et qualifiés. Elles incluent et excluent les éléments prévus au tableau ci-haut. Ne pouvant prédire les choix que vous ferez avec votre entrepreneur, nous considérons qu'il utilisera des matériaux de qualité courante (pas le plus cher, pas le moins cher).
Auto-Construction
Signifie que vous gérez vous-même votre projet tout en réalisant certains travaux comme la pose de l'isolant, du gypse, du pare-vapeur et l'application de la peinture, pour n'en nommer que quelques-uns. Selon votre degré d'implication, vous pourriez sauver jusqu'à 30% du coût total de construction, mais rarement plus, à moins que vous soyez un professionnel de la construction!
Extérieur
Ci-bas vous retrouverez les détails de ce qui est inclus et exclus dans nos estimations, en lien avec les images extérieures telles que présentées sur notre site.
Intérieur
Ci-bas vous retrouverez les détails de ce qui est inclus et exclus dans les estimations de nos plans de garage, tels que présentés sur notre site.
Besoin d'aide?
Consultez l'un de nos 30 bureaux si vous souhaitez plus d'information sur nos estimations ou afin d'obtenir un prix plus précis selon vos besoins et votre région.
Les coûts approximatifs des matériaux indiqués sur notre site internet sont des moyennes provinciales qui peuvent varier jusqu’à 30% et plus selon la région, la saison de construction et vos choix de matériaux. Ils sont basés sur l'utilisation de matériaux de qualité courante, que la plupart des entrepreneurs utilisent. De plus ils peuvent changer à tout moment, sans préavis, compte tenu de l’important fluctuation des prix des matériaux, depuis 2020.
Nos estimations excluent les taxes, les raccords municipaux, les frais reliés à l'électricité, le chauffage, la main d'œuvre, le terrain, l'excavation et la fondation (précisée dans la fiche détaillée du plan choisi à la ligne « Type de fondation »).
La fondation précisée à cette ligne est incluse dans le plan que vous recevrez, dans le prix du plan ainsi que dans l'estimation du coût de construction SAUF dans le cas d'un sous-sol aménagé. La finition d'un sous-sol aménagé n'est JAMAIS incluse dans notre estimation sauf si avis contraire précisé dans la description du plan et/ou dans la section élément distinctif, sur la page du plan. Un sous-sol aménageable est un sous-sol non-fini, à finir plus tard, selon vos besoins.
Veuillez noter que plusieurs types de fondation additionnels sont disponibles, certains moyennant un frais. Vous pourrez sélectionner le type de fondation désiré, dans le bon de commande en ligne.
Si le type de fondation que vous souhaitez ne se trouve pas dans la liste des autres fondations disponibles, veuillez contacter notre service à la clientèle afin d'obtenir un estimé de notre département de modification de plan, ou simplement compléter le formulaire de demande de modification suivant : https://dessinsdrummond.com/formulaire-modification-de-plan-en-ligne et vous recevrez votre estimation gratuite dans les 2 à 4 jours ouvrables, approx..
Le type de fondation précisé à cette ligne n'est pas inclus dans l'estimé des matériaux approximatif.
Veuillez noter que plusieurs types de fondation additionnels sont aussi disponibles. Vous pourrez sélectionner le type de fondation désiré, dans le bon de commande en ligne, ou nous joindre pour information.
Espace boni aménageable
L'espace boni aménageable est généralement prévu au-dessus du garage et il est accessible de la maison. Comme il est prévu aménageable, il pourra devenir un bureau, un espace buanderie, une salle de bain, un coin bibliothèque ou même une chambre additionnelle pour laquelle les propriétaires devront s'assurer d'avoir une fenêtre conforme aux normes en vigueur. De plus, la finition de cette espace boni est toujours INCLUSE dans nos estimation du coût de construction, sauf si avis contraire dans les sections « Description et/ou Éléments descriptifs » de la page du plan.
Rangement boni
Souvent localisé au-dessus du garage, le rangement boni est utilisé uniquement comme rangement et il est généralement accessible du garage via un escalier escamotable. De plus, la finition de ce rangement boni est toujours INCLUSE dans nos estimation du coût de construction, sauf si avis contraire dans les sections « Description et/ou Éléments descriptifs » de la page du plan.
Maison à étage proposant 3 chambres, une superbe salle de bain familiale à l'étage et sous-sol à aménager