Vue avant - MODÈLE DE BASE - Plan maison bord de l'eau, 2 à 4 chambres, garage, solarium, plafond cathédrale, foyer, grand balcon - Cerrito

Vue avant - MODÈLE DE BASE

Rez-de-chaussée - Plan maison bord de l'eau, 2 à 4 chambres, garage, solarium, plafond cathédrale, foyer, grand balcon - Cerrito

Rez-de-chaussée

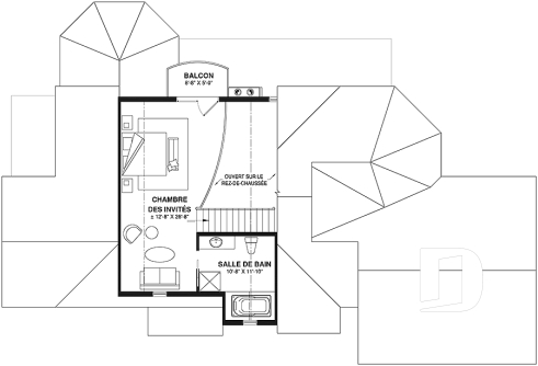
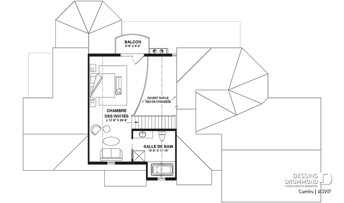
Étage - Plan maison bord de l'eau, 2 à 4 chambres, garage, solarium, plafond cathédrale, foyer, grand balcon - Cerrito

Étage

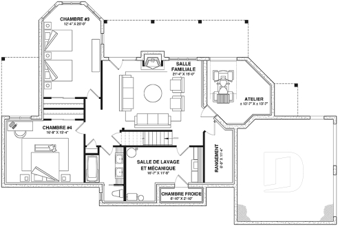
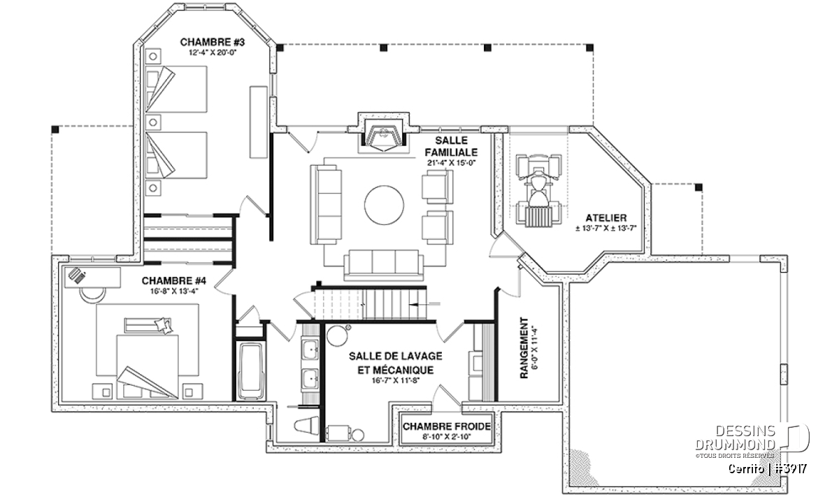
Sous-sol - Plan maison bord de l'eau, 2 à 4 chambres, garage, solarium, plafond cathédrale, foyer, grand balcon - Cerrito

Sous-sol

Vue arrière - MODÈLE DE BASE - Cerrito

Vue arrière - MODÈLE DE BASE

Élévation arrière - Cerrito

Élévation arrière

Cerrito Plan de maison 3917

Plan maison bord de l'eau, 2 à 4 chambres, garage, solarium, plafond cathédrale, foyer, grand balcon

À partir de

2200$

Fiche technique sommaire Plan #3917
Estimation ($) - (Sous-sol non-fini) | 710,811$ (Sous-sol fini)
Surface habitable 3392 pi² Chambre 3, 4, 5
Salle de Bain 3 Salle d'eau 1
Fondation incluse Sous-sol aménagé + sortie extérieure (Rez-de-jardin) Garage 2 voitures
Largeur 72'0" Profondeur 48'0"

Besoin d’aide ?

Nos experts vous guident dans votre projet grâce à plus de 30 bureaux au Québec.

Joignez-nous

Consultez notre guide utilisateur

Un outil conçu pour vous simplifier la vie.

Ouvrir le guide

Un accompagnement sur mesure

De la modification de plans au design d’intérieur, nous vous guidons à chaque étape.

Découvrir nos services

Détails supplémentaires

Estimation

Spécifications générales

Surface aménagée totale
3392 pi²
Rez-de-chaussée
1434 pi²
Étage
524 pi²
Sous-sol
1434 pi²
Largeur
72'0"
Profondeur
48'0"
Hauteur dessus fondations au faite
34'9"
Murs extérieurs
2 X 6
Murs extérieurs
2 X 6
Sous-sol aménagé + sortie extérieure (Rez-de-jardin)
Code Entrepreneur
I

Spécifications sur les pièces

Chambre(s)
3, 4, 5
Salle(s) de bain complète(s)
3
Demi Salle(s) de Bain
1
Type de garage
2 voitures (507 pi²)
Superficie balcon et/ou perron abrité
40 pi²

Sous-sol

Pièces
Dimensions
Plafond
Salle de bain complète
8'3" x 11'8"
~ 8'0"
Chambre à coucher
16'8" x 13'4"
~ 8'0"
Chambre à coucher
12'4" x 19'11"
~ 8'0"
Lingerie
2'8" x 1'8"
~ 8'0"
Salle utilitaire (buanderie +)
16'7" x 11'8"
~ 8'0"
Salle de séjour
21'8" x 15'0"
~ 8'0"

Rez-de-chaussée

Pièces
Dimensions
Plafond
Salle de bain complète
11'8" x 12'0"
~ 8'0"
Cuisine
12'8" x 13'4"
~ 8'0"
Salle à manger
12'8" x 13'4"
~ 8'0"
Salle de séjour
21'8" x 15'0"
N/D
Chambre à coucher
14'0" x 12'0"
~ 8'0"
Lingerie
4'8" x 1'4"
~ 8'0"
Entrée ou vestibule
7'4" x 8'0"
~ 8'0"
Garage
20'8" x 22'0"
~ 8'0"
Patio
31'2" x 8'2"
N/D
Patio
8'2" x 12'10"
N/D
Perron
10'0" x 4'0"
N/D
Demie salle de bain ou coin toilette
6'2" x 8'0"
~ 8'0"

Étage

Pièces
Dimensions
Plafond
Chambre à coucher
12'8" x 26'8"
~ 8'0"
Balcon
8'8" x 5'0"
N/D

Magnifique maison 4, 5 chambres, aménagées sur 3 étages, garage couble, grande terrasse

Il devient effectivement particulier de qualifier cette maison imposante de « chalet ». C’est tout simplement que l’aménagement intérieur, comme l’extérieur, sont tout à fait conçus dans le but de maximiser la vue vers le panorama, peu importe la pièce de la maison.

Ainsi, que nous soyons dans les salles de séjour du rez-de-chaussée ou du sous-sol, dans n’importe quelle chambre, dans la cuisine ( aménagée avec îlot pour cuisiner avec vue ) ou dans la salle à manger, il nous est toujours possible de percevoir le panorama et ce, à travers une fenestration plus que généreuse.
Que dire de cette salle de séjour du rez-de-chaussée, se rapprochant davantage du format d’une salle familiale, qui offre un aménagement permettant une vue panoramique en simultané avec une vue sur le foyer des mieux localisés.

Seront aussi des plus appréciés, la présence de 4 très grandes chambres ( suggérant toutes des lits doubles ), les 3 ½ salles de bain réparties sur 3 niveaux de planchers, un espace rangement extérieur fort intéressant aménagé sous un autre espace attrayant parce que couvert d’une toiture et enveloppé de moustiquaire, toujours combien pertinent dans ces lieux où fréquemment le plan d’eau et les moustiques se voisinent…

Éléments distinctifs

Secteur activités remarquable avec foyer, grande salle de séjour, plafond cathédrale, salle à manger en solarium et cuisine avec îlot-lunch central de très bon format. Suite des maîtres prévue au rez-de-chaussée et avec balcon privé.
Abri-moustiquaire avec rangement fermé au-dessous. Cave à vin aménagée au sous-sol.

Particularité(s) du plan

Abri moustiquaire, Foyer, Mezzanine, Ilôt, Garage latéral, Vue paronamique, Aire ouverte, Suite d'invités, Suite des maîtres à l'étage

Style(s) architectural du plan

Cape Cod, Champêtre, Traditionnelle, Farmhouse, Vacances, bordure de lac, Américain, Ranch, Chalet

Plans similaires
Logo Dessins Drummond image Dessins Drummond
Le modèle Cerrito est protégé par la loi sur les droits d'auteur.

Les illustrations présentées peuvent différer du plan détaillé que vous recevrez, car ces derniers sont régulièrement ajustés afin de respecter les normes de construction en vigueur.

En savoir plus

Une question ou un commentaire sur ce plan ?

Information de contact

Votre demande

Ajouter vos images ou photos

Pour ajouter une ou des photos, veuillez cliquer ou glisser vos fichiers dans la zone ci-bas. Vous pouvez ajouter jusqu'à huit photos JPG ou JPEG. Cette opération n'est pas obligatoire.

Désolé, votre navigateur ne supporte pas l'envoi de fichier.