Vue avant - MODÈLE DE BASE - Chalet ou maison champêtre, 2 à 4 chambres, carport, mezzanine, cathédral, espace boni à aménager - Celeste 2

Vue avant - MODÈLE DE BASE

Rez-de-chaussée - Chalet ou maison champêtre, 2 à 4 chambres, carport, mezzanine, cathédral, espace boni à aménager - Celeste 2

Rez-de-chaussée

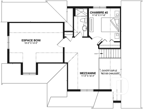
Étage - Chalet ou maison champêtre, 2 à 4 chambres, carport, mezzanine, cathédral, espace boni à aménager - Celeste 2

Étage

Élévation arrière - Celeste 2

Élévation arrière

Celeste 2 Plan de maison 3507-V1

Chalet ou maison champêtre, 2 à 4 chambres, carport, mezzanine, cathédral, espace boni à aménager

À partir de

1440$

Fiche technique sommaire Plan #3507-V1
Estimation ($) 375,166$
Surface habitable 1348 pi² Chambre 2, 3, 4
Salle de Bain 2 Salle d'eau -
Fondation incluse Vide sanitaire Garage Abri d'auto
Largeur 45'11" Profondeur 34'0"

Besoin d’aide ?

Nos experts vous guident dans votre projet grâce à plus de 30 bureaux au Québec.

Joignez-nous

Consultez notre guide utilisateur

Un outil conçu pour vous simplifier la vie.

Ouvrir le guide

Besoin d’une assurance habitation ?

Pour obtenir votre prix, c’est juste ici

Obtenir une soumission

Détails supplémentaires

Estimation

Spécifications générales

Surface aménagée totale
1348 pi²
Rez-de-chaussée
871 pi²
Étage
477 pi²
Largeur
45'11"
Profondeur
34'0"
Hauteur dessus fondations au faite
26'4"
Murs extérieurs
2 X 6
Murs extérieurs
2 X 6
Autres fondations disponibles (des frais peuvent s'appliquer)
Sous-sol aménageable + sortie extérieure (Rez-de-jardin), Dalle flottante, Dalle monolithique
Code Entrepreneur
C

Spécifications sur les pièces

Chambre(s)
2, 3, 4
Salle(s) de bain complète(s)
2
Demi Salle(s) de Bain
-
Type de garage
Abri d'auto (0 pi²)
Superficie balcon et/ou perron abrité
149 pi²

Rez-de-chaussée

Pièces
Dimensions
Plafond
Cuisine
12'2" x 14'4"
~ 8'0"
Salle de séjour
12'6" x 15'0"
~ 8'0"
Entrée ou vestibule
5'0" x 3'6"
~ 8'0"
Salle de bain complète
14'6" x 7'8"
~ 8'0"
Chambre à coucher
11'0" x 14'0"
~ 8'0"
Rangement
5'2" x 3'0"
N/D
Abri d'auto
15'6" x 25'8"
N/D
Galerie
16'2" x 4'0"
N/D
Galerie
4'0" x 21'0"
N/D
Salle de lavage
5'0" x 2'8"
~ 8'0"

Étage

Pièces
Dimensions
Plafond
Salle de douche
4'10" x 10'0"
~ 8'0"
Chambre à coucher
11'0" x 11'8"
~ 8'0"
Mezzanine
11'0" x 18'4"
~ 8'0"
Lingerie
3'0" x 1'8"
~ 8'0"
Espace boni aménageable
18'0" x 14'0"
~ 8'0"

Cottage d'influence Scandinave, attrayant et astucieux avec 2 à 4 chambres

Conçu à partir du modèle 3507, celui-ci se veut une version d’approche nord-ouest américaine proposant à la fois l’élimination du sous-sol et un gain significatif de 4’ de plus en largeur et de 2’ de plus en profondeur. Aussi que dire de ce « look » !

Ici donc, on élimine le sous-sol que l’on remplace en partie par un agrandissement de la maison et surtout par l’ajout d’un abri d’auto au-dessus duquel on s’assure un espace boni suffisamment grand pour y loger rangement, chambre additionnelle, cinéma maison ou tout autre espace convoité.

Au rez-de-chaussée, tout comme pour le plan 3507 dont il origine, on retrouve un secteur activités entièrement ouvert avec plafond cathédrale et fenêtrage abondant à la salle de séjour, une salle à manger bien intégrée à la cuisine, une chambre des maîtres de bon format et une salle de bain complète incluant un coin buanderie alors qu’à l’étage, on constate la présence d’une mezzanine qu’il sera toujours possible de convertir en chambre 3 ainsi que d’une chambre 2 et une salle de douche avec douche de bon format. Évidemment, et comme mentionné précédemment, on apprécie ce vaste espace boni bien isolé, situé au-dessus de l’abri d’auto et qu’il sera possible de convertir selon vos besoins les plus particuliers.

Éléments distinctifs

Chambre des maîtres et buanderie prévues au rez-de-chaussée. Mezzanine ou 3è chambre à l'étage. Espace boni aménageable au desssus de l'abri d'auto.

Particularité(s) du plan

Boudoir / Vivoir, Salle de lavage au rez-de-chaussée, Espace boni aménageable, Bureau / Salle étude, Aire ouverte, Galerie 2-3 côtés, Bain et douche séparés, Lavabo double

Style(s) architectural du plan

Scandinave, Nordique, Américain, Cape Cod, A-Frame, Rustique, Traditionnelle, Champêtre, Transitionnel, En montagne

Plans similaires
Logo Dessins Drummond image Dessins Drummond
Le modèle Celeste 2 est protégé par la loi sur les droits d'auteur.

Les illustrations présentées peuvent différer du plan détaillé que vous recevrez, car ces derniers sont régulièrement ajustés afin de respecter les normes de construction en vigueur.

En savoir plus

Une question ou un commentaire sur ce plan ?

Information de contact

Votre demande

Ajouter vos images ou photos

Pour ajouter une ou des photos, veuillez cliquer ou glisser vos fichiers dans la zone ci-bas. Vous pouvez ajouter jusqu'à huit photos JPG ou JPEG. Cette opération n'est pas obligatoire.

Désolé, votre navigateur ne supporte pas l'envoi de fichier.