Connexion
À partir de 1440$
Plan de chalet de type A-frame ( à toit en A ), superbe luminosité, plancher convivial, mezzanine à l'étage
| Fiche technique sommaire | Plan #3938 | ||
|---|---|---|---|
| Estimation ($) | 378,088$ | ||
| Surface habitable | 1301 pi² | Chambre | 1, 2, 3 |
| Salle de Bain | 2 | Salle d'eau | - |
| Fondation incluse | Sous-sol aménageable | Garage | - |
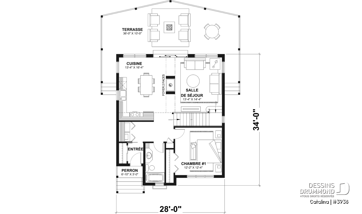
| Largeur | 28'0" | Profondeur | 34'0" |
Nos experts vous guident dans votre projet grâce à plus de 30 bureaux au Québec.
Joignez-nousLes photos de cette maison peuvent différer du plan d'origine, duquel elles proviennent. Pour toute modification, veuillez contacter l’un de nos 30 bureaux.
Ce plan de chalet 4 saisons de style rustique a été pensé pour les amoureux de la nature qui souhaitent profiter pleinement de leur environnement en toute période de l’année. Avec son design chaleureux et sa fenestration abondante orientée vers le panorama, il offre une vue imprenable sur le paysage environnant, qu’il s’agisse d’un lac, d’une montagne ou d’une forêt. Son allure authentique et intemporelle en fait un refuge idéal autant pour les vacances que pour la vie quotidienne.
Dès l’entrée, le vestibule accueillant donne le ton avec son garde-robe pratique et son coin laveuse-sécheuse intégré, parfait pour les retours de plein air. Le cœur de la maison se dévoile ensuite dans la salle de séjour spectaculaire, où un plafond cathédrale atteignant 25’7’’ apporte une impression d’espace grandiose et baigne l’intérieur de lumière naturelle.
La cuisine conviviale séduit par son chaleureux coin dînette, semi-ouverte sur le salon. Cet espace favorise les moments partagés, que ce soit pour un repas en famille, un brunch entre amis ou une soirée festive. L’atmosphère est sublimée par un foyer central spectaculaire, ouvert sur deux étages, qui devient le véritable cœur du chalet. Il rassemble les occupants dans une ambiance "cozy", idéale pour les soirées d’hiver comme pour les soirées d’été.
Le rez-de-chaussée accueille également la chambre principale, un véritable havre de paix. Avec sa salle de bain attenante, elle combine confort et intimité, permettant aux propriétaires de profiter d’un espace privé tout en restant proche des aires de vie principales.
À l’étage, on retrouve deux chambres secondaires lumineuses, parfaites pour la famille ou les invités. Une salle de bain complète ainsi qu’une mezzanine complètent cet étage. Cet espace supplémentaire peut être aménagé en coin lecture, bureau ou espace détente avec vue sur le panorama extérieur et le foyer central.
Le sous-sol non fini constitue une toile blanche à personnaliser selon vos besoins. Il peut facilement accueillir une salle familiale, des chambres additionnelles, une salle de jeux pour les enfants ou encore un espace gym. Sa flexibilité permet à la maison d’évoluer avec les besoins changeants de la famille.
En alliant style rustique, espaces lumineux et design fonctionnel, ce plan de chalet 4 saisons avec mezzanine et foyer central s’impose comme un choix idéal pour ceux qui rêvent d’un refuge à la fois chaleureux, moderne et en parfaite harmonie avec la nature.
Plan de Chalet 4 saisons de style rustique, conçu pour profiter pleinement de la nature tout au long de l’année.
Design lumineux avec une fenestration abondante orientée vers le panorama, offrant une vue imprenable en toute saison.
Vestibule accueillant à l’entrée principale avec garde-robe pratique, adjacent à un coin laveuse et sécheuse.
Salle de séjour spectaculaire avec plafond cathédrale atteignant 25’-7’’, créant une atmosphère grandiose et aérée.
La cuisine conviviale avec son coin dînette, semi-ouverte sur le salon, crée un espace chaleureux où il fait bon se retrouver en famille ou entre amis.
Le tout est sublimé par un foyer central spectaculaire, ouvert sur deux étages, qui devient le cœur de la maison et invite à la détente.
Chambre des maîtres au rez-de-chaussée, offrant tranquillité et confort, avec une salle de bain complète attenante.
À l’étage : deux chambres secondaires idéales pour la famille ou les invités, une salle de bain complète et une mezzanine lumineuse, parfaite comme coin lecture ou espace détente.
Sous-sol non fini offrant un vaste potentiel d’aménagement selon vos besoins : salle familiale, chambres additionnelles, salle de jeux ou espace gym.
Plafond cathédrale, Foyer, Suite des maîtres au rdc, Salle de lavage au rez-de-chaussée, Mezzanine, Aire ouverte, Vue paronamique, Plafond en pente, Vestibule
Chalet, Vacances, bordure de lac, Chalet de ski, Rustique, A-Frame, Américain, Chalet récréatif, Moderne rustique, Scandinave, En montagne
Les illustrations présentées peuvent différer du plan détaillé que vous recevrez, car ces derniers sont régulièrement ajustés afin de respecter les normes de construction en vigueur.
En savoir plusNos estimations de coûts sont des moyennes provinciales, et sont là pour vous donner un "approximatif" de la valeur de nos modèles, construits avec un entrepreneur. Ce faisant, ils peuvent varier de +/- 30% selon votre région, votre entrepreneur et vos choix de matériaux.
Si vous choisissez l'auto-construction, vous pourrez économiser de 10% à 30% de notre estimation selon votre implication et compétence.
Comme nous ne construisons pas, nous nous dégageons de toutes responsabilités à l'égard des estimations indiquées. De plus, prendre note que nos estimations sont modifiées sans préavis, régulièrement. Il est donc de votre responsabilité de valider auprès d'entrepreneurs de votre région en les questionnant sur ses délais de livraison et coûts de construction réels versus nos estimations ce, avant l'achat d'un plan, car ce dernier n'est ni échangeable ni remboursable.
Avec un entrepreneur
Cette mention sur notre site signifie que nos estimations sont basées sur des constructions clé-en-main, donc gérés de A à Z par des entrepreneurs compétents et qualifiés. Elles incluent et excluent les éléments prévus au tableau ci-haut. Ne pouvant prédire les choix que vous ferez avec votre entrepreneur, nous considérons qu'il utilisera des matériaux de qualité courante (pas le plus cher, pas le moins cher).
Auto-Construction
Signifie que vous gérez vous-même votre projet tout en réalisant certains travaux comme la pose de l'isolant, du gypse, du pare-vapeur et l'application de la peinture, pour n'en nommer que quelques-uns. Selon votre degré d'implication, vous pourriez sauver jusqu'à 30% du coût total de construction, mais rarement plus, à moins que vous soyez un professionnel de la construction!
Extérieur
Ci-bas vous retrouverez les détails de ce qui est inclus et exclus dans nos estimations, en lien avec les images extérieures telles que présentées sur notre site.
Intérieur
Ci-bas vous retrouverez les détails de ce qui est inclus et exclus dans les estimations, en lien avec les images intérieures telles que présentées sur notre site.
Besoin d'aide?
Consultez l'un de nos 30 bureaux si vous souhaitez plus d'information sur nos estimations ou afin d'obtenir un prix plus précis selon vos besoins et votre région. Pour de plus ample information vous pouvez nous appeler ou écrire par courriel: 1-800-567-1413 ou [email protected]
Nos estimations de coûts sont des moyennes provinciales, et sont là pour vous donner un "approximatif" de la valeur de nos garages, construits avec un entrepreneur. Ce faisant, ils peuvent varier de +/- 30% selon votre région, votre entrepreneur et vos choix de matériaux.
Si vous choisissez l'auto-construction, vous pourrez économiser de 10% à 30% de notre estimation selon votre implication et compétence.
Comme nous ne construisons pas, nous nous dégageons de toutes responsabilités à l'égard des estimations indiquées. De plus, prendre note que nos estimations sont modifiées sans préavis, régulièrement. Il est donc de votre responsabilité de valider auprès d'entrepreneurs de votre région en les questionnant sur ses délais de livraison et coûts de construction réels versus nos estimations ce, avant l'achat d'un plan, car ce dernier n'est ni échangeable ni remboursable.
Avec un entrepreneur
Cette mention sur notre site signifie que nos estimations sont basées sur des constructions clé-en-main, donc gérés de A à Z par des entrepreneurs compétents et qualifiés. Elles incluent et excluent les éléments prévus au tableau ci-haut. Ne pouvant prédire les choix que vous ferez avec votre entrepreneur, nous considérons qu'il utilisera des matériaux de qualité courante (pas le plus cher, pas le moins cher).
Auto-Construction
Signifie que vous gérez vous-même votre projet tout en réalisant certains travaux comme la pose de l'isolant, du gypse, du pare-vapeur et l'application de la peinture, pour n'en nommer que quelques-uns. Selon votre degré d'implication, vous pourriez sauver jusqu'à 30% du coût total de construction, mais rarement plus, à moins que vous soyez un professionnel de la construction!
Extérieur
Ci-bas vous retrouverez les détails de ce qui est inclus et exclus dans nos estimations, en lien avec les images extérieures telles que présentées sur notre site.
Intérieur
Ci-bas vous retrouverez les détails de ce qui est inclus et exclus dans les estimations de nos plans de garage, tels que présentés sur notre site.
Besoin d'aide?
Consultez l'un de nos 30 bureaux si vous souhaitez plus d'information sur nos estimations ou afin d'obtenir un prix plus précis selon vos besoins et votre région.
Les coûts approximatifs des matériaux indiqués sur notre site internet sont des moyennes provinciales qui peuvent varier jusqu’à 30% et plus selon la région, la saison de construction et vos choix de matériaux. Ils sont basés sur l'utilisation de matériaux de qualité courante, que la plupart des entrepreneurs utilisent. De plus ils peuvent changer à tout moment, sans préavis, compte tenu de l’important fluctuation des prix des matériaux, depuis 2020.
Nos estimations excluent les taxes, les raccords municipaux, les frais reliés à l'électricité, le chauffage, la main d'œuvre, le terrain, l'excavation et la fondation (précisée dans la fiche détaillée du plan choisi à la ligne « Type de fondation »).
La fondation précisée à cette ligne est incluse dans le plan que vous recevrez, dans le prix du plan ainsi que dans l'estimation du coût de construction SAUF dans le cas d'un sous-sol aménagé. La finition d'un sous-sol aménagé n'est JAMAIS incluse dans notre estimation sauf si avis contraire précisé dans la description du plan et/ou dans la section élément distinctif, sur la page du plan. Un sous-sol aménageable est un sous-sol non-fini, à finir plus tard, selon vos besoins.
Veuillez noter que plusieurs types de fondation additionnels sont disponibles, certains moyennant un frais. Vous pourrez sélectionner le type de fondation désiré, dans le bon de commande en ligne.
Si le type de fondation que vous souhaitez ne se trouve pas dans la liste des autres fondations disponibles, veuillez contacter notre service à la clientèle afin d'obtenir un estimé de notre département de modification de plan, ou simplement compléter le formulaire de demande de modification suivant : https://dessinsdrummond.com/formulaire-modification-de-plan-en-ligne et vous recevrez votre estimation gratuite dans les 2 à 4 jours ouvrables, approx..
Le type de fondation précisé à cette ligne n'est pas inclus dans l'estimé des matériaux approximatif.
Veuillez noter que plusieurs types de fondation additionnels sont aussi disponibles. Vous pourrez sélectionner le type de fondation désiré, dans le bon de commande en ligne, ou nous joindre pour information.
Espace boni aménageable
L'espace boni aménageable est généralement prévu au-dessus du garage et il est accessible de la maison. Comme il est prévu aménageable, il pourra devenir un bureau, un espace buanderie, une salle de bain, un coin bibliothèque ou même une chambre additionnelle pour laquelle les propriétaires devront s'assurer d'avoir une fenêtre conforme aux normes en vigueur. De plus, la finition de cette espace boni est toujours INCLUSE dans nos estimation du coût de construction, sauf si avis contraire dans les sections « Description et/ou Éléments descriptifs » de la page du plan.
Rangement boni
Souvent localisé au-dessus du garage, le rangement boni est utilisé uniquement comme rangement et il est généralement accessible du garage via un escalier escamotable. De plus, la finition de ce rangement boni est toujours INCLUSE dans nos estimation du coût de construction, sauf si avis contraire dans les sections « Description et/ou Éléments descriptifs » de la page du plan.
Plan de chalet de type A-frame ( à toit en A ), superbe luminosité, plancher convivial, mezzanine à l'étage