Vue avant - MODÈLE DE BASE - Plan de chalet, 3 chambres, 3.5 salles de bain, suite pour invités au-dessus du garage double - Carnéade

Vue avant - MODÈLE DE BASE

Rez-de-chaussée - Plan de chalet, 3 chambres, 3.5 salles de bain, suite pour invités au-dessus du garage double - Carnéade

Rez-de-chaussée

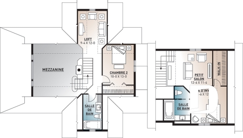
Étage - Plan de chalet, 3 chambres, 3.5 salles de bain, suite pour invités au-dessus du garage double - Carnéade

Étage

Élévation arrière - Carnéade

Élévation arrière

Version couleur no. 1 - Vue avant - Carnéade

Version couleur no. 1 - Vue avant

Version couleur no. 2 - Vue avant - Carnéade

Version couleur no. 2 - Vue avant

Version couleur no. 3 - Vue avant - Carnéade

Version couleur no. 3 - Vue avant

Version couleur no. 4 - Vue avant - Carnéade

Version couleur no. 4 - Vue avant

Carnéade Plan de maison 3931

Plan de chalet, 3 chambres, 3.5 salles de bain, suite pour invités au-dessus du garage double

À partir de

1765$

Fiche technique sommaire Plan #3931
Estimation ($) 683,798$
Surface habitable 2219 pi² Chambre 3, 4
Salle de Bain 3 Salle d'eau 1
Fondation incluse Sous-sol aménageable + sortie extérieure (Rez-de-jardin) Garage 2 voitures
Largeur 67'0" Profondeur 40'0"

Besoin d’aide ?

Nos experts vous guident dans votre projet grâce à plus de 30 bureaux au Québec.

Joignez-nous

Consultez notre guide utilisateur

Un outil conçu pour vous simplifier la vie.

Ouvrir le guide

Un accompagnement sur mesure

De la modification de plans au design d’intérieur, nous vous guidons à chaque étape.

Découvrir nos services

Détails supplémentaires

Estimation

Spécifications générales

Surface aménagée totale
2219 pi²
Rez-de-chaussée
1232 pi²
Étage
987 pi²
Largeur
67'0"
Profondeur
40'0"
Hauteur dessus fondations au faite
35'4"
Murs extérieurs
2 X 6
Murs extérieurs
2 X 6
Sous-sol aménageable + sortie extérieure (Rez-de-jardin)
Autres fondations disponibles (des frais peuvent s'appliquer)
Dalle flottante, Vide sanitaire, Dalle monolithique
Code Entrepreneur
F

Spécifications sur les pièces

Chambre(s)
3, 4
Salle(s) de bain complète(s)
3
Demi Salle(s) de Bain
1
Type de garage
2 voitures (567 pi²)
Superficie balcon et/ou perron abrité
48 pi²

Rez-de-chaussée

Pièces
Dimensions
Plafond
Cuisine
14'8" x 12'8"
~ 8'0"
Salle de séjour/salle à manger
16'0" x 22'8"
~ 17'2"
Garage
21'8" x 23'8"
~ 8'6"
Garde-robe
6'8" x 2'6"
~ 8'0"
Terrasse
8'0" x 24'0"
N/D
Perron
12'0" x 4'0"
N/D
Demie salle de bain ou coin toilette
6'10" x 3'2"
~ 8'0"
Suite des maîtres
14'8" x 12'0"
~ 8'0"
Salle utilitaire (buanderie +)
5'4" x 6'9"
~ 8'0"
Rangement
2'4" x 3'2"
~ 8'0"
Lingerie
1'4" x 2'2"
~ 8'0"
Lingerie
1'0" x 2'0"
~ 8'0"

Étage

Pièces
Dimensions
Plafond
Salle de bain complète
6'0" x 11'4"
~ 8'0"
Mezzanine
9'4" x 12'0"
~ 8'0"
Chambre à coucher
10'0" x 13'0"
~ 8'0"
Chambre à coucher
11'6" x 12'0"
~ 8'0"
Coin lecture/ordinateur
12'6" x 11'4"
~ 8'0"

Plan de chalet 3 à 4 chambres, incluant une suite pour invités

Une fois de plus, Dessins Drummond se veut à l’écoute de sa clientèle avec cette variante intéressante d’un « chalet » fort populaire en y ajoutant un garage double et encore plus d’espace logeable. À vous de constater.

L’ajout de ce volume garage double au plan de base no.2939
( que vous pouvez voir sur le site dessinsdrummond.com ) permet donc l’obtention de pieds carrés favorisant l’aménagement d’un vestibule confortable, d’une buanderie indépendante, d’une suite chambre des maîtres avec salle de bain privée et grande garde-robe, d’un espace salle de séjour / salle à manger plus qu’enviable et d’une cuisine avec îlot central et comptoir lunch remarquable.

À l’étage, on profite d’un peu plus d’espace à la chambre seconde, au boudoir ainsi qu’à la salle de bain mais c’est surtout au-dessus du garage que l’on remarque une suite qui sera assurément fort prisée des visiteurs qui s’y sentiront un peu chez eux avec leur propre chambre à laquelle se greffe une salle de bain ainsi qu’une salle de séjour juste pour eux. De quoi faire l’envie de bien des familles appréciant prendre soin de leur visite.

Éléments distinctifs

Assurément cette suite chambre d'invités, le plafond cathédrale au secteur salle de séjour/salle à manger et cette belle grande galerie latérale couverte.

Particularité(s) du plan

Foyer, Plafond cathédrale, Mezzanine, Aire ouverte, Salle de lavage au rez-de-chaussée, Vue paronamique, Garage latéral, Ilôt, Plafond en pente, Suite d'invités, Suite des maîtres à l'étage, Terrasse abritée, Walk-in ch. maîtres

Style(s) architectural du plan

Champêtre, Vacances, bordure de lac, Américain, A-Frame, Chalet de ski, En montagne, Chalet, Farmhouse

Plans similaires
Logo Dessins Drummond image Dessins Drummond
Le modèle Carnéade est protégé par la loi sur les droits d'auteur.

Les illustrations présentées peuvent différer du plan détaillé que vous recevrez, car ces derniers sont régulièrement ajustés afin de respecter les normes de construction en vigueur.

En savoir plus

Une question ou un commentaire sur ce plan ?

Information de contact

Votre demande

Ajouter vos images ou photos

Pour ajouter une ou des photos, veuillez cliquer ou glisser vos fichiers dans la zone ci-bas. Vous pouvez ajouter jusqu'à huit photos JPG ou JPEG. Cette opération n'est pas obligatoire.

Désolé, votre navigateur ne supporte pas l'envoi de fichier.