Vue avant - MODÈLE DE BASE - Plan pour bord de l'eau, 5 chambres, 3.5 salles de bain, balcon observatoire, abri moustiquaire, 2 salons - Bay 3

Vue avant - MODÈLE DE BASE

Étage 1 - Plan pour bord de l'eau, 5 chambres, 3.5 salles de bain, balcon observatoire, abri moustiquaire, 2 salons - Bay 3

Étage 1

Étage 2 - Plan pour bord de l'eau, 5 chambres, 3.5 salles de bain, balcon observatoire, abri moustiquaire, 2 salons - Bay 3

Étage 2

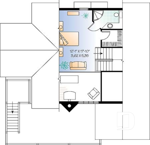
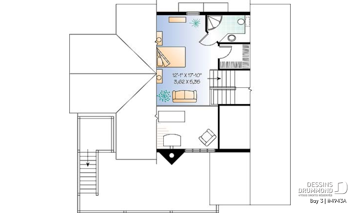
Étage 3 - Plan pour bord de l'eau, 5 chambres, 3.5 salles de bain, balcon observatoire, abri moustiquaire, 2 salons - Bay 3

Étage 3

Élévation arrière - Bay 3

Élévation arrière

Bay 3 Plan de maison 4943A

Plan pour bord de l'eau, 5 chambres, 3.5 salles de bain, balcon observatoire, abri moustiquaire, 2 salons

À partir de

1765$

Fiche technique sommaire Plan #4943A
Estimation ($) 739,615$
Surface habitable 2392 pi² Chambre 4, 5
Salle de Bain 3 Salle d'eau 1
Fondation incluse Pilotis Garage Abri d'auto
Largeur 39'8" Profondeur 36'8"

Besoin d’aide ?

Nos experts vous guident dans votre projet grâce à plus de 30 bureaux au Québec.

Joignez-nous

Consultez notre guide utilisateur

Un outil conçu pour vous simplifier la vie.

Ouvrir le guide

Un accompagnement sur mesure

De la modification de plans au design d’intérieur, nous vous guidons à chaque étape.

Découvrir nos services

Détails supplémentaires

Estimation

Spécifications générales

Surface aménagée totale
2392 pi²
Étage 1
967 pi²
Étage 2
1076 pi²
Étage 3
349 pi²
Largeur
39'8"
Profondeur
36'8"
Hauteur dessus fondations au faite
40'5"
Murs extérieurs
2 X 6
Murs extérieurs
2 X 6
Code Entrepreneur
F

Spécifications sur les pièces

Chambre(s)
4, 5
Salle(s) de bain complète(s)
3
Demi Salle(s) de Bain
1
Type de garage
Abri d'auto (0 pi²)
Superficie balcon et/ou perron abrité
547 pi²

Étage 1

Pièces
Dimensions
Plafond
Salle de bain complète
6'0" x 8'0"
~ 8'0"
Chambre à coucher
11'4" x 11'10"
~ 8'0"
Chambre à coucher
11'2" x 10'8"
~ 8'0"
Chambre à coucher
11'4" x 10'8"
~ 8'0"
Garde-robe
4'8" x 2'0"
~ 8'0"
Salle familiale
17'8" x 13'0"
~ 8'0"
Lingerie
2'0" x 1'4"
~ 8'0"
Salle utilitaire (buanderie +)
5'0" x 7'6"
~ 8'0"
Perron
9'0" x 30'6"
N/D

Étage 2

Pièces
Dimensions
Plafond
Salle à manger
12'0" x 11'2"
~ 12'0"
Cuisine
14'2" x 7'8"
~ 8'0"
Salle de séjour
17'8" x 18'8"
~ 17'4"
Suite des maîtres
11'4" x 15'4"
~ 8'0"
Demie salle de bain ou coin toilette
5'0" x 7'4"
~ 8'0"
Rangement
3'0" x 1'6"
~ 8'0"
Perron
23'0" x 12'0"
N/D

Étage 3

Pièces
Dimensions
Plafond
Chambre à coucher
12'1" x 17'10"
~ 8'0"
Observatoire
7'0" x 7'0"
N/D

Plan de grande maison style vacance au bord de mer avec 5 chambres, 3.5 salles de bain, foyer, mezzanine, 2 terrasses

.

Éléments distinctifs

Grand balcon couvert au 1er plancher, grand balcon non-couvert au 2ème plancher, fenestration abondante et spéciale, éviers double dans salles de bain de l'étage 1 et salle de bain des maîtres, balcon observatoire, jeux de volume au plafond. Plafond cathédral. Foyer.

Particularité(s) du plan

Abri moustiquaire, Foyer, Mezzanine, Vue paronamique, Suite des maîtres à l'étage, Suite d'invités

Style(s) architectural du plan

Chalet, Vacances, bordure de lac, Rustique, Américain, Cape Cod, Floride, Traditionnelle, Moderne

Plans similaires
Logo Dessins Drummond image Dessins Drummond
Le modèle Bay 3 est protégé par la loi sur les droits d'auteur.

Les illustrations présentées peuvent différer du plan détaillé que vous recevrez, car ces derniers sont régulièrement ajustés afin de respecter les normes de construction en vigueur.

En savoir plus

Une question ou un commentaire sur ce plan ?

Information de contact

Votre demande

Ajouter vos images ou photos

Pour ajouter une ou des photos, veuillez cliquer ou glisser vos fichiers dans la zone ci-bas. Vous pouvez ajouter jusqu'à huit photos JPG ou JPEG. Cette opération n'est pas obligatoire.

Désolé, votre navigateur ne supporte pas l'envoi de fichier.