Vue avant - MODÈLE DE BASE - Plan de maison à étage, garage, 3 à 4 chambres, coin ordinateur à la cuisine, salle de lavage au 1er - Archibald

Vue avant - MODÈLE DE BASE

Rez-de-chaussée - Plan de maison à étage, garage, 3 à 4 chambres, coin ordinateur à la cuisine, salle de lavage au 1er - Archibald

Rez-de-chaussée

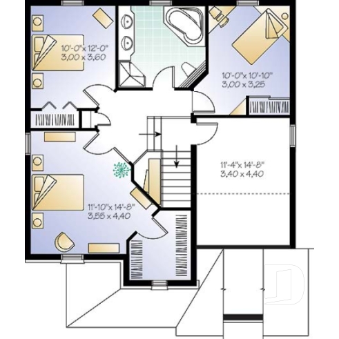
Étage - Plan de maison à étage, garage, 3 à 4 chambres, coin ordinateur à la cuisine, salle de lavage au 1er - Archibald

Étage

Élévation arrière - Archibald

Élévation arrière

Archibald Plan de maison 3408

Plan de maison à étage, garage, 3 à 4 chambres, coin ordinateur à la cuisine, salle de lavage au 1er

À partir de

1600$

Fiche technique sommaire Plan #3408
Estimation ($) 434,179$
Surface habitable 1628 pi² Chambre 3, 4
Salle de Bain 2 Salle d'eau -
Fondation incluse Sous-sol aménageable Garage 1 voiture
Largeur 32'0" Profondeur 38'0"

Besoin d’aide ?

Nos experts vous guident dans votre projet grâce à plus de 30 bureaux au Québec.

Joignez-nous

Consultez notre guide utilisateur

Un outil conçu pour vous simplifier la vie.

Ouvrir le guide

Un accompagnement sur mesure

De la modification de plans au design d’intérieur, nous vous guidons à chaque étape.

Découvrir nos services

Détails supplémentaires

Estimation

Spécifications générales

Surface aménagée totale
1628 pi²
Rez-de-chaussée
816 pi²
Étage
812 pi²
Largeur
32'0"
Profondeur
38'0"
Hauteur dessus fondations au faite
34'4"
Murs extérieurs
2 X 6
Murs extérieurs
2 X 6
Sous-sol aménageable
Autres fondations disponibles (des frais peuvent s'appliquer)
Dalle flottante, Vide sanitaire, Dalle monolithique
Code Entrepreneur
D

Spécifications sur les pièces

Chambre(s)
3, 4
Salle(s) de bain complète(s)
2
Demi Salle(s) de Bain
-
Type de garage
1 voiture (286 pi²)
Superficie balcon et/ou perron abrité
98 pi²

Rez-de-chaussée

Pièces
Dimensions
Plafond
Salle de douche
6'8" x 6'6"
~ 8'0"
Cuisine
12'0" x 12'10"
~ 8'0"
Salle à manger
11'4" x 12'0"
~ 8'0"
Salle de séjour
15'4" x 16'2"
~ 8'0"
Entrée ou vestibule
5'2" x 5'0"
~ 8'0"
Garde-robe
1'10" x 5'0"
~ 8'0"
Salle de lavage
3'0" x 6'0"
~ 8'0"
Garage
11'4" x 22'10"
~ 11'0"
Perron abrité
14'0" x 7'0"
N/D
Terrasse
8'0" x 5'0"
N/D

Étage

Pièces
Dimensions
Plafond
Chambre à coucher
11'10" x 14'8"
~ 8'0"
Walk-in
7'0" x 8'4"
~ 8'0"
Chambre à coucher
10'0" x 12'0"
~ 8'0"
Garde-robe
5'8" x 2'0"
~ 8'0"
Chambre à coucher
10'0" x 10'10"
~ 8'0"
Garde-robe
5'0" x 2'0"
~ 8'0"
Espace boni aménageable
11'4" x 14'8"
~ 10'2"
Lingerie
1'6" x 2'0"
~ 8'0"
Salle de bain complète
10'0" x 9'6"
~ 8'0"

Plan de maison 3 chambres + espace boni, et garage!

Conçue à partir du modèle #2461, elle fut tout simplement agrandie de 2 pieds vers l’arrière de sorte à suggérer des espaces plus confortables dans cette partie de la maison.

On obtient ainsi, au rez-de-chaussée, une salle à manger encore plus logeable, un espace cuisine-dînette avec comptoir travail fort appréciable, un rangement des plus enviables sans oublier une salle de douche de plus grand format.

À l’étage, cet agrandissement se veut significatif pour les deux chambres secondaires alors que la salle de bain propose tout le confort d’une maison plus haut de gamme. Il ne faudrait surtout pas oublier, mis à part cet agrandissement, que cette maison, à l’instar de celle d’origine, offre plein d’attraits supplémentaires comme une galerie avant avec espace aménageable, un vestibule tout à fait adéquat, une salle de séjour bien organisée et bien fenêtrée, une chambre des maîtres avec double portes vitrées et grande garde-robe ainsi qu’un bel espace boni, juste au-dessus du garage, que les propriétaires pourront aménager comme bon leur semblera.

Éléments distinctifs

Espace boni au dessus du garage, galerie abritée à l'avant, mezzanine, rangements, portes de service au garage, bain en coin, éviers double à la salle de bain de l'étage Espace boni intéressant au-dessus du garage. Chambre des maîtres avec garde-robe walk-in. Coin buanderie prévu au rez-de-chaussée.

Particularité(s) du plan

Espace boni aménageable, Salle de lavage au rez-de-chaussée, Comptoir-lunch, Vestibule, Bain et douche séparés, Lavabo double, Coin bureau, Plafond en pente

Style(s) architectural du plan

Européen, Champêtre, Manoirs et châteaux, Traditionnelle, Anglais

Plans similaires
Logo Dessins Drummond image Dessins Drummond
Le modèle Archibald est protégé par la loi sur les droits d'auteur.

Les illustrations présentées peuvent différer du plan détaillé que vous recevrez, car ces derniers sont régulièrement ajustés afin de respecter les normes de construction en vigueur.

En savoir plus

Une question ou un commentaire sur ce plan ?

Information de contact

Votre demande

Ajouter vos images ou photos

Pour ajouter une ou des photos, veuillez cliquer ou glisser vos fichiers dans la zone ci-bas. Vous pouvez ajouter jusqu'à huit photos JPG ou JPEG. Cette opération n'est pas obligatoire.

Désolé, votre navigateur ne supporte pas l'envoi de fichier.