Vue avant - MODÈLE DE BASE - Plan de maisons jumelées proposant deux aménagements différents au rez-de-chaussée et total de 3 chambres - Albert

Vue avant - MODÈLE DE BASE

Rez-de-chaussée - Plan de maisons jumelées proposant deux aménagements différents au rez-de-chaussée et total de 3 chambres - Albert

Rez-de-chaussée

Sous-sol - Plan de maisons jumelées proposant deux aménagements différents au rez-de-chaussée et total de 3 chambres - Albert

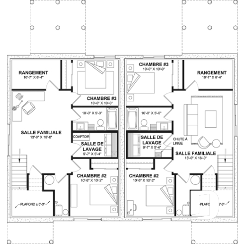
Sous-sol

Vue avant - MODÈLE DE BASE - Albert

Vue avant - MODÈLE DE BASE

Vue avant - MODÈLE DE BASE - Albert

Vue avant - MODÈLE DE BASE

Élévation arrière - Albert

Élévation arrière

Alternative - Albert

Alternative

Vue intérieure - Albert

Vue intérieure

Albert Plan de maison 3074

Plan de maisons jumelées proposant deux aménagements différents au rez-de-chaussée et total de 3 chambres

À partir de

2490$

Fiche technique sommaire Plan #3074
Estimation ($) - (Sous-sol non-fini) | 595,319$ (Sous-sol fini)
Surface habitable 3600 pi² Chambre 3, 6
Salle de Bain 4 Salle d'eau -
Fondation incluse Sous-sol aménagé Garage -
Largeur 50'0" Profondeur 36'0"

Besoin d’aide ?

Nos experts vous guident dans votre projet grâce à plus de 30 bureaux au Québec.

Joignez-nous

Consultez notre guide utilisateur

Un outil conçu pour vous simplifier la vie.

Ouvrir le guide

Besoin d’une assurance habitation ?

Pour obtenir votre prix, c’est juste ici

Obtenir une soumission

Photos du plan Albert

Les photos de cette maison peuvent différer du plan d'origine, duquel elles proviennent. Pour toute modification, veuillez contacter l’un de nos 30 bureaux.

Détails supplémentaires

Estimation

Spécifications générales

Surface aménagée totale
3600 pi²
Rez-de-chaussée
1800 pi²
Sous-sol
1800 pi²
Largeur
50'0"
Profondeur
36'0"
Hauteur dessus fondations au faite
25'9"
Murs extérieurs
2 X 6
Murs extérieurs
2 X 6
Autres fondations disponibles (des frais peuvent s'appliquer)
Sous-sol aménageable
Code Entrepreneur
ME

Spécifications sur les pièces

Chambre(s)
3, 6
Salle(s) de bain complète(s)
4
Demi Salle(s) de Bain
-
Type de garage
-
Superficie balcon et/ou perron abrité
100 pi²

Spécifications des unités

LOGEMENT 1 (GAUCHE)
LOGEMENT 2 (DROITE)
Surface aménagée totale
1800 pi²
1800 pi²
Sous-sol
900 pi²
900 pi²
Rez-de-chaussée
900 pi²
900 pi²
Largeur
25' 0"
25' 0"
Profondeur
36' 0"
36' 0"
Hauteur dessus fondations au faite
25' 9"
25' 9"
Murs extérieurs
2 X 6
2 X 6
Type de fondation
Sous-sol aménagé
Sous-sol aménagé
Chambre(s)
3
3
Salle(s) de bain
2
2
Demi Salle(s) de Bain
-
-
Type de garage
-
-
Espace boni aménageable
-
-
Rangement boni
-
-

Rez-de-chaussée

Pièces
Dimensions
Plafond
Perron abrité
10'0" x 5'0"
~ 9'0"
Perron abrité
10'0" x 5'0"
~ 9'0"
Entrée ou vestibule
7'0" x 6'0"
~ 12'4"
Garde-robe
5'9" x 2'0"
~ 12'4"
Entrée ou vestibule
7'0" x 6'0"
~ 12'4"
Garde-robe
5'9" x 2'0"
~ 12'4"
Garde-manger
4'4" x 3'0"
~ 9'0"
Suite des maîtres
10'9" x 12'6"
~ 9'0"
Walk-in
9'0" x 5'4"
~ 9'0"
Chambre à coucher
11'9" x 12'6"
~ 9'0"
Garde-robe
5'9" x 2'0"
~ 9'0"
Garde-robe
5'5" x 2'0"
~ 9'0"
Salle à manger
12'8" x 10'0"
~ 9'0"
Salle à manger
11'0" x 10'0"
~ 9'0"
Cuisine
10'0" x 12'9"
~ 9'0"
Îlot
6'0" x 3'0"
N/D
Cuisine
11'8" x 12'9"
~ 9'0"
Îlot
8'0" x 3'0"
N/D
Salle de bain complète
11'9" x 8'4"
~ 9'0"
Douche
4'0" x 3'0"
N/D
Lingerie
1'6" x 1'10"
N/D
Salle de bain complète
10'9" x 8'4"
~ 9'0"
Lingerie
2'10" x 1'0"
N/D
Douche
4'0" x 3'0"
N/D
Salle de séjour
12'0" x 13'0"
~ 9'0"
Salle de séjour
12'4" x 13'0"
~ 9'0"
Patio
12'0" x 12'0"
N/D
Patio
12'0" x 12'0"
N/D

Sous-sol

Pièces
Dimensions
Plafond
Chambre à coucher
10'6" x 10'2"
~ 8'0"
Garde-robe
6'0" x 2'0"
~ 8'0"
Chambre à coucher
10'6" x 10'2"
~ 8'0"
Garde-robe
6'0" x 2'0"
~ 8'0"
Salle de lavage
9'7" x 5'4"
~ 8'0"
Salle de lavage
9'7" x 5'4"
~ 8'0"
Salle de bain
10'0" x 5'0"
~ 8'0"
Lingerie
1'4" x 1'4"
N/D
Salle de bain
10'0" x 5'0"
~ 8'0"
Lingerie
1'4" x 1'4"
N/D
Chambre à coucher
10'0" x 10'0"
~ 8'0"
Garde-robe
6'4" x 2'0"
~ 8'0"
Chambre à coucher
10'0" x 10'0"
~ 8'0"
Garde-robe
6'4" x 2'0"
~ 8'0"
Rangement
10'7" x 6'4"
~ 8'0"
Rangement
10'7" x 6'4"
~ 8'0"
Salle familiale
13'0" x 18'0"
~ 8'0"
Salle familiale
13'0" x 18'0"
~ 8'0"
Pièce de mécanique
5'4" x 9'0"
~ 8'0"
Pièce de mécanique
5'4" x 9'0"
~ 8'0"
Rangement
9'0" x 5'5"
~ 5'3"
Rangement
9'0" x 5'5"
~ 5'3"

Look très tendance Rustique Moderne pour ce jumelée proposant 3 chambres et 2 salles de bain par logement!

Le plan de maison ALBERT (plan de jumelée #3074) propose un total de 3600 pi.ca. aménagés au rez-de-chaussée et au sous-sol entièrement fini. Chacun des logements comporte donc 1800 pi.ca. aménagés au rez-de-chaussée et sous-sol fini. Le style moderne et rustique à la fois saura attirer l'oeil autant à la campagne que dans les nouveaux quartiers résidentiels! À noter aussi que les deux logements proposent des plafonds à 9' de hauteur au plancher principal.

Pour les deux logements, le rez-de-chaussée s'ouvre sur une entrée de type split, permettant ainsi aux pièces du sous-sol de recevoir une belle luminosité naturelle par les fenêtres. La chambre principale est localisée au rez-de-chaussée et possède un accès à la grande salle de bain qui est également sur ce niveau. Cette dernière propose un bain et une douche séparée.

La cuisine avec îlot est ouverte sur le salon et ces deux espaces sont à l'arrière de la maison, pour le logement à gauche (1). La salle à dîner est centrale pour le logement 1, et à l'arrière de la maison pour le logement 2. Ce dernier offre un aménagement différent du rez-de-chaussée ce qui nous a permis d'ajouter un garde-manger (toujours au logement 2).

Les sous-sols sont identiques et regroupent chacun 2 chambres secondaires, une salle de bain, la salle de lavage et un coin rangement. Au besoin nous pouvons modifier les planchers afin d'accommoder les besoins particuliers de votre famille.

Laissez-vous charmer par la beauté de ce design extérieur chaleureux et le confort de l'aménagement intérieur prévu pour plaire à plusieurs types de famille!

Éléments distinctifs

Plan de maison jumelée de style rustique moderne.
Look très recherché de rustique et chaleureux à la fois.
Sous-sol aménagé, pour un total de 3 chambres et 2 salles de bain par logement.
Deux (2) aménagements différents pour le rez-de-chaussée.
Chambre principale avec accès à la salle de bain (logement 1).
Garde-manger prévu au logement 2.
Aire ouverte à la cuisine, salle à manger et salon, pour les 2 logements.
Belle lumière naturelle provenant du secteur arrière de la maison.

Particularité(s) du plan

Chambres séparées, Ilôt, Aire ouverte, Vestibule, Plafond à plus de 8', Bain et douche séparés, Garde-manger, Tablettes, Walk-in ch. maîtres

Style(s) architectural du plan

Transitionnel, Nordique Moderne, Rustique, Scandinave, Chalet, Champêtre, Moderne rustique, Contemporain / Zen, En montagne, Tendance

beneva
beneva

Offrir la meilleure expérience d’assurance au Canada grâce à notre simplicité inégalée.

Oceania
Oceania
Rupert

Depuis notre fondation en 1995, Bains Oceania est engagé à offrir à ses clients une expérience unique et raffinée dans leur environnement spa résidentiel. Grâce à notre savoir-faire et à notre passion pour l’innovation, nous fabriquons ici, des produits de grande qualité, pour vous.

Boiseries Raymond
Boiseries Raymond
Porte 152

Chef de file dans le préassemblage de portes intérieures au Québec. Cette force nous permet de vous fournir une variété de modèles préassemblées selon vos spécifications et selon le volume de production requis.

Boiseries Raymond
Boiseries Raymond
Porte 152

Chef de file dans le préassemblage de portes intérieures au Québec. Cette force nous permet de vous fournir une variété de modèles préassemblées selon vos spécifications et selon le volume de production requis.

Boiseries Raymond
Boiseries Raymond
Porte 152

Chef de file dans le préassemblage de portes intérieures au Québec. Cette force nous permet de vous fournir une variété de modèles préassemblées selon vos spécifications et selon le volume de production requis.

Boiseries Raymond
Boiseries Raymond
Porte 152

Chef de file dans le préassemblage de portes intérieures au Québec. Cette force nous permet de vous fournir une variété de modèles préassemblées selon vos spécifications et selon le volume de production requis.

Plans similaires
Logo Dessins Drummond image Dessins Drummond
Le modèle Albert est protégé par la loi sur les droits d'auteur.

Les illustrations présentées peuvent différer du plan détaillé que vous recevrez, car ces derniers sont régulièrement ajustés afin de respecter les normes de construction en vigueur.

En savoir plus

Une question ou un commentaire sur ce plan ?

Information de contact

Votre demande

Ajouter vos images ou photos

Pour ajouter une ou des photos, veuillez cliquer ou glisser vos fichiers dans la zone ci-bas. Vous pouvez ajouter jusqu'à huit photos JPG ou JPEG. Cette opération n'est pas obligatoire.

Désolé, votre navigateur ne supporte pas l'envoi de fichier.