Vue avant - MODÈLE DE BASE - Plan de triplex économique moderne, 2 chambres par unité, coin buanderie, plancher à aire ouverte - Abbot 3

Vue avant - MODÈLE DE BASE

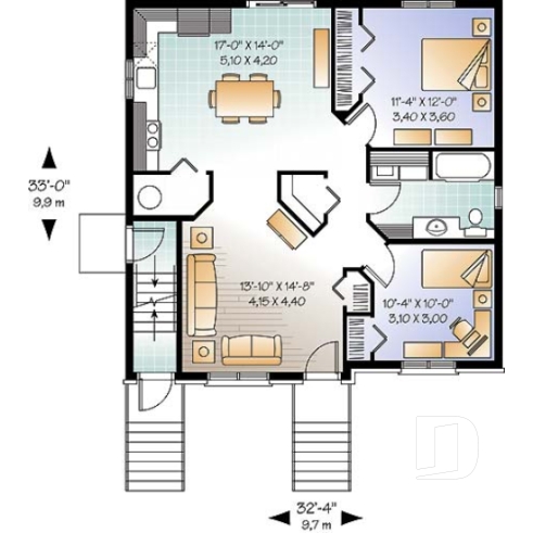
Rez-de-chaussée - Plan de triplex économique moderne, 2 chambres par unité, coin buanderie, plancher à aire ouverte - Abbot 3

Rez-de-chaussée

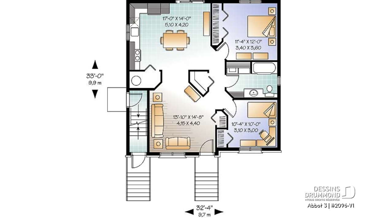
Étage - Plan de triplex économique moderne, 2 chambres par unité, coin buanderie, plancher à aire ouverte - Abbot 3

Étage

Sous-sol - Plan de triplex économique moderne, 2 chambres par unité, coin buanderie, plancher à aire ouverte - Abbot 3

Sous-sol

Élévation arrière - Abbot 3

Élévation arrière

Abbot 3 Plan de maison 2096-V1

Plan de triplex économique moderne, 2 chambres par unité, coin buanderie, plancher à aire ouverte

À partir de

2300$

Fiche technique sommaire Plan #2096-V1
Estimation ($) - (Sous-sol non-fini) | 637,752$ (Sous-sol fini)
Surface habitable 3158 pi² Chambre 2
Salle de Bain 1 Salle d'eau -
Fondation incluse Sous-sol aménagé Garage -
Largeur 32'4" Profondeur 33'0"

Besoin d’aide ?

Nos experts vous guident dans votre projet grâce à plus de 30 bureaux au Québec.

Joignez-nous

Consultez notre guide utilisateur

Un outil conçu pour vous simplifier la vie.

Ouvrir le guide

Un accompagnement sur mesure

De la modification de plans au design d’intérieur, nous vous guidons à chaque étape.

Découvrir nos services

Détails supplémentaires

Estimation

Spécifications générales

Surface aménagée totale
3158 pi²
Rez-de-chaussée
1054 pi²
Étage
1050 pi²
Sous-sol
1054 pi²
Largeur
32'4"
Profondeur
33'0"
Hauteur dessus fondations au faite
32'1"
Murs extérieurs
2 X 6
Murs extérieurs
2 X 6
Code Entrepreneur
MD

Spécifications sur les pièces

Chambre(s)
2
Salle(s) de bain complète(s)
1
Demi Salle(s) de Bain
-
Type de garage
-
Superficie balcon et/ou perron abrité
50 pi²

Spécifications des unités

LOGEMENT 1
LOGEMENT 2
LOGEMENT 3
Surface aménagée totale
1054 pi²
1050 pi²
1054 pi²
Sous-sol
1054 pi²
Rez-de-chaussée
1054 pi²
Étage
1050 pi²
Largeur
32' 4"
32' 4"
32' 4"
Profondeur
33' 0"
33' 0"
33' 0"
Hauteur dessus fondations au faite
32' 1"
32' 1"
32' 1"
Murs extérieurs
2 X 6
2 X 6
2 X 6
Type de fondation
Sous-sol aménagé
Sous-sol aménagé
Sous-sol aménagé
Chambre(s)
2
2
2
Salle(s) de bain
1
1
1
Demi Salle(s) de Bain
-
-
-
Type de garage
-
-
-
Espace boni aménageable
-
-
-
Rangement boni
-
-
-

Sous-sol

Pièces
Dimensions
Plafond
Cuisine/salle à manger
16'8" x 13'9"
~ 8'0"
Salle de séjour
13'11" x 14'7"
~ 8'0"
Entrée ou vestibule
3'5" x 4'7"
~ 8'0"
Salle de bain complète
10'5" x 7'5"
~ 8'0"
Chambre à coucher
11'2" x 11'9"
~ 8'0"
Chambre à coucher
10'2" x 10'0"
~ 8'0"
Rangement
6'3" x 3'6"
~ 8'0"
Rangement
3'8" x 4'10"
~ 8'0"
Patio
11'0" x 7'6"
N/D

Rez-de-chaussée

Pièces
Dimensions
Plafond
Perron
4'0" x 5'0"
N/D
Cuisine/salle à manger
17'0" x 14'0"
~ 8'0"
Salle de séjour
13'0" x 14'8"
~ 8'0"
Salle de bain complète
10'8" x 7'6"
~ 8'0"
Chambre à coucher
11'4" x 12'0"
~ 8'0"
Chambre à coucher
10'4" x 10'0"
~ 8'0"
Rangement
6'6" x 3'6"
~ 8'0"
Rangement
3'8" x 4'10"
~ 8'0"
Perron
5'0" x 3'4"
N/D
Terrasse abritée
12'0" x 8'0"
N/D
Perron
5'0" x 3'4"
N/D

Étage

Pièces
Dimensions
Plafond
Cuisine/salle à manger
17'0" x 14'0"
~ 8'0"
Salle de séjour
14'4" x 13'0"
~ 8'0"
Entrée ou vestibule
3'6" x 3'8"
~ 8'0"
Salle de bain complète
10'8" x 7'6"
~ 8'0"
Chambre à coucher
11'4" x 12'0"
~ 8'0"
Chambre à coucher
10'4" x 10'0"
~ 8'0"
Rangement
3'4" x 3'10"
~ 8'0"
Rangement
4'8" x 3'8"
~ 8'0"
Balcon
12'0" x 8'0"
N/D

Superbe plan de triplex de style moderne

.

Éléments distinctifs

Triplex de style moderne rustique, très tendance.
Accès indépendant à chacun des logements.
Garde-robe prévue près des entrées respectifs.
Cuisine dînette de bon format avec accès à une terrasse pour chaque unité.
Salle de bain complète avec coin buanderie.
Garde-robe rangement supplémentaire prévu, sur les trois niveaux.

Particularité(s) du plan

Salle de lavage au rez-de-chaussée

Style(s) architectural du plan

Contemporain / Zen, Traditionnelle, Moderne, Moderne rustique

Plans similaires
Logo Dessins Drummond image Dessins Drummond
Le modèle Abbot 3 est protégé par la loi sur les droits d'auteur.

Les illustrations présentées peuvent différer du plan détaillé que vous recevrez, car ces derniers sont régulièrement ajustés afin de respecter les normes de construction en vigueur.

En savoir plus

Une question ou un commentaire sur ce plan ?

Information de contact

Votre demande

Ajouter vos images ou photos

Pour ajouter une ou des photos, veuillez cliquer ou glisser vos fichiers dans la zone ci-bas. Vous pouvez ajouter jusqu'à huit photos JPG ou JPEG. Cette opération n'est pas obligatoire.

Désolé, votre navigateur ne supporte pas l'envoi de fichier.