Plans de Maison avec Bar à Cafe

Nos plans de maison avec bar à café ont un espace aménagé pour y installer votre machine à café préférée ainsi que tous les accessoires s'y rattachant. Certains bar à café sont même assez grand pour y intégrer un mini-frigo.

Par défaut
51 plan(s) trouvé(s)
51 plan(s) trouvé(s)

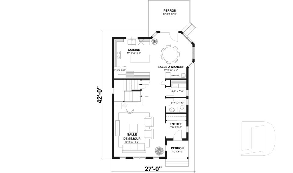
Portico 2896

Victorien

Chambres 3
Salles de bain 2
Pied carré 1936 PI²
Avec un entrepreneur
641,739$
Plan à partir de
1655$

Meunier 2949

Champêtre

Chambres 3
Salles de bain 1
Pied carré 2030 PI²
Avec un entrepreneur
520,210$
Plan à partir de
1655$

Ulverton 3500

Farmhouse

Chambres 3
Salles de bain 1
Pied carré 2098 PI²
Avec un entrepreneur
554,625$
Plan à partir de
1655$